Для семейной пары с ребенком дизайнер Мария Фильштинская спроектировала двухэтажный дом площадью 745 кв. м и создала запоминающийся интерьер: по-мужски строгий, функциональный и располагающий к неспешному отдыху на природе. Основой для него стала коллекция винтажных предметов в духе 60-х годов из коллекции заказчиков и арт-объектов, собранных ими по всему миру, а главное – сама аура места с ухоженным садом и вековыми соснами.
«Заказчики приобрели участок в живописном Подмосковье и решили построить семейную резиденцию, где можно жить в единении с природой, - рассказывает дизайнер. – Работа над дизайн-проектом шла параллельно с проектированием дома, поэтому нам удалось реализовать все пожелания клиента и оперативно добиться результата». Например, заложить в проект и обыграть в интерьере открытые совмещенные пространства, большие панорамные окна-перегородки, которые позволяют любоваться садом и дают возможность выйти на террасу из гостиной, столовой и кухни. А также спроектировать классический полукруглый эркер, в котором угадываются отголоски другой эпохи – светлый, наполненный воздухом, с красивыми природными перспективами. В итоге получился немного брутальный, но необычайно благородный интерьер с кирпичными стенами, натуральными фактурами и насыщенной осенней палитрой.
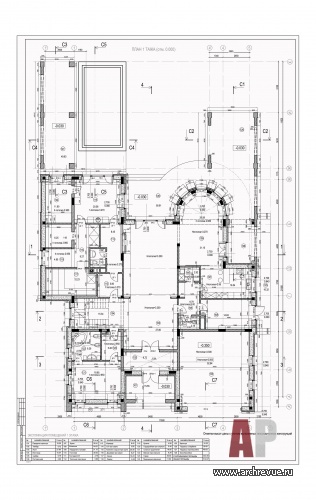
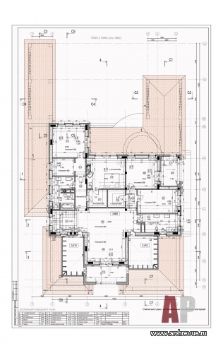
Двухэтажный дом имеет удобную и функциональную планировку. Первый этаж занимают парадные помещения многофункциональной гостиной, кухни и столовой, а также гостевая зона со спальней и СПА-комплексом с бассейном. Разные по назначению зоны логично разделяет холл с высоким панорамным окном и зимним садом.
Из общественных помещений, а также комнаты отдыха при домашнем СПА, предусмотрен выход на большую открытую террасу с лаунджем и летней столовой. На втором этаже находятся приватные помещения: кабинет с балконом, хозяйская спальня с ванной, гардеробной и будуаром хозяйки, детская и две выделенные автономным блоком гостевые спальни. Все помещения объединяет холл-библиотека, выполняющая функцию приватной гостиной. Логика движения по дому максимально естественная, на интуитивном уровне: к заказчикам часто приезжают гости, и было важно разделить потоки и сделать так, чтобы передвижение в пространстве не доставляло неудобств ни хозяевам, ни гостям.
Заказчики поставили задачу создать интерьер вне времени, комфортный и практичный, с качественными благородными материалами и активными природными фактурами. Им не нужен был ни минимализм с белыми стенами, ни модное пространство с броскими, но безликими вещами. Они также были против штукатурки, краски или обоев в отделке стен, мрамора на полах и хрусталя в декоре, но с энтузиазмом подержали смелое решение облицевать первый этаж темным клинкерным кирпичом.
«Никакой другой материал не давал интерьеру той брутальности, которую хотел хозяин дома, – рассказывает автор проекта. – Но в то же время важно было не переборщить, не превратить семейное жилье в лофт». Площадь стен, оформленная кирпичом, внушительная, но брутальная фактура не доминирует благодаря грамотному балансу дерева, лепнины, цветной керамики, латуни, кожи, фактурного текстиля. Паркет-елочка, витражи-перегородки с фацетами, лаконичный камин с порталом из металла усложняют интерьер, наполняют его теплом и создают ощущение обжитого пространства. Этой же задаче служат винтажаная мебель, дизайнерские светильники и коллекция искусства из собрания семьи – харизматичные вещи с характером и историей.
Комплектация объекта
Строительные и отделочные материалы и изделия
Светильники, винтаж
Текстиль, подушки, поставщик Loffilab
Ковры, гобелены, поставщики «Ателье Марка Патлиса», Art de Vivre
Аксессуары, декор, поставщики DesingBoom, BD Barcelona Design, L’Appartement
Сантехника раковины с тумбочками Duravit (дизайн Philippe Starck)
Мебель
Гостиная диван в обивке тканью Holland & Sherry выполнен на заказ, по эскизам дизайнера; журнальный столик Gubi; кресла, винтаж, Италия, 1970-е гг.; кофейные столики &Tradition; бар, винтаж, 1950 г.; кресло Formanova, винтаж, Италия, 1960-е гг.
Кухня с островом Leicht; барные стулья Ethnicraft
Кабинет стеллаж выполнен на заказ по эскизам дизайнера; кресло Arflex, винтаж, Италия, 1980-е гг.; стол, винтаж, Голландия, 1960-е гг.; кресло Formanova, винтаж, Италия, 1960-е гг.
Спальня на заказ, винтаж
Винтаж – поставщик Repeat story
Оборудование
Оборудование кухни холодильник Liebherr
Фотограф: Сергей Красюк
Стилист: Татьяна Гедике
Бетонная квартира на Севере Москвы
Черная квартира с природными текстурами О профессии «ландшафтный архитектор», образовании и специфике частных и общественных ландшафтных проектов говорим с Иваном Бугаевым…































Ландшафтный архитектор. Инженер. Проектировщик. Логик.
«Мода в интерьере — это зеркало нашего быта»...
Храм в городе
Три кита современного стиля
Проект: Аэропорт «Кавказ» 
11
22
33
44
55
66
77
88
99
1010 