В предгорьях Алтая архитекторы бюро AB–architects Ведран Бркич и Анна Гармаш спроектировали современную усадьбу под стать суровой природе Русского Севера. Заказчик приобрел участок в полтора гектара в открытом поле с видом на Алтайские горы. Простор, уединение, спокойствие и умиротворяющая красота северной природы вдохновили архитекторов на создание лаконично, но необычайно теплого и уютного дома для семейного отдыха и приема гостей.
В качестве основного строительного материала был выбран местный кедр, который хорошо держит тепло и устойчив к сложным климатическим условиям с холодными ветрами и проливными дождями. Двухэтажный дом проектировался в два этапа. Изначально заказчик видел здесь небольшую дачу, где можно жить не больше месяца-полутора в год. Поэтому проектировать начали одноэтажный дом площадью до 400 кв. м, состоящий из общей гостиной и трех спален. В процессе он захотел добавить бильярдную и сауну, спальни для друзей и полноценный хозяйственный блок с помещениями персонала и погребом для хранения вина и продуктов. Так дом увеличился вдвое, появился второй этаж и выразительная крытая галерея, которая соединила главную постройку с домом для персонала и гаражом в единый усадебный комплекс. Архитектура дома подчинена его месторасположению, каждая деталь спроектирована с учетом северного характера. Стены из кедрового бруса, словно укрывающая окна кровля, шунгит в облицовке фундамента… Дом выглядит строго и лаконично, но вместе с тем он составляет единое целое с окружающим пейзажем. Ландшафтные особенности данной местности имитирует и созданный архитекторами вместе с партнерами сад. Рукотворный ландшафт с пологими холмами и крупными деревьями, которые ослабляют потоки ветра, защищает территорию от суровых природных явлений.
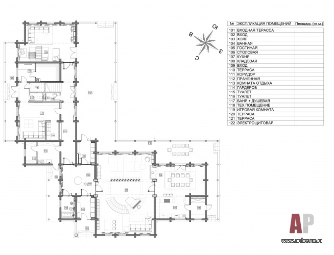
Поскольку дом разрастался в процессе строительства, он состоит из двух объемов. В основном объеме расположен холл и двусветная гостиная с баром и зоной для отдыха, а также блок кухни и столовой. Пространство за винтовой лестницей появилось позднее: центральное место здесь занимает двусторонний диван, одна его сторона обращена на каминный зал, другая – на телевизионную зону.
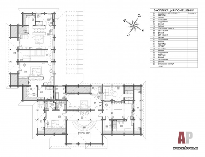
От общей гостиной каминная и зона ТВ отделены поворотными ламелями, которые позволяют регулировать уровень приватности. На втором этаже находятся три основные спальни (хозяйская и две детские), а также несколько гостевых спален и игровая. Пристройка была задумана как технический блок, зона СПА и гостевая территория. Крытая уличная галерея, соединяющая дом с хозяйственным блоком, ведет в зону отдыха с сауной, там же находится еще одна лестница, ведущая наверх, где расположены полноценные гостевые апартаменты: спальни со своими ванными комнатами и гардеробными. Благодаря такой планировке потоки передвижения хозяев, гостей и персонала могут практически не пересекаться.
Интерьеры дома – результат творческого тандема российских архитекторов и нидерландских дизайнеров, которые активно участвовали в проектировании и подборе деревянной мебели. Оформление дома перекликается с фасадами, строгость и лаконичность служат основными характеристиками внутреннего наполнения.
Пространство выполнено в оттенках серого: основного теплого светлого и акцентного более темного серо-коричневого. Все стены и потолки в доме одного цвета, а балки, плинтуса – темнее. Интерьер строится на игре холодных и теплых материалов: с деревом стен контрастируют наливные цементные полы, с брутальным камнем – изделия из металла. «Изначально была идея сохранить черновой бетон на лестнице и в других видимых местах. Но бетон у местных строителей не удался, поэтому мы решили покрасить его фактурной краской под цвет наливных полов», - рассказывают авторы проекта. Так как дом предназначен для сезонного проживания и кратких визитов, то решено было отказаться от дорогостоящей дизайнерской мебели в пользу разработанных на заказ характерных предметов. Вся мебель была привезена из Голландии. Лаконичные изделия из дерева с проседью и брутальной фактурой перекликаются с суровой алтайской природой и подчеркивают красоту простых материалов.
Комплектация объекта
Строительство, компания «Сиблюкс»
Ландшафтный дизайн, бюро AB–architects совместно с High Garden
Строительные и отделочные материалы и изделия
Стены, кедровый брус, компания «Сиблюкс»
Камень, поставщики High Garden и «Монолит»
Мансардные окна VELUX
Лестница и стеклянные двери с рамами из черного металла выполнены по индивидуальным чертежам, компания Rick Smeenk
Плитка из талькомагнезита Tulikivi
Текстильное оформление компания 5 Avenue
Свет Jacco Maris, Eichholtz, Brand van Egmond, Maretti
Аксессуары, телескоп Eichholtz
Мебель
Прихожая стол Gervasoni
Гостиная диван Amura (модель Davis), кофейные столики Linteloo (модель Obi), стулья барные Piet Boon (модель Saar); бар, стеллажи, тумба под ТВ, на заказ, по индивидуальным чертежам, изготовление Rick Smeenk
Зона у камина кофейные столики Linteloo (модель Kigi), диван Living Divani; полки и поворотные ламели, на заказ, по индивидуальным чертежам изготовление Rick Smeenk
Столовая обеденный стол и стулья Linteloo, стулья полубарные и комоды Gervasoni
Кухня Treo Cucine
Холл на втором этаже кресла Linteloo (модель Kone), стеллаж, на заказ, по индивидуальным чертежам, изготовление Rick Smeenk
Главная спальня кровать и прикроватные столики, стол и стул Nilson Beds (модель Menton), пуф Nilson Beds (модель Remy)
Детская спальня кровать, стол и стул Gervasoni
Зона отдыха при сауне диван Linteloo (модель Jan)
Оборудование
Установка системы «умный дом», компания Smart4
Фотографии: Сергей Красюк
Эклектичная квартира с элементами лофта и этники
Элегантная квартира в оттенках серого Поиски нового офиса привели владельцев архитектурного бюро «Крупный план» к неожиданному, но очень значимому шагу – приобретению особняка - объекта культурного наследия XIX века...










































Созидание как эволюция: офис бюро «Крупный план»
Равновесие, цельность и гармония как результат работы архитектора…
Ландшафтный архитектор. Инженер. Проектировщик. Логик.
«Мода в интерьере — это зеркало нашего быта»...
Храм в городе 
11
22
33
44
55
66
77
88
99
1010 
Впервые мы побывали на участке, когда температура на улице была 39 градусов мороза. Мы поняли, что это красивый, но суровый край, поэтому в доме должно быть очень тепло, уютно, но без резкого резонанса с окружающим пейзажем. В процессе строительства мы ездили на объект достаточно часто для авторского надзора: была сложная коммуникация с подрядчиками, с каждым приходилось взаимодействовать отдельно. И это были морально сложные командировки: большая удаленность от Москвы, сложные перелеты, акклиматизация… Особенно непростыми были поездки зимой от аэропорта Барнаула до самой стройки – три часа чистого адреналина. Таксисты тут несутся со скоростью 120 км. час по заснеженной или и вовсе ледяной дороге, аварии с искореженными автомобилями на обочине – почти норма. Перед сдачей, когда шел монтаж мебели и финишных работ, нам пару раз пришлось жить здесь по 15-20 дней. Особенно запомнились ежедневные походы в минус 45 градусов по заснеженным дорогам от отеля до объекта, который располагался в полутора километрах… Во всех смыслах экстремальный проект.