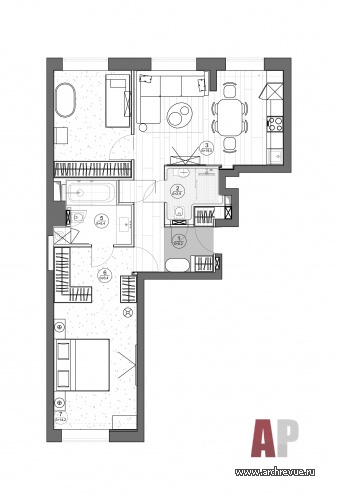
К проектированию квартиры для своей собственной семьи архитектор Иван Качалов подошел как к эксперименту и превратил небольшое пространство в территорию инновационного дизайна. Расположенная в жилом комплексе Wellton Park квартира площадью 70 кв. м помимо удачного локейшена и качественной архитектуры изначально ничем не выделялась: непростой «Г»-образный план, несущая колонна по центру общего пространства не прибавляли ей ни удобства, ни эстетики.
Но архитектор Иван Качалов применил весь арсенал дизайнерских и технологичных решений, создав эксклюзивный интерьер, который по функционалу и эргономике не уступает квартирам с куда большей площадью.
Небольшая по площади квартира укомплектована всеми необходимыми для комфортного проживаниями функциями для семьи с двумя детьми. На площади 70 кв. м расположена общая гостиная-кухня, спальня со своей ванной комнатой, детская двоих дочерей, гостевой санузел, гардеробная, постирочная и компактная прихожая. Эргономика пространства рассчитана до сантиметра, каждая деталь на своем месте.
Центральное помещение – совмещенная гостиная-кухня, чтобы визуально расширить пространство архитектор облицевал одну из стен крупноформатными зеркалами, зеркальной сделал и дверь, ведущую в детский блок. «Отделяющая кухню несущая колонна изначально дробила помещение, - рассказывает автор проекта. – Обычно дизайнеры выделяют такие конструкции цветом, обыгрывают как полочки и системы хранения, но я решил действовать от обратного и с помощью зеркальных панелей «растворил» ее пространстве». Между гостиной и спальнями он выстроил своего рода деревянный куб, в котором разместил мокрые зоны, а также системы хранения. Оборудование кондиционера смонтировал в зеркальную стену, вместо радиаторов в подоконных нишах установил конвекторы, разработал скрытые ниши для бытовой техники и хозяйственных предметов. В итоге получился интерьер, в котором комфорт, функция и эстетика неразрывно связаны.
Декоративное решение интерьера еще больше усиливает ощущение, что квартира куда больше и просторнее, чем есть на самом деле. Зоны перетекают друг в друга, а помещения словно стремятся вырваться из очерченных границ. Этот эффект достигается за счет использования зеркал и фактуры американского ореха, которые переходят из прихожей в гостиную, а оттуда на кухню, и отчего гостевое пространство воспринимается как единый объем: просторный и уютный.
В поддержку к стеновым панелям из американского ореха архитектор использует напольную доску разной ширины (от 15 до 40 см) из массива выбеленного дуба с благородной сединой. Почти все помещения (кроме детской) исполнены в единой цветовой палитре с землистыми, оливковыми и коричневыми оттенками. Респектабельную атмосферу усиливает дизайнерская мебель, в том числе культовые дизайнерские предметы, которые всегда в тренде.
Комплектация объекта
Строительные и отделочные материалы и изделия
Изделия из дерева, стеновые панели, компания «ВекоНика»
Изделия из зеркал, компания «Формула стекла»
Двери Bluinterni, поставщик Union
Дверная фурнитура Olivari
Декоративная финишная отделка стен Little Greene
Обои Cole & Son
Массивная половая доска, массив дуба, поставщик Unique Floors
Керамогранит Lea Ceramiche, мозаика Jasba
Свет Visual Comfort & Co, встроенные светильники Xal
Сантехника ванна Villeroy & Boch, унитазы Duravit, душевая Hueppe, смесители Dornbracht и Axor, раковины Milldue
Игрушки–мишки в детской Lucie Kaas
Мебель
Гостиная диван Flexform, журнальный столик Roche Bobois (модель Cute Cut), кресло Vitra
Столовая обеденный стол, стулья Fritz Hansen
Кухня Poliform (модель Alea)
Спальня кровать Lago
Детская кресло Vitra; кровать, стеллажи-домики, на заказ
Поставщик мебели – «БельБоско интерьеры»
Встроенная мебель – «ВекоНика»
Оборудование
Системы вентиляции и кондиционирования Haier
Конвекторы Kampmann
Электроустановочные изделия Forbes & Lomax
Встроенная кухонная техника Miele
Аудио- и видеотехника Sonos, Apple
Орфография и пунктуация авторов сохранена
Современное шале в Переделкино
Эклектичный дом в горах Великое наследие и возрождение Храмового зодчества в России – поговорим об этом с архитектором Дмитрием Пшеничниковым, основателем архитектурного бюро «Дмитрий Пшеничников и Партнеры»






















Равновесие, цельность и гармония как результат работы архитектора…
Ландшафтный архитектор. Инженер. Проектировщик. Логик.
«Мода в интерьере — это зеркало нашего быта»...
Храм в городе
Три кита современного стиля 
11
22
33
44
55
66
77
88
99
1010 