Для большой семьи дизайнеры Дмитрий и Дарья Григорьевы оформили двухэтажный загородный дом, превратив его в ультрасовременное минималистичное шале, наполненное природными материалами и фактурами: живыми и настоящими.
«Архитектура дома выполнена в современном ключе в духе работ Фрэнка Ллойда Райта – простые объемы, строгие формы, большие панорамные окна, много воздуха, - рассказывают авторы проекта. – Однако интерьеры заказчики видели не столь радикальными. Они много путешествуют и любят стилистику альпийского шале с обилием дерева, брутального камня, грубых штукатурок. Мы предложили объединить традиционное шале с минимализмом и сделать ставку на нетривиальные природные материалы: графит, кварцит, дуб со сложной обработкой».
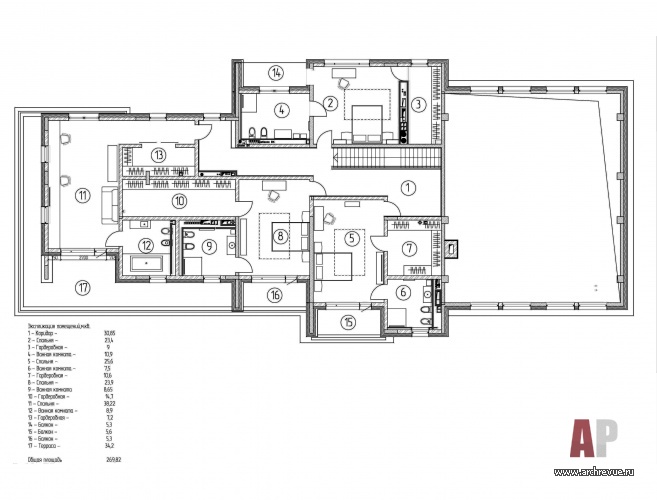
Планировочное решение было разработано архитектором дома и полностью устраивало заказчиков, поэтому дизайнеры лишь немного его скорректировали и еще более адаптировали под нужды семьи с пятью детьми.
Так, ядром первого этажа служит просторная двусветная гостиная с зоной столовой и камином. К просторному объему примыкает кухня (она зонирована стеклянными раздвижными дверями) и лестничный холл со стеклянной современной лестницей. На максимальном удалении от входа расположена хозяйская спальня с ванными комнатами (мужской и женской). От общей зоны ее отделяют гардеробные, тренажерный зал и кабинет, тем самым обеспечивается хорошая звукоизоляция и максимальный комфорт. На втором этаже находятся детские спальни и игровая. В цоколе расположены технические службы и кинозал. Помимо основного дома на участке возведена гостевая постройка с бассейном и банным комплексом, а также гараж с квартирами персонала.
Работы над интерьером начались с архитектурных решений, которые позволили визуально скорректировать непростое исходное пространство. Особенность дома – огромный объем гостиной (почти 130 кв. м. с потолками высотой 5 метров!), поэтому очень важно было сделать общее пространство сомасштабным человеку.
Для этого дизайнеры расчертили помещение колоннами и балками из массива дуба, сделали несколько ярусов искусственного освещения, отбили контрапунктом окна, разместив на уровне человеческого роста шторы на темных штангах. В итоге открытое пространство стало более дружелюбным и комфортным для жизни. Но неповторимый облик дому, свой особый характер придают природные материалы с тактильными фактурами. В их числе – инженерная доска глубокого сложного оттенка с выраженным рельефом «рустик», дубовые панели с брашировкой и многократным тонированием, от которых создается ощущение, что дому уже более сотни лет… А главное – натуральный камень, притом камень редкий: черный графит и вальсский кварцит с диким сколотым краем, который добывается в единственном месторождении в швейцарских Альпах. Им выложена стена за ТВ в гостиной, притом это настоящая массивная кладка весом в несколько тонн, чтобы ее смонтировать, пришлось сварить пятиметровый металлический каркас и закреплять каменные плиты штифтами. Фоновой отделкой служит нейтральная штукатурка с текстурой затертого до полуматовости итальянского песчаника (в гостиной) или черного камня (в спальне). Значительная часть мебели выполнена в индивидуальном порядке, под проект, по эскизам дизайнеров. Столики-пеньки, журнальный стол из карагача, обеденный стол со столешницей из массива выглядят брутально и отсылают к традиционным альпийским интерьерам.
Комплектация объекта
Строительные и отделочные материалы и изделия
Изделия из дерева, колонны, балки, стеновые панели, компания IronWood
Двери, стеклянные перегородки, поставщик «Софья»
Декоративная финишная отделка стен, поставщик Finex
Пол, инженерная доска, поставщик Finex
Натуральный камень, графит, кварцит, мрамор, поставка и работы по камню, компания «Штайнверк»
Керамогранит Porcelanosa, поставщик Zodiac
Технический свет, поставщик Centrsvet
Декоративный свет BoConcept
Ковры, поставщик «Ami ковры»
Сантехника Ideal Standard, Duravit, Geberit, смесители Axor Hansgrohe
Мебель
Прихожая деревянная тумба, на заказ, изготовление IronWood
Гостиная диваны DiTre Italia, кресла Eames (модель Lounge Chair), поставщик Italini; журнальный стол, столики-пни из кедра, на заказ, изготовление IronWood, тумба под ТВ, на заказ, изготовление Lines Mebel
Столовая, обеденный стол, на заказ, изготовление IronWood, стулья Cosmorelax
Кухня Alno
Спальня кровать B&B Italia, поставщик Italini; кресла BoConcept (модель Imola); прикроватные тумбы на заказ, изготовление Lines Mebel
Мебель для ванной комнаты, на заказ, изготовление IronWood и Lines Mebel
Оборудование
Электроустановочные изделия GIRA
Радиаторы Arbonia
Оборудование кухни, бытовая техника Miele
Бассейн, компания «Аквалэнд»
Фото Максим Максимов
Светлый дом с изразцовой печью
Эргономичная квартира для семьи архитектора Поиски нового офиса привели владельцев архитектурного бюро «Крупный план» к неожиданному, но очень значимому шагу – приобретению особняка - объекта культурного наследия XIX века...





























Созидание как эволюция: офис бюро «Крупный план»
Равновесие, цельность и гармония как результат работы архитектора…
Ландшафтный архитектор. Инженер. Проектировщик. Логик.
«Мода в интерьере — это зеркало нашего быта»...
Храм в городе 
11
22
33
44
55
66
77
88
99
1010 
Хозяева дома – замечательная семейная пара, на момент начала работы в семье было трое детей-подростков, а за все время проектирования и воплощения интерьера в жизнь родилось еще двое малышей. Заказчики сами охарактеризовали интерьер как «минимализм с элементами шале», Альпы являются одним из излюбленных мест их отдыха, альпийское шале для них – эталон того самого уютного дома. Пожеланием было использование минимума мебели – только необходимое, ведь воздух и простор – главная ценность этого проекта!