Для энергичной заказчицы – успешной бизнес-леди и коллекционера искусства – дизайнер Анна Рудакова создала комфортный интерьер для отдыха и приемов, где можно расслабиться между командировками и самолетными перелетами. Основным пожеланием стал эргономичный интерьер с тактильными фактурами и палитрой в любимых цветах хозяйки: сером, бирюзовом и приглушенном циан (цвет воды).
Его дизайнер обыграла как элегантный микс в стиле contemporary, сродни апартаментам в высотках Манхэттена.
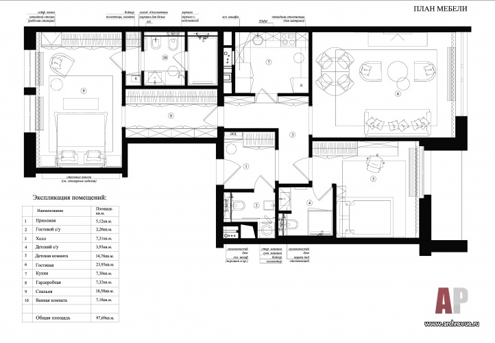
Квартира площадью чуть более 100 кв. метров приобреталась как двухкомнатная, но заказчице требовалось разместить две спальни (хозяйскую и комнату сына), комфортную гостиную, где можно принимать друзей, большую гардеробную и три санузла.
«Перед нами не стояло задачи создать парадную кухню, нужно было лишь небольшое функциональное помещение, поэтому мы перенесли кухню в нишу между гостиной и прихожей и скрыли ее за стеновыми панелями, - рассказывает дизайнер Анна Рудакова. – Нам никак не удавалось найти место для большой хозяйской гардеробной и тогда мы решились на эксперимент и сделали гардеробную проходной, сквозное помещение в итоге объединило холл и хозяйскую спальню».
Квартира выглядит ярко и свежо благодаря необычной цветовой гамме: оттенки серого здесь гармонично соединены с интеллигентной бирюзой, мятой, кобальтом. Мебель элегантных форм и крупные светильники отсылают к эпохе ар-деко. Камень, дерево и мягкие обивки делают интерьер тактильным, а зеркала расширяют и усложняют пространство.
Разные по назначению помещения объединены авторскими столярными изделиями, для дверей и стеновых панелей был разработан единый стиль с уникальной геометрией и рисунком линий. Важную роль в интерьере играет искусство, оно дает ощущение подлинности и связи с классическим наследием. А прохладная палитра создает пространство, которые не утомляет и помогает восстановить физические и эмоциональные силы.
Комплектация объекта
Строительные и отделочные материалы и изделия
Изделия из дерева, двери, стеновые панели, компания Ariyana
Ручки, фурнитура, поставщик Furnitek Group
Текстильный дизайн, компания «Кадо»
Краска для стен Farrow & Ball, Little Greene
Натуральный камень, мрамор Bianco Carrara, поставщик SkyStone
Плитка, поставщик «Тоскана Дизайн»
Паркет, поставщик Alexander White
Свет Henge, Porta Romana, Heathfield & Co, поставщик Alto Design
Декоративное панно Inkiostro Bianco
Аксессуары, хрустальные вазы Christofle, шкатулки, вазы Bosco Casa
Искусство, картины, Booroom Gallery и ArtBrut Moscow
Ткани Kravet Couture, Duralee, подушки на диване Enere, плед Etro, постельное белье, Atelier Tati
Сантехника, смесители Rubinetterie Stella, поставщик Alto Design
Ковры, поставщики Tapis Rouge и Ansy Carpet Company
Мебель
Гостиная диван Marie's Corner, зеркальный комод Porada, кресла Minotti, журнальные столики Gallotti & Radice
Столовая стулья LCI Stile, обеденный стол, по эскизам дизайнера
Кухня, поставщик «Мария»
Спальня кровать, тумбочки LCI Stile, журнальный столик Porta Romana, кресло Vibieffe; шкафы, туалетный столик, на заказ
Детская – вся мебель по эскизам дизайнера
Мебель для ванных комнат, на заказ
Гардеробная, шкафы, на заказ
Мебель – поставщик Alto Design
Корпусная мебель, на заказ, по эскизам дизайнера – изготовление Ariyana
Мягкая мебель, на заказ, по эскизам дизайнера – изготовление «Алиандр Групп»
Оборудование
Электроустановочные изделия Jung
Оборудование кухни Miele
Светлая квартира с глянцевой мебелью
Дом для олимпийского чемпиона Поиски нового офиса привели владельцев архитектурного бюро «Крупный план» к неожиданному, но очень значимому шагу – приобретению особняка - объекта культурного наследия XIX века...























Созидание как эволюция: офис бюро «Крупный план»
Равновесие, цельность и гармония как результат работы архитектора…
Ландшафтный архитектор. Инженер. Проектировщик. Логик.
«Мода в интерьере — это зеркало нашего быта»...
Храм в городе 
11
22
33
44
55
66
77
88
99
1010 