Молодая семья с тремя детьми приобрела готовый дом «в бетоне» в ближайшем Подмосковье и обратилась к архитекторам под руководством Юлии Пискаревой с пожеланием создать функциональное современное пространство для жизни на природе. «Заказчики хотели современный, минималистский интерьер, - вспоминает архитектор. – Спокойный, комфортный, не перегруженный деталями, с дизайнерской мебелью и яркими цветовыми акцентами. Мы предложили им вариант с контрастными фактурами, практичными решениями и удобной средой обитания».
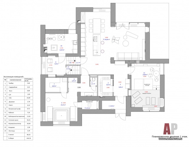
Дом сдавался с открытой планировкой, поэтому работа началась с выбора оптимального для семейного проживания варианта. Юлия Пискарева убеждена, что верно выбранная планировка – основа комфортной жизни, без которой любой, даже самый роскошный, интерьер не станет «своим». Структура двухэтажного дома максимально адаптирована для семьи с тремя детьми: ядро первого этажа – объединенное пространство гостиной, столовой, кухни – место, где семья может собираться вместе: отдыхать, общаться, развлекаться.
В соседнем крыле находится изолированная детская игровая комната, СПА-зона с мини-бассейном, технические помещения и гардеробные. В пространстве под лестницей организован кабинет родителей: длинная столешница «на двоих» примыкает к панорамному окну, не мешая проникновению света в глубину жилого объема. Второй этаж разделен на два смысловых блока: родительские апартаменты и детскую территорию с двумя спальнями (мальчики-погодки делят одну комнату, а девочка живет отдельно), своими гардеробными и санузлами. Все помещения большие, просторные; системы хранения встроены в ниши, подиумы и замаскированы, ванные комнаты максимально удобные и функциональные.
Интерьер дома решен в современном ключе: минималистский дизайн визуально усложнен контрастными природными материалами, яркими цветовыми отделками, оригинальной авторской мебелью. Декоративный акцент первого этажа – каменное бесшовное панно с эффектом ржавого металла, которым оформлена стена лестничного холла. В него встроена дверь L'Invisible, она не разрушает цельности восприятия поверхности.
С ржавым металлом контрастирует брутальная фактура бетона, которая присутствует в отделке фасадов кухни и стеновых панелей за ТВ. Тепло и уют в интерьер приносит дерево: полы из массива дуба под маслом, панели в виде деревянной мозаики, встроенная мебель в детских. Лаконичные поверхности из камня, дерева, керамогранита служат фоном для современной дизайнерской мебели, в том числе для культового красного кожаного кресла Imola производства BoConcept, которое хозяева привезли с собой из предыдущего жилья.
Комплектация объекта
Строительные и отделочные материалы и изделия
Двери L'Invisible, межкомнатные двери, поставщик Union; дверь под керамогранитом в СПА-зону, поставщик Artelle
Финишная отделка стен, краска Benjamin Moore, Tikkurila
Тонкий каменный керамогранит, поставщик Arch-Skin
Травертин, керамогранит Porcelanosa
Инженерная доска, поставщик Finex
Паркетная доска Bauwerk Parquet, серия Unopark vintage edition
Свет Centrsvet, Cosmorelax, Donolux
Декор, аксессуары, поставщики BoConcept, Happy Collections
Сантехника ванна с гидромассажем Jacuzzi, поставщик «Макслевел»; раковины Villeroy & Boch, TOTO; смесители Grohe, Cristina Rubinetterie, KLUDI; полотенцесушитель Terma (Zigzag)
Мебель
Прихожая комод Calligaris (модель Factory)
Гостиная кресло BoConcept (модель Imola), диван Bonaldo, журнальные столики BoConcept (модель Cartagena)
Столовая обеденный стол Midj (модель Pechino), стулья Calligaris (модель New York), барные стулья Calligaris (модель Boheme)
Кухня Leicht
Детские Missoni Home, Deep House, Cosmorelax
Оборудование
Электроустановочные изделия GIRA
Изящная классика. Интерьер таунхауса
Дом в стиле английской классики с элементами готики О профессии «ландшафтный архитектор», образовании и специфике частных и общественных ландшафтных проектов говорим с Иваном Бугаевым…



























Равновесие, цельность и гармония как результат работы архитектора…
Ландшафтный архитектор. Инженер. Проектировщик. Логик.
«Мода в интерьере — это зеркало нашего быта»...
Храм в городе
Три кита современного стиля 
11
22
33
44
55
66
77
88
99
1010 