Для интеллигентной взрослой семейной пары дизайнер Яна Холикбердиева оформила небольшую виллу в Сочи на берегу Черного моря, которая дарит ощущение отдыха и неги у воды и расширяет традиционные представления о курортном загородном жилье. У заказчиков уже есть два загородных дома (в парадной классике и стиле Прованс), где они проводят время с семьей.
И небольшой одноэтажный коттедж в новом поселке они приобрели в качестве гостевого жилья, куда планировали приезжать на несколько летних уик-эндов в году. Стилистику они хотели современную, без национального колорита, но с яркими дизайнерскими решениями, прохладным колоритом и великолепными природными фактурами.
Дизайнер подключилась к проекту на этапе строительства, что позволило внести некоторые корректировки в типовой архитектурный проект (архитектор Мирослав Джорджевич). Например, увеличить высоту потолков, чтобы установить высокие двери без коробок, которые бы зрительно задали крупный масштаб и придали пространству парадный вид.
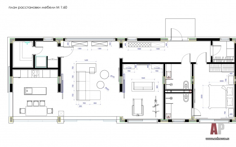
Одноэтажная вилла площадью 120 кв. м больше всего напоминает курортные апартаменты: дом имеет логичную планировку с изолированной спальней, гардеробной, двумя санузлам и анфиладной общей зоной. На одной оси в центральной части дома расположены гостиная, кухня-столовая и приватная зона отдыха, которые отделяются раздвижными реечными перегородками. Из общих помещений организованы выходы на открытую веранду и к бассейну.
С точки зрения стилистики заказчики хотели современный нетривиальный дизайн в прохладной цветовой гамме, который выделялся бы на фоне бежевых соседних коттеджей и освежал в жарком климате. Спальню и вовсе они попросили сделать темной.
Дизайнер Яна Холикбердиева спроектировала сдержанный современный интерьер, в котором на первый план вывела полутона и фактуры. Однотонные цветовые заливки, крупный геометрические формы, приятные на ощупь текстуры: дерево, камень, бетон, шерсть… При оформлении полов дизайнер полностью отказала от плитки и камня, сделав ставку на деревянные модули, даже в традиционных «мокрых» помещениях (кухня, прихожая). Массивная доска из выбеленного дуба визуально связала жилые пространства в единый объем и подчеркнула высокий статус интерьера.
Комплектация объекта
Строительные и отделочные материалы и изделия
Декоративная финишная отделка стен, краска, Benjamin Moore
Межкомнатные двери Bertolotto Porte
Раздвижные перегородки Rimadesio
Паркет, дубовая доска, модули, поставщик «Олимп Паркета»
Панно из лиственницы в спальне, поставщик Siberian Floors
Плитка Mutina
Сантехника Cea, Moab 80
Текстиль Chivasso
Мебель
Гостиная диван Mario Sirtori
Кухня «Атлас-Люкс»
Столовая, спальня, прихожая, на заказ
Оборудование
Системы вентиляции и кондиционирования Daikin
Эко-минимализм в Подмосковье
Дом с необычным кованым камином Поиски нового офиса привели владельцев архитектурного бюро «Крупный план» к неожиданному, но очень значимому шагу – приобретению особняка - объекта культурного наследия XIX века...




















Созидание как эволюция: офис бюро «Крупный план»
Равновесие, цельность и гармония как результат работы архитектора…
Ландшафтный архитектор. Инженер. Проектировщик. Логик.
«Мода в интерьере — это зеркало нашего быта»...
Храм в городе 
11
22
33
44
55
66
77
88
99
1010 