В доме на Патриарших прудах дизайнер Татьяна Иванова оформила квартиру для временного проживания: заказчики в Москве бывают наездами, и свое новое жилье видели комфортным и ярким. Именно поэтому при выборе недвижимости они остановились на бывшей квартире антикваров, в которой им понравилось буквально все: планировка, атмосфера и отдельные предметы (в их числе, например, кухня с расписанными вручную фасадами, столярные неоклассические изделия, состаренные зеркала), ставшие частью нового интерьера и новой семейной истории.
Задача, поставленная перед дизайнером, заключалась в редизайне пространства, действовать следовало исключительно декораторскими средствами. По словам Татьяны Ивановой, заказчикам настолько был близок по духу предыдущий интерьер, что изначально они хотели оставить в нетронутом виде не только отделку, но и всю мебель: пышную, помпезную... Но прислушались к предложению дизайнера облегчить перегруженный деталями и фактурами интерьер, частично сохранить отделку и заменить мебель и аксессуары на более современные. В итоге получился стильный богемный интерьер с классическим бэкграундом.
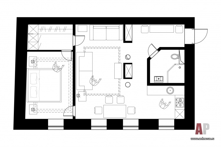
Двухкомнатная квартира общей площадью 55, 4 кв. м имеет форму неправильного прямоугольника (одна стена расположена под небольшим углом, что, в целом не критично). Несмотря на то, что в квартире 4 окна, все они имеют большую глубину и арочную форму, отчего квартира выглядит затемненной и камерной. Прихожая, гостиная, кухня объединены в общее пространство, его зонирует объем расположенной по центру ванной комнаты, а также встроенные в ниши шкафы и колонны.
В одной из колонн проходит воздуховод, который прежние хозяева решили задекорировать таким образом. Раньше колонны были выделены цветом, но в новом интерьере они слились с цветом стен, растворились в пространстве.
Спальня и гардеробная максимально удалены от входа и изолированы от гостевой части. Квартира удобна как для тихого семейного отдыха, так и для приема гостей.
Работу над изменением облика интерьера дизайнер Татьяна Иванова начала с перекраски потолков в радикальный темный цвет. «Выбор цветового решения и декоративных ходов во многом диктовала оставшийся от прежних хозяев кухонный гарнитур, серо-оливковые фасады которого украшены ручной росписью с изображением кустов чертополоха. В основе сюжета росписи – старинные иллюстрации к шекспировским сонетам», - рассказывает автор проекта.
Кирпичные стены, двери из резного дерева, встроенные шкафы, паркет, состаренные зеркала и даже лепной гипсовый декор сохранился, но мебель была подобрана заново. Предметы дизайнер выбирала функциональные, классические по форме, но максимально воздушные и легкие. Так, зеркальный комод, обеденные стулья с покрытием из сусального золота, столики и консоль с фурнитурой из состаренной латуни придают интерьер богемный шик, но не перегружают пространство. Важную роль играют и ткани: плотные, тяжелые, будуарные портьеры и обивки из бархата и шелка подчеркивают камерный характер интерьера.
Комплектация объекта
Строительные и отделочные материалы и изделия
Текстильный дизайн, компания Lighthouse Grand
Декоративная финишная отделка стен, поставщик «Салон краски»
Свет John Richard, Hudson Valley Lighting, Masiero, Restoration Hardware, поставщики «Стелс», White House
Ковры, ручная работа, Индия, поставщик Dovlet House
Искусство, Lumas, художник Андрей Ананьев
Декор BoConcept, Crate and Barrel, Artisan House
Хрусталь Lalique, Baccarat
Манекен, Baroque International
Зеркала Bassett Mirror, Uttermost
Сантехника Globo
Мебель
Прихожая консоль Global Views, стулья Vittorio Grifoni
Гостиная диван Busnelli (модель Tresor), зеркальный комод Hooker, столик Arketipo (модель Rebus)
Столовая обеденный стол Cattelan Italia, стулья Fasem (модель Charme), стулья с подлокотниками Mis en Demeure
Кухня, на заказ, авторская работа
Спальня кровать Vanguard Furniture, комод Grange
Гардеробная Sangiacomo
Вся мебель – поставщики «Стелс», White House; антиквариат
Оборудование
Чугунные радиаторы Arbonia
Оборудование кухни Kuppersberg
Вилла в стиле бель-эпок на побережье Франции
Итальянская квартира в Москве О профессии «ландшафтный архитектор», образовании и специфике частных и общественных ландшафтных проектов говорим с Иваном Бугаевым…




















Ландшафтный архитектор. Инженер. Проектировщик. Логик.
«Мода в интерьере — это зеркало нашего быта»...
Храм в городе
Три кита современного стиля
Проект: Аэропорт «Кавказ» 
11
22
33
44
55
66
77
88
99
1010 