Закрыть галерею
Изображение 16 из 16

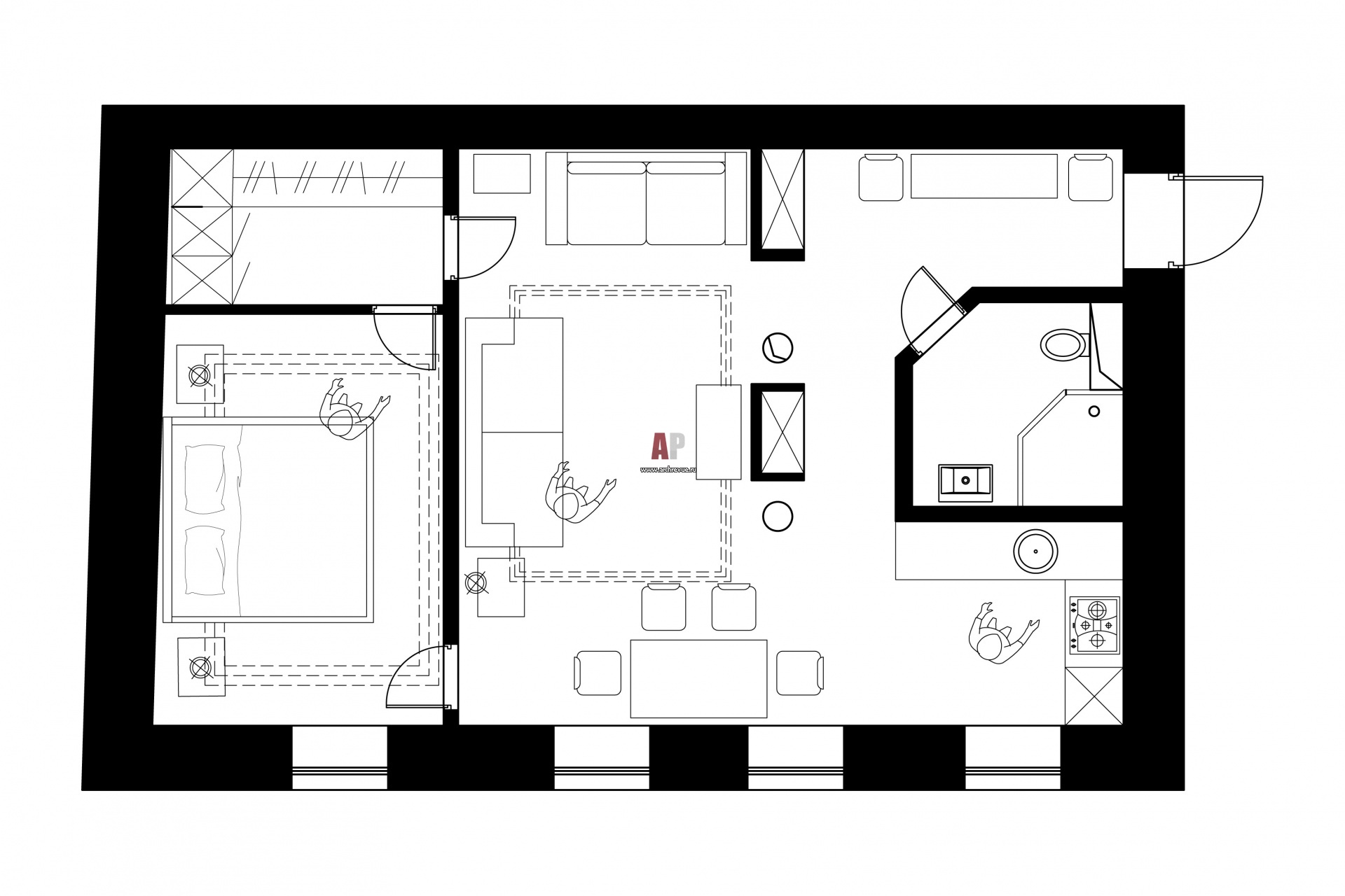
Планировка двухкомнатной квартиры для временного проживания семейной пары.

План 2-х комнатной квартиры на Патриарших прудах. Общая площадь – 55, 4 кв. м.

Проект: Богемный интерьер на Патриарших прудах
Автор проекта: Иванова Татьяна
Объект: Квартира с классическим бэкграундом
Общая площадь: 55,4 кв.м.