Для семьи с тремя детьми дизайнер Ольга Черненко оформила дом в Подмосковье площадью 650 кв. м. Благодаря использованию сбалансированной теплой палитры с умеренными цветовыми акцентами, а также материалов из экзотических пород дерева с живописной, насыщенной фактурой, она создала комфортное пространство для семейной жизни на природе. Задача перед дизайнером стояла непростая: требовалось реконструировать существующий коттедж с многоуровневой структурой, максимально увеличить жилую площадь и создать интерьер, который будет актуален долгое время.
«Семейный дом – третий совместный с заказчиком проект, - отмечает Ольга. – Проект шел легко, предложения принимались быстро, проблемы решались оперативно. Схожесть вкусов и слаженная работа всей команды, включая строителей, изготовителей индивидуальных изделий, поставщиков готовых предметов, позволили завершить проект в рекордные сроки – за 16 месяцев!»
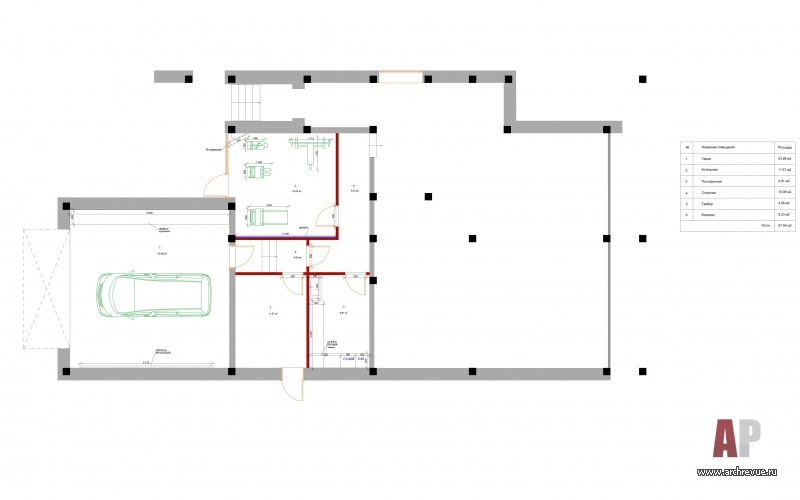
Трехэтажный дом с современной архитектурой, высокими окнами и частичной отделкой фасадов деревом изначально имел сложную структуру. Каждый этаж перепадом пола был разделен на уровни, которые воедино связывала центральная лестница. На верхнем, этаже высота потолков составляла 6 метров, что позволило сделать дополнительные перекрытия под коньком крыши и надстроить дополнительный этаж.
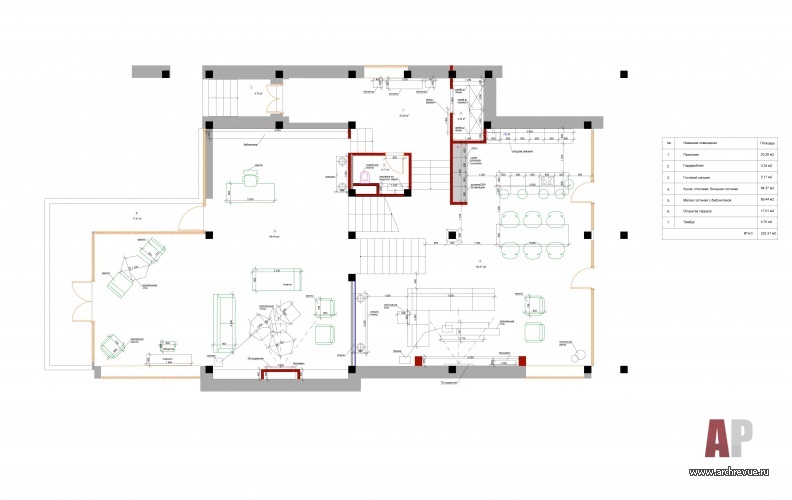
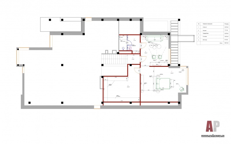
Благодаря чему общая площадь дома с 600 кв. м увеличилась до 650 кв. м. Первый этаж занимают общие зоны и технические помещения: входная группа гардеробные, гостевой санузел, гараж, спортивная зона, котельная, постирочная. На втором этаже расположены гостевые помещения: большая гостиная с обеденной группой и кухней, на пол уровня выше ее находится малая гостиная с музыкальным салоном и кабинетом. Третий этаж – хозяйская приватная территория с четырьмя спальнями (к каждой из них примыкает собственный санузел и гардеробная). За счет уменьшения 6-метроваых потолков в детской удалось сделать в мансарде гостевую спальню с гостиной, ванной и гардеробной.
Интерьер дома оформлен в современной стилистике и полон природных материалов с красивой фактурой. «Дом обращен на ландшафт, через высокие окна природа за окном становится продолжением внутреннего пространства. Нам хотелось подчеркнуть связь интерьера и экстерьера, провести природную линию в интерьере, поэтому выбор был сделан в пользу натуральных материалов с их природной красотой. И притом материалов самых лучших…
Например, редкий мрамор Teak Wood для панно в большой гостиной мы искали 2 месяца, тщательного отбора потребовало и дерево. Мы отказались от тонированного дуба и венге и нашли удивительные панели из древесины этимоэ насыщенного коричневого-красного цвета с живописной текстурой. В лучах солнца это дерево выглядит необычайно эффектно», - отмечает дизайнер проекта. Природную сущность интерьера подчеркивают светильники, имитирующие живую растительность, и мебель в отделках из камня и натурального текстиля.
Комплектация объекта
Строительство, компания «СтройЭксперт–М»
Строительные и отделочные материалы и изделия
Изделия из натурального камня, мрамор Teak Wood, компания «КАМ»
Текстильный дизайн, ткани, компания «Кадо»
Двери, Longhi и Barausse
Лестница, поставщик «СМквадрат»
Финишная отделка стен, краска Little Greene, поставщик «Салон краски»
Обои Seabrook, коллекция Trinidad
Керамогранит ABK Ceramiche, Rex, Sant Agostino, поставщик Studio–Line; Mutina коллекция Bas–relief
Декоративный свет Flos, Delightfull, Leucos, MOOOI (модель Heracleum Endless), Vistosi, Axo Light, Vibia, Masiero, Artemide, De Majo Illuminazione, Fabbian, Wever & Ducré, Ceccotti, Barovier & Toso, поставщик «Частная коллекция»
Встроенные светильники, поставщик «Арт Объект»
Декор, аксессуары, Crate and Barrel
Ковры, поставщик Dovlet House
Постельное белье, поставщик L–Collection
Сантехника Villeroy & Boch, Duravit, Antonio Lupi, Laufen; ванные Villeroy & Boch, душевые кабины Kermi, поставщик «Частная коллекция»
Мебель
Прихожая консоль, пуф, Minotti
Гостиная диван, кресла и пуф Minotti (модели Collar и Prince), комод Miniforms
Малая гостиная мягкая мебель Minotti, диваны, кресла, Arketipo, журнальные столики Draenert
Кабинет письменный стол Galimberti Nino, рабочее кресло Giorgetti
Кухня Valcucine (модель Artematica)
Столовая обеденный стол Draenert, стулья Poltrona Frau, барные стулья COR
Спальня кресло Moroso, столик Miniforms
Детская среднего сына кровать Maxalto, прикроватная тумбочка Sangiacomo, стул, кресло, B&B Italia, письменный стол Molteni&C
Детская старшего сына кровать Smania, письменный стол, комод под ТВ Lema, прикроватные тумбочки Ceccotti, кресло Poliform (модель Santa Monica lounge)
Мансарда кресло Ligne Roset (модель Ruche), диван Swan, столик Moroso
Мебель для ванных комнат Antonio Lupi, Oasis, Keuco
Вся мебель – поставщик «Частная коллекция»
Оборудование
Электроустановочные изделия, розетки и выключатели, поставка и монтаж «Элевел»
Оборудование кухни, вытяжка Falmec, встроенная бытовая техника Gaggenau и Neff
Современная квартира с арт-объектами
Мужской фьюжн Великое наследие и возрождение Храмового зодчества в России – поговорим об этом с архитектором Дмитрием Пшеничниковым, основателем архитектурного бюро «Дмитрий Пшеничников и Партнеры»




































«Мода в интерьере — это зеркало нашего быта»...
Храм в городе
Три кита современного стиля
Проект: Аэропорт «Кавказ»
«Я рассматриваю интерьер как сценарий жизни конкретного человека» 
11
22
33
44
55
66
77
88
99
1010 