Закрыть галерею
Изображение 31 из 32

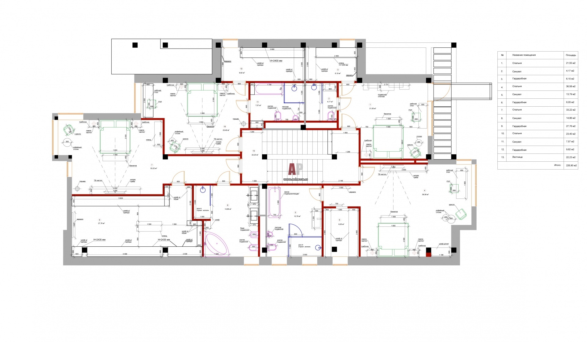
План 3 этажа частного жилого дома с многоуровневой планировкой.

Планировка третьего этажа 4-х этажного дома в современном стиле. Общая площадь – 650 кв. м.

Проект: Семейный дом в Подмосковье с природными материалами
Автор проекта: Черненко Ольга
Объект: На все времена
Общая площадь: 650 кв.м.