В новом доме в центре Москвы архитекторы АБ «Шаболовка» создали интерьер, который погружает в атмосферу 1970-х годов. В поисках исторических аналогий архитекторы обратились к наследию голландского художника Пита Мондриана. Взяв за основу его абстрактные полотна с четким модулем рисунка, они спроектировали комфортный интерьер вне времени.
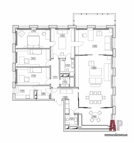
Квартира площадью 230 кв. м сдавалась в свободной планировке. Логика организации пространства в ней подчинена архитектуре здания и, в особенности, панорамному остеклению по всему периметру пространства.
Архитекторы отказались от глухих межкомнатных перегородок, заменив их стеклянными раздвижными дверями, которые объединяют разные функциональные зоны в единый светлый объем. Квартира разделена на два блока: приватную зону со спальнями гардеробом и ванными комнатами и дневную зону с амфиладным расположением комнат и со сквозным проходом из зон гостиной и кабинета в зону спален.
Ячеистый модуль, который в своем творчестве разрабатывал Пит Мондриан, лег в основу художественного решения проекта. Строгий геометрический рисунок, набранный из четырехугольников разного размера, читается в декоре каменных полов, раскладке керамике в санузлах, в форме раздвижных стеклянных дверей, но больше всего в облике стеновых панелей.
Для усиления эффекта геометрические решетки мебельных композиций в гостиной и библиотеке набраны из шпонированных панелей разных пород дерева, которые отличаются и цветом, и структурой. Взяв у Мондриана ритмический рисунок, архитекторы полностью отказались от авангардной колористики из ярких красных, синих, желтых и белых цветов. Они сделали ставку на природные оттенки и экологическую тему. Дополняют ностальгический интерьер реплики предметов мебели 1970-х годов.
Комплектация объекта
Строительные и отделочные материалы и изделия
Строительные материалы, «КНАУФ»
Изделия из дерева, стеновые панели, двери, компания Novitta
Керамогранит, поставщик Arch-Skin
Декоративный свет MOOOI, Porada
Свет встроенный, поставщик Centrsvet
Сантехника Duravit
Ковры, поставщик Art de Vivre
Аксессуары, поставщик IDC Collection
Мебель
Гостиная Calligaris, Porada, Miniforms
Столовая Calligaris, Potocco
Кухня Cesar
Кабинет Porada, Miniforms
Спальня Gervasoni, Miniforms
Оборудование
Система вентиляции и кондиционирования Mitsubishi
Оборудование кухни Smeg
Дом на холме
Классика с рябиново-красными акцентами Великое наследие и возрождение Храмового зодчества в России – поговорим об этом с архитектором Дмитрием Пшеничниковым, основателем архитектурного бюро «Дмитрий Пшеничников и Партнеры»





















Равновесие, цельность и гармония как результат работы архитектора…
Ландшафтный архитектор. Инженер. Проектировщик. Логик.
«Мода в интерьере — это зеркало нашего быта»...
Храм в городе
Три кита современного стиля 
11
22
33
44
55
66
77
88
99
1010 