Дизайнеры Алена Нагаева и Елена Минчева в рекордно короткие сроки оформили полный света и воздуха дом площадью 600 кв. м: ровно пять месяцев прошло с первого эскиза до новоселья. Для себя и своей семьи руководитель строительной компании по индивидуального проекту построил двухэтажный дом с эксплуатируемым цоколем, закупил сантехнику и ряд отделочных материалов.
Дизайнеры подключились на стадии чистовой внутренней отделки, когда планировка была обозначена, стены подготовлены к декору, а пол всего первого этажа был облицован полированным мрамором розовато-бежевого оттенка. «Мы сразу поняли, что нужно «погасить» чрезмерный блеск камня: дом находится в окружении живописной природы, его панорамные окна ориентированы на ландшафт, поэтому хотелось создать спокойный интерьер с благородными фактурами и естественной цветовой палитрой. Благодаря доверию заказчика и слаженной работе всех участников проекта нам удалось воплотить все задуманные решения в жизнь и сделать это максимально быстро», - рассказывают дизайнеры.
«У хозяина дома очень хороший вкус и прекрасное ощущение пространства, - отмечают дизайнеры. – Особенно ценное качество архитектурного проекта – большое количество панорамных окон (они есть даже в прихожей, гардеробной и всех четырех приватных санузлах), отчего весь объем кажется пронизанным светом.
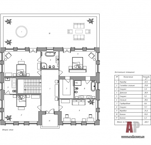
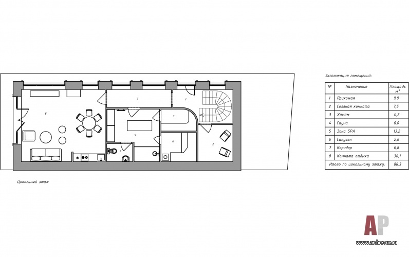
Первый этаж – это общее пространство гостиной, столовой, кухни, каминной зоны с удобными креслами. Чтобы отделить кухню от парадной части и в то же время не перегружать объем, дизайнеры установили облегченную перегородку, которая работает на просвет. Также внизу расположен кабинет и гардеробная. Второй этаж занимают четыре спальни, каждая со своим санузлом. В цокольном этаже находится зона отдыха с витражным остеклением и выходом в сад.
Отправной точкой в поисках декоративного решения стали интерьерные вырезки из журналов, который принес с собой заказчик. «Так получилось, что на всех них были проекты с серо-голубыми интерьерами Жана-Луи Денио. Эти светлые, наполненные воздухом и гармонией с природой интерьеры стали для нас источником вдохновения», - отмечают Алена Нагаева и Елена Минчева.
Серо-серебристая цветовая гамма связывает интерьер с ландшафтом, не случайно в выбранном цвете оформлены даже потолки приватных помещений: кажется, что небо «втекает» в интерьер через витражное остекление. Значительная часть предметов была изготовлена на заказ по эскизам дизайнеров, великолепные светильники в стиле mid-century выполнены на заказ, аксессуары точечно подбиралась в московских салонах из наличия, а глянцевый каменный пол подвергся глобальной реконструкции. С него был снят верхний слой, в итоге получился матовый камень, который, будто был здесь всегда.
Комплектация объекта
Строительные и отделочные материалы и изделия
Лепной декор из гипса, поставщик «Эллада»
Финишная отделка стен, краска Benjamin Moore
Паркетная доска, поставщик Kahrs
Камень, плитка, поставщик RIM.ru
Обои Fornasetti
Свет Gallotti & Radice, Visual Comfort & Co, Restoration Hardware, Heathfield & Co, Stephane Davidts; декоративные светильники, на заказ, по эскизам дизайнеров, изготовление Handle Studio и Bottega
Ковры, поставщики Crate and Barrel, Art de Vivre
Текстиль Sahco
Зеркала Crate and Barrel, Eichholtz
Вазы Hedwig Bollhagen
Сантехника Duravit
Мебель
Гостиная диваны, кресла Flexform, журнальный столик Gallotti & Radice, столик у камина Crate and Barrel
Кухня-столовая обеденный стол Minotti, стулья Marie's Corner, кухня сделана на заказ
Спальня кровать, прикроватные тумбочки сделаны на заказ, кресла Eichholtz
Гостевая спальня кресло Puylaert Home Basics, столик Gubi, кровать сделана на заказ по эскизам дизайнеров; прикроватные тумбочки Crate and Barrel
Зона отдыха в цокольном этаже журнальный столик Eichholtz, диван и кресло Furman
Оборудование
Электроустановочные изделия Jung
Оборудование кухни Smeg
Яркая классика
По следам Пита Мондриана Великое наследие и возрождение Храмового зодчества в России – поговорим об этом с архитектором Дмитрием Пшеничниковым, основателем архитектурного бюро «Дмитрий Пшеничников и Партнеры»























Равновесие, цельность и гармония как результат работы архитектора…
Ландшафтный архитектор. Инженер. Проектировщик. Логик.
«Мода в интерьере — это зеркало нашего быта»...
Храм в городе
Три кита современного стиля 
11
22
33
44
55
66
77
88
99
1010 