Перед архитекторами бюро Desatori заказчик поставил задачу спроектировать современный, легкий интерьер с элементами классики, в выборе декоративных решений, колористики, художественных доминат был дан полный карт-бланш. «Нам хотелось создать дом, в котором будет удобно жить среднестатистической семье из пяти человек. Поэтому приходилось придумывать истории, которые могли бы подойти для разных сценариев и жильцов. Особенно хотелось придать дому теплоты, уюта, гармонии, поэтому в отделке появились натуральные оттенки дуба», - рассказывает автор проекта дизайнер Владислава Гравчикова.
Трехэтажный дом площадью 370 кв. м расположен в Одинцовском районе. Несмотря на компактные размеры, он кажется большим и просторным, во многом благодаря высоким окнам, которые прекрасно пропускают свет, большой высоте потолков и правильной геометрии помещений. Воздух и свет здесь наполняют все комнаты, лестничные марши и ванные комнаты.
Изначально дом представлял собой свободное пространство с несколькими металлическими колоннами на этажах. Основной целью перепланировки стала необходимость разделить общественную и приватную зоны и сделать пространство максимально удобным для семейного проживания. Первый этаж представляет собой роскошную анфиладу, которая включает холл, гостиную-столовую и кухню. Он полон света и воздуха, которые свободно проникают через стеклянные двери и открытые порталы.
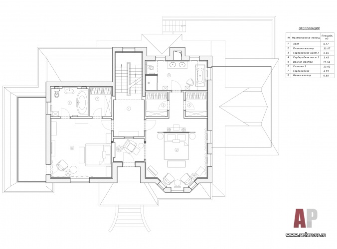
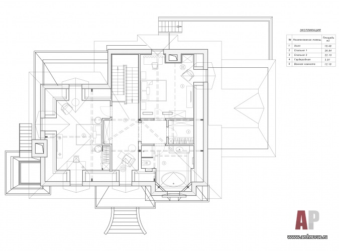
По другую строну от лестничного холла находится кабинет хозяина и технические помещения. Второй этаж занимают две просторные спальни со своими ванными комнатами и гардеробными. В мансарде организована зона отдыха с библиотекой, а также размещены две детские с гардеробной и санузлом. Из-за сильного скоса кровли дверь в одну из спален пришлось сильно понизить и замаскировать стеновыми панелями, обитыми тканью.
Сами авторы определяют стилистику интерьера как обитаемую классику в современном прочтении, с отголосками традиционных американских интерьеров. Отчасти дом выглядит строгим и графичным: четкая геометрия линий, которая прослеживается в оконных переплетах, в отделке мебели и декоративных перегородках, в рисунке на коврах, мраморных плитах пола и настенных панелях. Но эта графика задает ритм, подчеркивает масштаб деталей, создает свой особый художественный ряд.
Черный цвет авторы проекты смягчают теплыми оттенками серого, молочного, голубого и рябиново-красного. Чтобы подчеркнуть, что дом находится за городом, в природном окружении, они используют много натурального дерева, особенно светлого, выбеленного дуба с состаренной фактурой. Зеркальные поверхности, латунь, обои с серебристым рисунком, дающие легкое мерцание, ткани с легким блеском подчеркивают легкость и воздушность интерьера. Мебель и декор дополняют декоративный ряд, дают ощущение покоя, семейного тепла и уюта.
Комплектация объекта
Строительство, Art-manor
Строительные и отделочные материалы и изделия
Изделия из дерева, работы по камню, изделия из металла, гипсовый лепной декор, Art-manor
Обои GP&J Baker, BorasTapeter, York Wallcoverings (коллекция Ronald Redding), Cole & Son, Wallquest (коллекция Villa Flova), поставщик Artique
Финишная отделка стен, краска Benjamin Moore
Паркет, массив дуба, поставщик «Золотой лес»
Текстиль, поставщик Loffilab и «Галерея Арбен»
Свет Visual Comfort & Co, E. F. Chapman, Thomas O'Brien
Декор, аксессуары Eichholtz
Ковры Surya, nuLOOM
Сантехника Villeroy & Boch, Vitra, Simas, смесители Bugnatese, душ и аксессуары Axor
Мебель
Прихожая кресло и консоль Bernhardt, столик Caracole, комод Hooker
Гостиная серые кресла, диван Bernhardt, пуф-столик LeHome, красное кресло Caracole, столик Hooker
Столовая стол, стулья Hooker
Кухня, на заказ, стол, стулья Hooker
Кабинет стол, стул, комод Hooker
Спальня прикроватные столики, стол в эркере Hooker, комод, кресло Caracole, кровать Emerson Bentley, кресло и столик Bernhardt
Гостевая кровать и кресло Emerson Bentley, прикроватные тумбочки Hooker, столик Bernhardt
Детская прикроватные тумбочки, кровать, стул и письменный стол Bernhardt
Холл второго этажа кресло Bernhardt, столик Caracole
Оборудование
Системы вентиляции и кондиционирования Mitsubishi
Радиаторы Kermi
Электроустановчные изделия Legrand
Оборудование кухни Neff
По следам Пита Мондриана
Дом с парадной обстановкой О профессии «ландшафтный архитектор», образовании и специфике частных и общественных ландшафтных проектов говорим с Иваном Бугаевым…

































Ландшафтный архитектор. Инженер. Проектировщик. Логик.
«Мода в интерьере — это зеркало нашего быта»...
Храм в городе
Три кита современного стиля
Проект: Аэропорт «Кавказ» 
11
22
33
44
55
66
77
88
99
1010 