Яркие и эффектные апартаменты в стиле переосмысленного на современный лад ар-деко расположены в новой высотке в Санкт-Петербурге. Владельцы квартиры – давние знакомые архитекторов: 10 лет назад Наталия Сморгонская и Анна Беляевская оформили для них квартиру в духе лаконичного минимализма.
За это время изменились вкусы заказчиков, появились новые требования к жизненному пространству, родилось трое детей... К архитекторам они обратились с четким пожеланием создать статусный интерьер, яркий, броский, но функциональный и комфортный для жизни. В качестве основной стилистики было названо ар-деко, но не в историческом варианте, а его современная интерпретация.
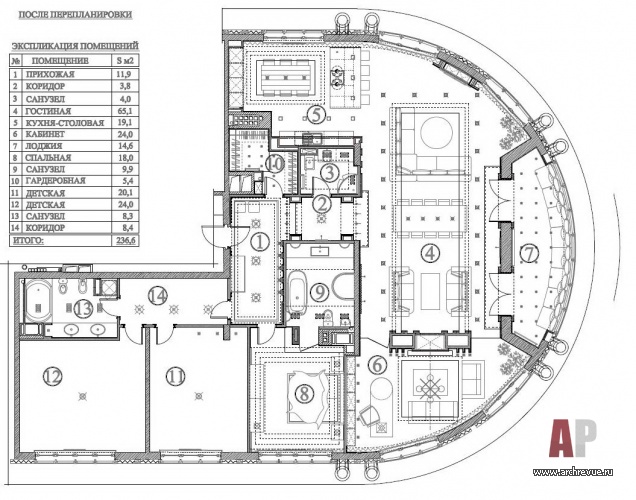
Квартира расположена в доме с полукруглой конфигурацией фасадов. Обтекаемая пластика, открытые объемы, большие окна продиктовали современную планировку. Общественная и приватная зоны разделены и разнесены в разные части пространства. Спальня хозяев и детские расположены в своем крыле, а гостевые помещения объединены в общий блок.
Каминный зал, парадная столовая, мягкая зона с домашним кинотеатром, кухня с зоной для завтраков перетекают в кабинет (он же место для общения мужской компании). Их разделяет двухсторонний камин из черного мрамора. К общему объему примыкает остекленная лоджия, где расположилась игровая зона. Выход на нее оформлен в виде нарядных стеклянных дверей.
Яркость и эффектная образность соединены с лаконичной функциональностью. За основу декоративного решения взят принцип комбинации простых строгих форм и фактурных материалов. Отделочные материалы выбирались по принципу декоративности и выразительности.
Черный мрамор с белыми прожилками ( облицовка перегородок), медовый камень (отделка пола), созданные вручную фактурные покрытия, авторские росписи, броские предметы мебели, авторские аксессуары (панно из металла, дверные ручки), двери и панели из ореха с необычным природным рисунком. Но особого внимания заслуживают потолочные и стеновые покрытия, украшенные стилизованными под ар-деко мотивами и покрытые сусальным золотом. Они создают яркое, праздничное настроение.
Комплектация объекта
Строительство, компания «Алекс»
Строительные и отделочные материалы и изделия
Изделия из камня, облицовка камина, компания «Камнетес»
Декоративная финишная отделка стен и потолков, фактурная штукатурка, росписи, компания AD Modum
Натяжные потолки, поставщик Innotech Maxand
Лепной декор из гипса Сергей Гаврилин
Двери, поставщик Bellissimo
Художественные элементы, художник-декоратор по лепнине и металлу Дмитрий Агузаров
Свет Amelihome, Sigma L2, Delta Light, OF Interni, поставщик «Группа MODUL»
Дверные ручки Salice Paolo
Сантехника Axor, Dornbracht
Мебель
Гостиная диваны, журнальный столик Gamma Arredamenti
Кухня Leicht, поставщик Rossi
Кабинет диван Gamma Arredamenti, стол Giorgetti
Спальня кровать Mantellassi, тумбы Fimas
Оборудование
Системы вентиляции и кондиционирования Mitsubishi
Домашний кинотеатр Samsung
Оборудование кухни Kuppersbusch
Минимализм для семьи
Особняк в Бельгийской деревне О профессии «ландшафтный архитектор», образовании и специфике частных и общественных ландшафтных проектов говорим с Иваном Бугаевым…



























Ландшафтный архитектор. Инженер. Проектировщик. Логик.
«Мода в интерьере — это зеркало нашего быта»...
Храм в городе
Три кита современного стиля
Проект: Аэропорт «Кавказ» 
11
22
33
44
55
66
77
88
99
1010 