Закрыть галерею
Изображение 22 из 23

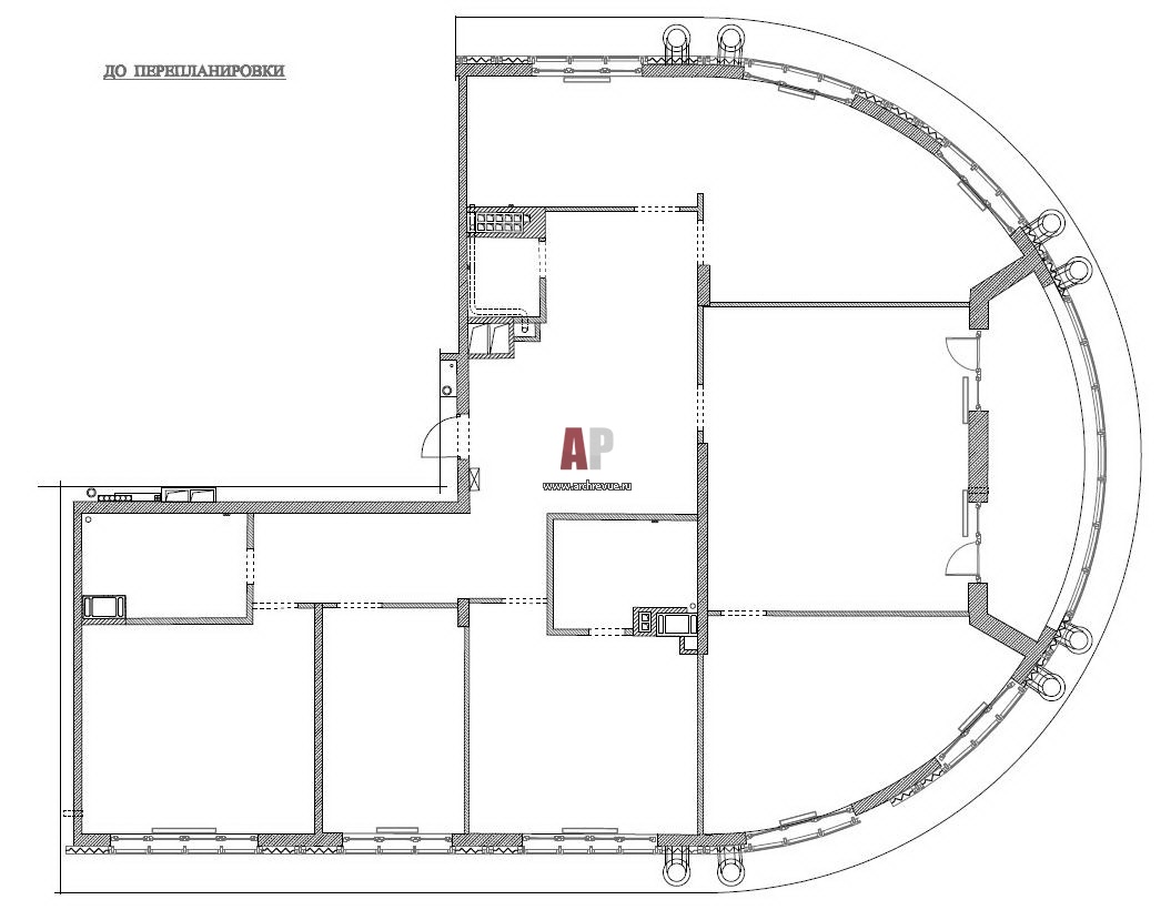
Планировка квартиры 220 кв. м. в стиле современное ар-деко до реконструкции.

План большой семейной квартиры площадью 220 кв. м с панорамным радиусным фасадом до реконструкции.

Проект: Квартира в стиле современное ар-деко в Санкт-Петербурге
Автор проекта: Беляевская Анна, Сморгонская Наталия
Объект: Авангардное ар-деко
Общая площадь: 220 кв.м.