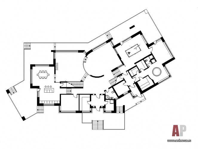
В основе концепции трехэтажного дома – идея совместного проживания нескольких поколений одной семьи. Перед архитекторами стояла задача создать независимые условия для жизни каждого из них. Тип здания – современное шале.
Под пологую двускатную крышу помещен большой и сложный архитектурный объем с разноуровневыми пространствами внутри. Южная часть фасада исполнена в стекле, северная «закрыта» натуральным деревом.
В здании мало несущих стен. Зонирование осуществляется путем распределения помещений на разных уровнях. Большую роль во внутренней архитектуре и дизайне играет витражное остекление фасадов. Несмотря на разницу высот архитекторам удалось сделать из двух этажей почти единый сквозной объем.
Смысловое и визуальное ядро дома – гостиная с мягкой зоной и камином, оформленная как ротонда. Внутренние балконы, которые соединяют два приватных крыла дома (в них разместились разные поколения семьи), лестницы и открытые дверные проемы являются частью интерьера гостиной.
В сдержанном по декору интерьере преобладает стекло, светлое дерево и натуральный камень. Все материалы имеют естественную фактуру. Акцент сделан на чистоту архитектуры. В доме присутствует только самая необходимая мебель, благодаря чему помещения выглядят еще больше и светлее.
В выборе мебели предпочтение отдано простым формам и натуральным отделкам с приятной на ощупь фактурой. Дом полон света. Все жилые комнаты в нем расположены навстречу полуденному солнцу, что положительно действует на психологию человека. Быстрые подмосковные зимние сумерки компенсированы разнообразным внутренним освещением дома. Его формируют преимущественно встроенные светильники.
Комплектация объекта
Строительство, изделия из дерева «Дайджест-Комплект»
Теплоизоляция кровли ROCKWOOL
Изделия из металла «Дельфис-М»
Изделия из стекла, витражи «Александрия»
Отделочные материалы
Пол выбеленный дуб Matimex, керамогранит, поставщик RIM.ru
Стены покраска, обои
Потолок покраска
Окна дерево, алюминий Doleta, поставщик «Дайджест-Комплект»
Сантехника Duravit, Agape, поставщик Loft Studio
Мебель
Гостиная Armani Casa, поставщик ITG
Кухня Bulthaup, поставщик ITG
Свет, поставщик ITG
Оборудование
Домашний кинотеатр, аудио- и видеоаппаратура Loewe AG
Системы кондиционирования Daikin
Гостевой дом из оцилиндрованного бревна
Частный клуб для буржуа Поиски нового офиса привели владельцев архитектурного бюро «Крупный план» к неожиданному, но очень значимому шагу – приобретению особняка - объекта культурного наследия XIX века...
















Созидание как эволюция: офис бюро «Крупный план»
Равновесие, цельность и гармония как результат работы архитектора…
Ландшафтный архитектор. Инженер. Проектировщик. Логик.
«Мода в интерьере — это зеркало нашего быта»...
Храм в городе 
11
22
33
44
55
66
77
88
99
1010 
Когда я проектирую дом, то представляю себе, что будет чувствовать человек, находясь в каждой конкретной его точке. На мой взгляд, загородный дом – это не просто большая квартира. Уровни и объемы оказывают определенное воздействие на человека. Чем просторнее жилье, тем больший психологический комфорт испытывает его владелец.
Проектируя и строя коттеджи, мы с большим вниманием относимся к окружающей среде. Так, в данном случае, мы не только не потревожили столетние сосны, но на деревянной террасе, примыкающей к южному фасаду, сделали для них отверстия. А фундамент специально располагали неглубоко, чтобы не повредить водоносный слой почвы.