Загородный жилой дом «Макалун» расположен в Пирогово, его архитектурный облик – дань увлечению хозяина культурой Китая. Двухэтажное деревянное здание с пологой двухскатной кровлей, панорамными окнами балконами и изящными навесами из дерева располагается недалеко от береговой линии Клязьминского водохранилища, на основной территории комплекса, рядом с дорогой, идущей через лесной массив.
Дом развернут к водохранилищу южным фасадом, благодаря чему открывается прекрасная панорама на живописный пейзаж. Ощущение ориентированности на природу усиливает панорамное остекление первых этажей. Снаружи дом отделан шпунтованной доской из красного дерева разной ширины и плотности. Южный фасад обрамлен рядом рустованных колонн из дерева, они поддерживают навес второго этажа. С торцов деревянные рейки выглядят как ширмы, которые хорошо пропускают естественный и искусственный свет.
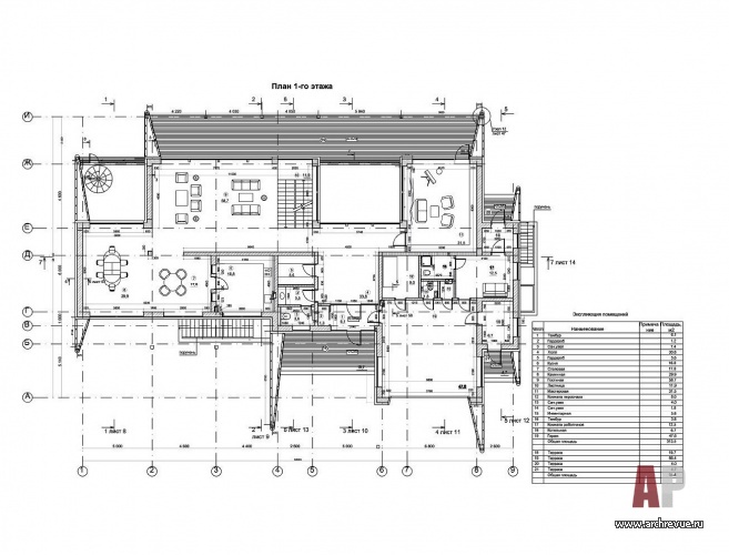
Жилое пространство организовано на трех этажах: двух надземных и подземном уровне. Ядро первого этажа – двусветная гостиная с камином, чья волнообразная форма напоминает горную цепь. В едином пространстве с гостиной исполнен лестничный холл с галереей второго этажа.
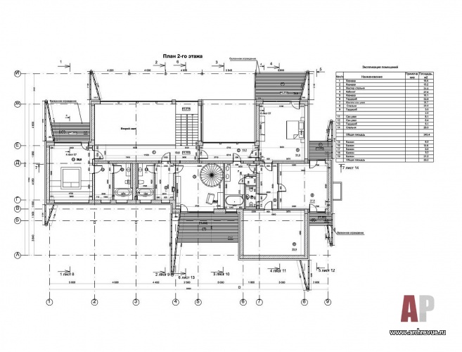
В гостиной примыкает столовая, кухня и приватная гостиная с льняными диванами. На втором уровне находятся приватные помещения: спальни, рабочий кабинет, галерея. В подвальный этаже находятся помещения для отдыха и досуга: бассейн, сауна, зона для отдыха и медитаций, а также домашний кинозал.
В интерьерах, как и во внешнем облике здания, прослеживаются мотивы традиционной китайской архитектуры. Они читаются и в визуальной доминанте общественного пространства – величественном камине из дерева с волнообразной поверхностью. А также в изящном рисунке ограждения лестницы, в ритме деревянного потолка в зоне отдыха, в подиумной конструкции кровати в спальне…
Помимо дерева в отделке интерьеров используется стекло и натуральный пиленый сланец. Внимание архитектора к деталям и высокое мастерство их исполнения российскими мастерами выводит интерьер на высочайший уровень архитектурного мастерства.
Комплектация объекта
Строительство, компания «ТДВ-Трест»
Инженерный проект, компания ABL - engineering group
Строительные материалы и изделия
Кровля из лиственничного гонта, компания «Сруб-Инфо»
Фасадная доска из лиственницы, поставщик BigHouse
Сланец в облицовке фасада и внутренней отделке, поставщик «Штайнверк»
Деревянные окна, витражи и наружные двери из дуба, компания «Виллдор»
Отделочные материалы и изделия
Изделия из дерева, межэтажная лестница и деревянная облицовка стены с камином, компания «Столярная мастерская Михаила Романова»
Изделия из стекла и стали, компания «Нормаль»
Паркетная доска из многослойного массива, поставщик Schotten & Hansen
Сантехника, поставщик Konzept
Мебель
Комплектация заказчика
Оборудование
Вентиляция ABL - engineering group
Канализация ABL - engineering group
Оборудование сауны, поставка и монтаж «Сауна Данн»
Оборудование для бассейнов, поставка и монтаж «Контек»
Офис в стиле мужского ар-деко
Офис в неоклассике с лепниной Великое наследие и возрождение Храмового зодчества в России – поговорим об этом с архитектором Дмитрием Пшеничниковым, основателем архитектурного бюро «Дмитрий Пшеничников и Партнеры»




































Ландшафтный архитектор. Инженер. Проектировщик. Логик.
«Мода в интерьере — это зеркало нашего быта»...
Храм в городе
Три кита современного стиля
Проект: Аэропорт «Кавказ» 
11
22
33
44
55
66
77
88
99
1010 