Закрыть галерею
Изображение 32 из 32

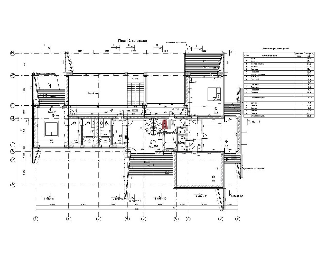
Планировка второго этажа деревянного дома Макалун. Общая площадь - 1154 кв. м.

Дом Макалун. Архитектурное бюро Тотана Кузембаева. План второго этажа.

Проект: Деревянный дом «Макалун» с китайскими мотивами
Автор проекта: Кузембаев Тотан
Соавтор(ы): Первенцев Александр, Хазгалеева Амина, Косова Ольга, Исаев Павел, Пенский Сергей
Объект: Деревянный дом «Макалун»
Общая площадь: 1154 кв.м.