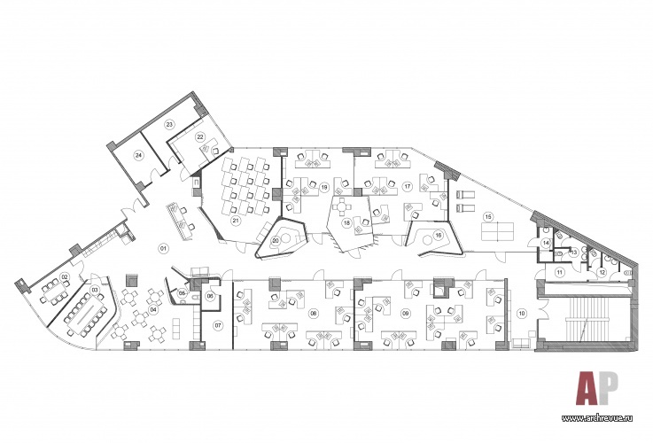
Представительский офис казанского подразделения компании «Яндекс» расположен на 16-этаже БЦ «Сувар-Плаза» и рассчитан на 41 рабочее место. В плане офис похож на трапецию, разрезанную коридором на две практически равные части. Коридор связывает главный вход и пожарный выход.
Пространство офиса организовано по коридорной системе – по обе стороны от коридора расположено четыре блока open space. Каждый из них рассчитан на 6-13 рабочих мест. Отдельным блоком вынесена серверная, к ней примыкает склад и кабинет системного администратора.
Помещения зоны работы с клиентами расположены у главного входа, вблизи рецепции, переговорных, лекционного зала и столовой. Вглубь по коридору находятся рабочие помещения и кабинет руководителя. Кабинет представляет собой стеклянный многоугольный объем, который проникает в коридор и частично отделяет два соседних open space друг от друга. При необходимости рабочее место руководства может быть зрительно изолировано с помощью штор. Еще дальше от главного входа размещен спортивный блок: спортзал и душевая.
Характерная особенность креативного пространства – зоны неформального общения. Они представляют собой две полузакрытые «ячейки» обтекаемых форм, обособленные от пространства коридоров.
Снаружи ячейки белые, под цвет открытых потолочных коммуникаций, а внутри они полностью зашиты ярко-зеленым ковролином. Контрастное сочетание зеленого и терракотового архитекторы применили в текстиле и элементах отделки.
Комплектация объекта
Строительство TRK Office Unit
Текстильный дизайн Надежда Рожанская
Строительные и отделочные материалы
Гипсокартон, поставщик «КНАУФ»
Потолочные системы Saint-Gobain
Звукопоглощающие панели Ecophon
Ковролин InterFace FLOR
Напольные покрытия, поставщик «Опус - Контракт»
Свет Fabbian
Мебель
Herman Miller, поставщик Contract Interiors
Оборудование
Электроустановочное оборудование ABB
Система вентиляции и кондиционирования Daikin
Современная квартира с витражами
Буржуазная квартира в дереве О профессии «ландшафтный архитектор», образовании и специфике частных и общественных ландшафтных проектов говорим с Иваном Бугаевым…






























Созидание как эволюция: офис бюро «Крупный план»
Равновесие, цельность и гармония как результат работы архитектора…
Ландшафтный архитектор. Инженер. Проектировщик. Логик.
«Мода в интерьере — это зеркало нашего быта»...
Храм в городе 
11
22
33
44
55
66
77
88
99
1010 