Закрыть галерею
Изображение 26 из 26

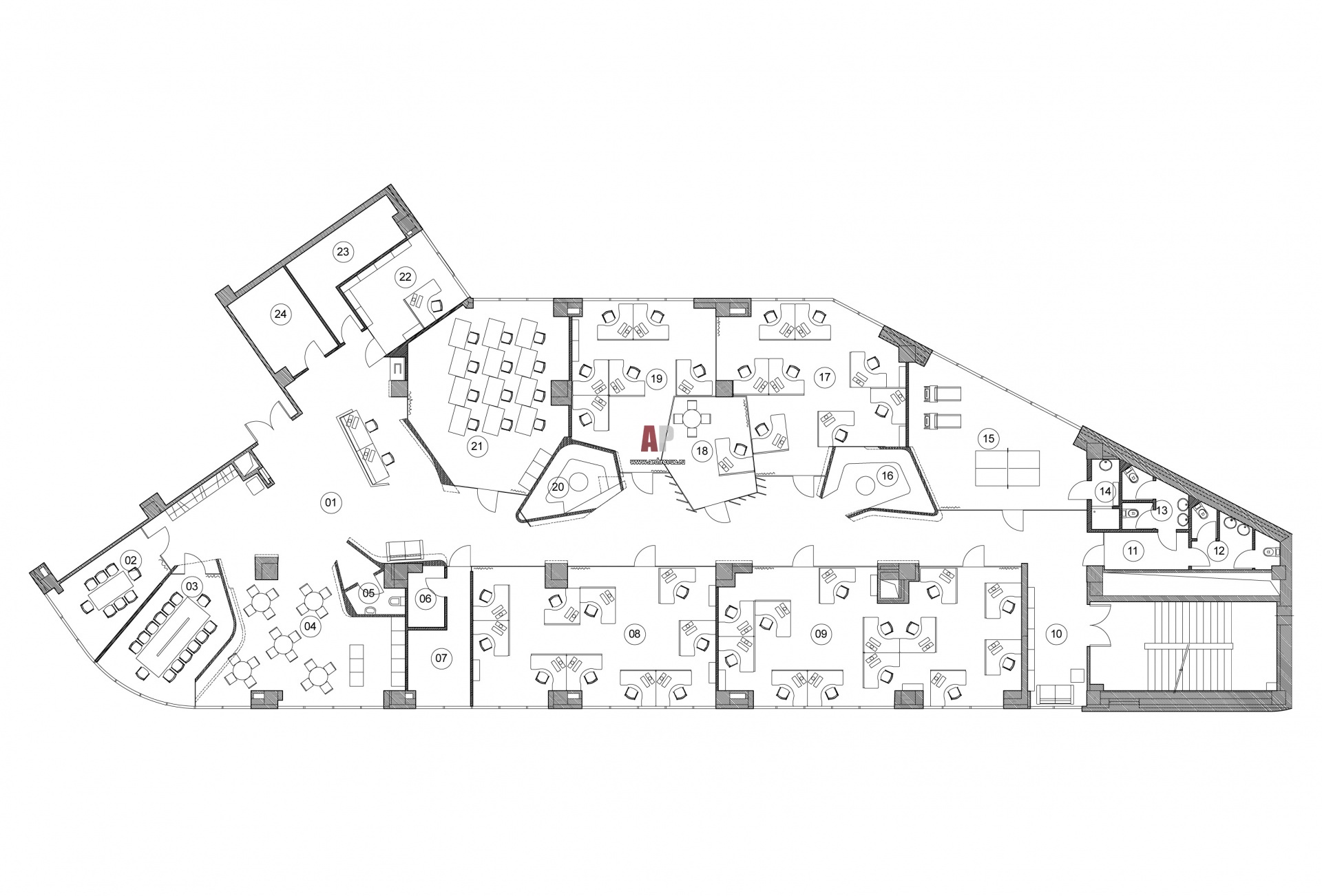
Планировка офиса Yandex в Казани.

План офиса компании Yandex в Казани. Общая площадь - 674 кв. м.

Проект: Представительский офис IT-компании в минимализме
Автор проекта: Борисенко Арсений, Зайцев Петр
Объект: Офис компании «Яндекс» в Казани
Общая площадь: 674 кв.м.