Нужно сразу сказать, что я не люблю дома-аквариумы. Дома, в которых нет стен, а есть только окна, кажутся мне неуютными: как будто живешь в витрине магазина. Единственное оправдание существованию жилого аквариума я нахожу лишь в пентхаусе – дом на вершине высотки просто обязан быть стеклянным, чтобы раскинувшаяся перед жильцами панорама города подтверждала тот факт, что хозяин этого дома пребывает на вершине мира. Вот почему проект чилийских архитекторов Фелипе Ассади и Франциска Пулидо мне кажется очень смелым и нестандартным.
Дом находится в Чили недалеко от столицы, в местечке Рунге. Площадь дома 150 кв м., площадь террасы 370 кв.м.
Я бы не обратил внимания на этот проект, если бы ни одна деталь. Этот дом-аквариум стоит на вершине холма. На первый взгляд, сам по себе дом прост, и в другом месте он не вызывал бы никаких эмоций, но здесь! – здесь совсем другое дело. Окна дома выходят на потрясающий горный пейзаж. Красота неописуемая. Великолепная панорама становится частью архитектурного замысла. Учитывая такой вид из окон, дом-аквариум приобретает абсолютно точное, правильное значение. Панорамные окна при таком пейзаже просто необходимы.
Авторы строения сравнивают свой проект с двухпалубным кораблем. Действительно, можно сказать, что верхняя палуба – это сам дом, а вторая, нижняя, палуба – это огромная деревянная терраса со встроенным бассейном. Плоская крыша и плоская терраса контрастируют с изломанными линиями окружающих гор. Сама постройка вместе с террасой похожа на большой деревянный шезлонг размером с дом, предназначенный для того, чтобы наслаждаться неповторимым пейзажем.
Но я бы развил дальше эту аналогию и сравнил бы этот дом с космическим кораблем. Строение находится на холме, горный пейзаж, бесспорно, красив, но он находится ниже уровня глаз. Главный действующий персонаж картины, которая предстает перед глазами при взгляде через окно, – это небо. Небо занимает почти весь оконный промежуток. Очень легко представить, как этот дом поднимается в воздух и улетает в бесконечное пространство. Фасад строения выполнен в легкой реечной манере, что делает здание невесомым и хрупким на вид.
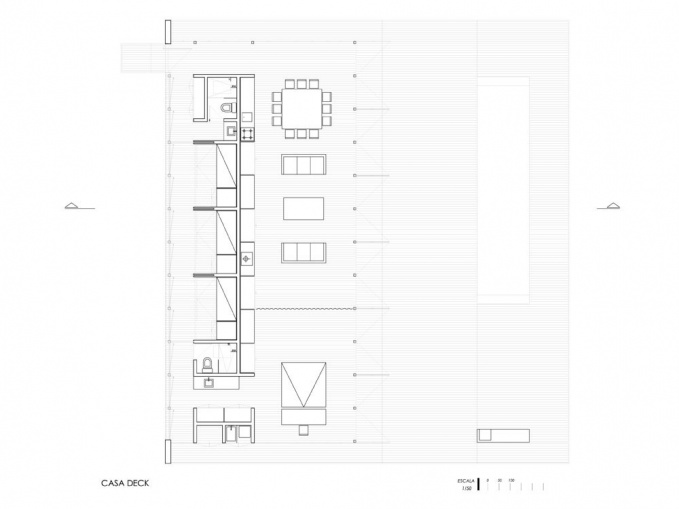
Еще больше мое сравнение с космическим кораблем подтверждает внутреннее устройство дома. Жилое помещение делится на два отсека. Первый - это значительная по величине гостиная, выходящая окнами на улицу с минималистичной мебелью в стиле лофт. Второй отсек, в котором находятся санузлы, кухня и небольшие отделения для кроватей, вообще лишен окон. При таком устройстве внутреннего пространства становится понятным, что дом предназначен скорее всего для двух человек. Семье в таком помещении будет попросту неудобно. Здесь абсолютно не учитываются интересы детей. Нет места для детской комнаты. Нет места для интимности, которую должны создавать закрытые комнаты.
Дом очень интересный, своеобразный, превосходно вписан в ландшафт, но ему не хватает удобства, приспособляемости и практичности. Вероятно, эту проблему могла бы решить возможность трансформации внутреннего пространства. Передвижные стены увеличили бы функциональность помещения, с тем чтобы оно отвечало повседневным потребностям человека. Однако такое решение увеличит стоимость постройки.
Расположение: Рунге, Чили
Площадь участка: 370 квадратных метров
Площадь дома: 150 квадратных метров
Архитекторы: Felipe Assadi, Francisca Pulido





























Проектирование йога-центров
О проектировании пентхаусов
Созидание как эволюция: офис бюро «Крупный план»
Равновесие, цельность и гармония как результат работы архитектора…
Ландшафтный архитектор. Инженер. Проектировщик. Логик. 
