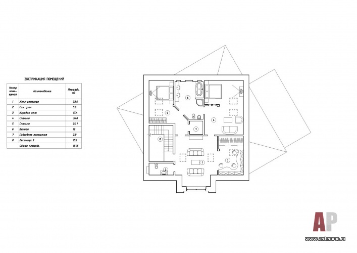
Заказчики приобрели участок с готовой постройкой непростой конфигурации, в плане представляющей неправильный шестиугольник, и внутренней планировкой с несущими конструкциями по центру.
Перед архитекторами была поставлена задача грамотно спланировать пространство, сделать его удобным для жизни всех членов семьи, создать выразительные интерьеры в стиле европейского кантри. Им также следовало декорировать фасады: обшить их деревом и камнем, превратив в подобие альпийского дома.
Работая с планировочной структурой, архитекторы пошли по нетривиальному пути. По центру объема на всех этажах они разметили блок темных помещений: ванных, санузлов, гардеробных, технических помещений.
Жилые помещения выстроились вокруг них, словно расходящиеся от центра лепестки цветов. Круговое пространство первого этажа занимают перетекающие друг в друга помещения холла, гостиной с камином, кухни и столовой. Второй уровень отдан приватным комнатам. В уютной мансарде расположены приватная гостиная, игровая зона и гостевая спальня. Цокольный этаж занимает зона релакса с винотекой, баром, бильярдной.
Облик интерьера формируют натуральные материалы с отчетливо выраженной фактурой: крупноформатная плитка «под клинкер», деревянная обшивка потолков, мореная половая доска, уложенная разными по длине и ширине плашками, как в предгорных селениях.
Ощущение дома в духе шале усиливает большой дровяной камин, выложенный грубым, необработанным камнем и кухня, облицованная яркой плиткой.
Комплектация объекта
Строительство «БВМ строй»
Текстильный дизайн «Энитекс »
Изделия из дерева «Древослав »
Авторская мозаика «Александрия»
Отделочные материалы
Двери на заказ, изготовление «Древослав »
Лестница на заказ, изготовление «Древослав »
Паркет, поставщик «Паркет-Холл»
Обои Sunworthy, поставщик «Хагери»
Мозаика, поставщик BARS RED
Камень, мрамор, поставщик «Бенефит»
Плитка Idea Ceramica коллекция Dolce Vita Ceramica, поставщик «Модная плитка»
Камин, поставщик «Интерьерный салон» («Арт-тон камины»)
Свет Baga, Tredici Design , поставщик Home Studio
Сантехника, поставщик «Макслевел»
Мебель
Гостиная Cava, Baga
Спальня Halley
Детская Halley
Кабинет Assi d`Asolo
Все – поставщик Home Studio
Позитивный дом
Дом цвета сирени О профессии «ландшафтный архитектор», образовании и специфике частных и общественных ландшафтных проектов говорим с Иваном Бугаевым…





















Созидание как эволюция: офис бюро «Крупный план»
Равновесие, цельность и гармония как результат работы архитектора…
Ландшафтный архитектор. Инженер. Проектировщик. Логик.
«Мода в интерьере — это зеркало нашего быта»...
Храм в городе 
11
22
33
44
55
66
77
88
99
1010 
Хозяева этого дома – наши давние заказчики, перешедшие в категорию друзей, поэтому работа над объектом шла в атмосфере доверия и взаимопонимания. Мы знали, что они любят уют, гостеприимны и у них трое детей. Для их образа жизни больше подходил стиль кантри с итальянским уклоном. Немаловажно и то, что теплые тона и мягкие фактуры идеально соотносятся с нашим климатом, да и стареет такой интерьер красиво, благородно…