Дизайнеры Ксения Коровина и Екатерина Закурдаева из бюро Design Filosofia оформили деревянный дом, построенный по индивидуальному проекту в заповедной зоне Подмосковья.
Он предназначен для проживания для трех поколений семьи: пары с двумя дочками и родителей супруги. «Это не первый проект с данными заказчиками, и мы точно понимали, каким должен получиться интерьер – теплым, жизнерадостным и при этом по-европейски лаконичным», - отмечают авторы проекта. Работа на дизайн-проектом длилась полгода и шла параллельно с возведением основного каркаса дома, внутренняя отделка заняла еще год. В результате заказчики получили удивительно солнечный и тактильный коттедж, в котором сочетаются современная стилистика и природный уют дома из бруса.
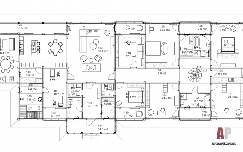
Дом имеет нестандартную архитектуру: одноэтажный объем вытянут вдоль участка, с боку к нему примыкает терраса, а панорамные окна основных жилых помещений обращены на живописный уединенный ландшафт.
Центральный элемент дома – двухуровневая стеклянная гостиная, которая служит местом для общения большой семьи и объединяет между собой остальные помещения. Среди ее особенностей – высокие потолки 5,8 метров, огромные панорамные окна с видом на поля гольф-клуба и дровяной камин. Помимо диванной группы и зоны камина общественная территория включает в себя также столовую и зону кухни с дополнительной кладовой, выход на крытую террасу с уличной кухней.
Планировка дома была создана по индивидуальному проекту для этой семьи и полностью удовлетворила их запросы. При входе организована удобная прихожая с выходом в две отдельных гардеробные и в гостевой санузел. На одной оси с входной дверью находится вход в парадные помещения, отделенный стеклянными распашными дверями. По обе стороны от гостиной расположены еще две пары дверей: одна ведет в зону релаксации (тренажерный зал, сауна, душевая), вторая – в анфиладу частных помещений. Она включает кабинет, пять спален с санузлами и постирочную. Винтовая лестница в конце коридора ведет в мансарду.
Идея интерьера – баланс между современной эстетикой и уютом деревянного дома. «Нам хотелось уйти от стилистики «шале», поэтому, сохранив внутреннюю деревянную отделку, мы наполнили помещения современной лаконичной мебелью и интересными акцентными светильниками», - отмечают дизайнеры.
Одно из основных пожеланий заказчиков - обилие натурального дерева в интерьере, поэтому палитра тонировки стен и потолков подбиралась особенно тщательно. Почти три месяца понадобились дизайнерам, чтобы найти необходимый теплый золотисто-медовый оттенок. Для полов они взяли инженерную доску на тон темнее, в санузлах использовали керамогранит с имитацией натурального камня – черный мрамор и мрамор Статуарио, оникс, яркую плитку-терраццо.
Мебель и декор подобраны так, чтобы не перегружать пространство, а создать эффект гармоничного перетекания между интерьером, ландшафтом и открытыми верандами. Главные элементы гостиной – большой светлый диван и металлический графитово-черный камина. Арт-объектом служит металлическая винтовая лестница, расположенная в конце длинного коридора с формирующая интересную видовую перспективу.
Комплектация объекта
Строительство, компания Honka
Проект архитектурного освещения, компания Krassky
Строительные и отделочные материалы и изделия
Остекление веранды, поставщик Sunflex
Изделия из дерева, двери, потолочные балки, лестница, компания Wood interiors
Финишная отделка стен, краска Argile
Инженерная доска, поставщик Finex
Керамогранит Atlas Concorde, ItalON, Imola, FAP, Ceramica Vallelunga, Sichenia, Arcana Ceramica, поставщик Zodiac
Камин Piazzetta
Свет декоративный BoConcept, Fabbian, De Castelli, MOOOI, Artemide, Aromas del Campo, Vibia, Flos, Centrsvet
Технический свет Erco, IGuzzini, Flos, Occhio, Delta Light
Текстиль, поставщики Atelier Tati, The Room
Ковры, поставщики BoConcept, Ami ковры, Zara Home
Сантехника Hansgrohe, раковины Zodiac
Мебель
Прихожая консоль The Idea, банкетка BoConcept
Гостиная кресла и столик у камина Minotti, диван DiTre Italia, комод Shake Design
Столовая обеденный стол и стулья More Moebel
Кухня кухонная мебель с островов LeCucine, камень на фартуке и острове – изготовление Синергия камня; барные стулья Vitra
Кабинет диван DiTre Italia, стеллаж Cattelan Italia, бар More Moebel, стол Bene
Главная спальня кровать и прикроватные тумбы More Moebel, кресла Delo Design, столик журнальный Porada, гардеробный шкаф Lema, комод Poliform
Спальня родителей ковать, прикроватные тумбы, комод, шкаф Dantone Home, стол рабочий Lulu Space, стул MD House
Гостевая спальня кровать, кресло BoConcept, шкаф – изготовление Стильные кухни
Детские стол рабочий, комод IKEA, кресло подвесное Кресло в дом, кресла мягкие Kreslo
Веранда обеденная зона и мягкая мебель Ethnicraft
Мебель для ванных комнат Zodiac и Ceramica Cielo
Корпусная и встроенная мебель на заказ – изготовление Wood Interiors
Оборудование
Электроустановочные изделия Jung
Квартира с видом на Новодевичий монастырь
Минималистская квартира в старом жилом фонде О профессии «ландшафтный архитектор», образовании и специфике частных и общественных ландшафтных проектов говорим с Иваном Бугаевым…

































Ландшафтный архитектор. Инженер. Проектировщик. Логик.
«Мода в интерьере — это зеркало нашего быта»...
Храм в городе
Три кита современного стиля
Проект: Аэропорт «Кавказ» 
11
22
33
44
55
66
77
88
99
1010 