Дизайнер Наталья Юнина оформила интерьер, главным действующим героем которого стал потрясающий вид из окон на купола Новодевичьего монастыря, высотку МГУ и Лужники.
Трехкомнатная квартира площадью 74 кв. м расположена в сталинском доме в Хамовниках, ее хозяйка – топ-менеджер крупной компании, человек с сильным характером, исключительным жизнелюбием и тонким чувством юмора. При выборе нового жилья ее вдохновил вид из окон на комплекс Новодевичьего монастыря, который и стал отправной точкой при разработке идеи оформления квартиры. «В этом проекте мы постарались совместить эстетику дома, построенного в середине XX века, с настроением спокойного созерцания, которое неизменно вызывают виды неба и куполов соборов. Так родился легкий, теплый и солнечный интерьер с элементами советского ретро», - рассказывает автор проекта.
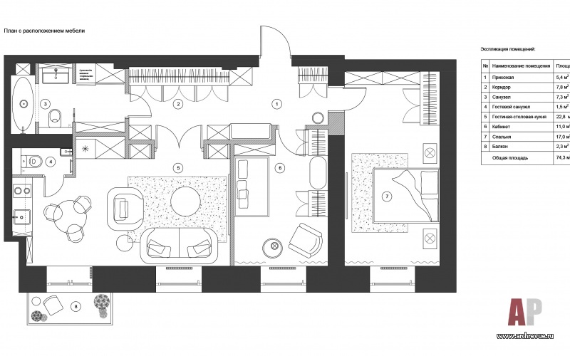
Типовая планировка сталинки не устроила заказчицу ни скромными размерами гостиной, ни кухней вытянутой формы.
После изнурительной процедуры согласования дизайнеру удалось объединить эти помещения и создать светлое пространство гостиной-столовой, в котором нашлось место любимым хозяйкой английским диванам Duresta, обеденной группе с удобными креслами, библиотеке с большой коллекцией книг и аккуратной кухней с необходимым набором оборудования.
Интересно получилось обыграть и заниженный потолок на границе гостиной и кухни-столовой. Массивный короб скрывает бетонную балку, а также воздуховоды системы вентиляции и кондиционирования, но выглядит на редкость уместно за счет остроумного дизайнерского решения – подвесного столика из латуни.
Одним из источников вдохновения в создании интерьера стал великолепный английский диван Duresta, о котором заказчица давно мечтала.
Его округлые формы дизайнер подчеркнула с помощью огромных деревянных «карнизов», направляющих взгляд от входа в гостиную к дивану и далее к окну с видом на Новодевичий монастырь. «Окна - еще один вектор развития в этом интерьере», - отмечает автор проекта. Чтобы достойно подать вид из окна, пришлось потрудиться. Специально для проекта производители разработали стеклопакеты определенной формы: без импостов, с цельным стеклянным полотном и деревянной рамой, подходящей по тону стеновым панелям из ясеня. Такая конструкция позволила воспринимать окна как постоянно меняющиеся живые картины в деревянных рамах, и сделать восхитительные виды частью интерьера.
Пастельную солнечную гамму усложняет ритм декоративной раскладки дверей и стеновых панелей. «Мы использовали тонированный ясень. Это мой любимый материал, который, в отличие от того же дуба, обладает более деликатным природным оттенком и всегда выглядит благородно», - отмечает дизайнер. В спальне стены декорированы плотными тканями с геометрическим рисунком, что создает ощущение невероятного уюта. Диван в кабинете выполнен на заказ, его формы напоминают популярные в середине ХХ века диваны с высокой спинкой и валиками вместо подлокотников. Метлахская плитка в ванной комнате, как и светильники-шары в прихожей отсылают к интерьерам советских НИИ и общественных мест. Но настоящий сюрпризом для всех стала гипсовая скульптура «Девушка с веслом», которая появилась на финальном этапе ремонта и стала олицетворением ретро- эстетики. «Ее придумала стилист Юлия Чеботарь, которая смотрела квартиру за несколько месяцев до съемки. Заказчица с жаром подхватила идею и договорилась о реализации с талантливыми московскими мастерами», - резюмирует автор проекта.
Комплектация объекта
Строительные и отделочные материалы и изделия
Изделия из дерева, стеновые панели, компания Мастерская Дмитрия Оленичева
Межкомнатные двери, компания Артес
Окна, поставщик Holzen
Финишная отделка стен, Paint & Paper Library
Ткани на стенах в спальне и кабинете, поставщик Decostep
Инженерная доска, поставщик Finex
Плитка TopCer, поставщик Грета Вульф
Состаренные зеркала, поставщик Стекло24
Свет Axo Light, That's Living; поставщик Delight Collection
Ковры, поставщик Ami ковры
Гипсовая скульптура «Девушка с веслом», изготовление Феникс-Групп
Сантехника и смесители Villeroy & Boch
Мебель
Прихожая приставной столик в прихожей That's Living (модель Round Iconic)
Гостиная диван и кресло Duresta, стол Delight Collection, стулья Cattelan Italia (модель Rhonda Castoro), подвесной столик из латуни – изготовление Металлические системы
Мягкая мебель в спальне, прихожей, кабинете, на заказ – изготовление LoveMyBed
Встроенная мебель на заказ, кухня, по эскизам дизайнера – изготовление Мастерская Дмитрия Оленичева
Эклектичная квартира в историческом доме конца XIX века
Дом для трех поколений семьи О профессии «ландшафтный архитектор», образовании и специфике частных и общественных ландшафтных проектов говорим с Иваном Бугаевым…



























Ландшафтный архитектор. Инженер. Проектировщик. Логик.
«Мода в интерьере — это зеркало нашего быта»...
Храм в городе
Три кита современного стиля
Проект: Аэропорт «Кавказ» 
11
22
33
44
55
66
77
88
99
1010 
«Это современный интерьер с ностальгией по наследию советской эпохи: легкий, с пастельной солнечной гаммой в сочетании с «облачно-белым» и цветом серой гальки. Желтый – цвет коварный, часто он смотрится как в детском саду и простит интерьер. Наш желтый совсем другой! Ключом к оттенку стала фирменная упаковка бренда Jo Malone, где прекрасный и элегантный желтый акцентирован черной графикой».