Архитекторы Дмитрий и Дарья Колосковы из бюро KODD оформили квартиру в историческом фонде, сделав ее не просто современной средой обитания, а основой для жизни, где встречаются прошлое и настоящее.
«Мы стремимся создавать интерьеры, которые смогут выдержать испытание временем. В основе такого вневременного подхода – слаженность объемов, естественные материалы и цвета и внутренняя гармония всех составляющих дизайна», - рассказывают архитекторы. Этот принцип лег в основу проектирования минималистской квартиры, которая расположена в доходном доме, построенном в начале ХХ века на Арбате.
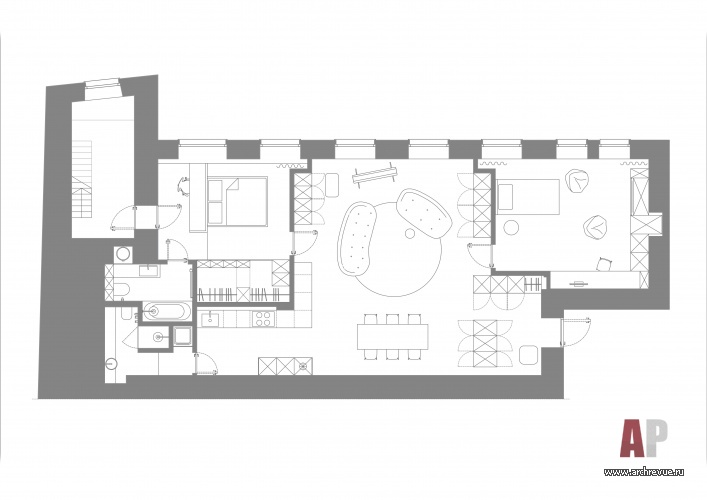
Предыдущие владельцы полностью перестроили квартиру, уничтожив весь исторический декор. Архитекторы демонтировали надстроенные перегородки и раскрыли объем с анфиладными окнами. Новую планировку они разработали с учетом расположения узлов коммуникаций, существующих несущих элементов и современных требований к эргономике.
Смысловое и функциональное ядро квартиры – общая гостиная, объединенная с холлом и кухней-столовой. Из нее организованы проходы в остальные помещения: детскую и мастер-блок, включающий спальню, гардеробную и ванную.
Зонирование гостиной осуществляется с помощью встроенных шкафов, которые обыгрываются как элементы объемного решения, крупной и лаконичной корпусной мебели, а также модульных диванов.
Как единый объем решена хозяйская спальня. Зона кровати, рабочая зона и ванная комната объединены подиумом. Дверь-невидимка за рабочим столом скрывает секретное помещение, которое исторически служило черным ходом, а сейчас превратилось в двухэтажное пространство с современным функционалом. Здесь находится дополнительный домашний офис, лестница со встроенной системой хранения и тренажерный зал на втором уровне.
Проект демонстрирует архитектурный подход в оформлении пространства. Все элементы интерьера функциональны, что придает ему современное звучание и практичность.
Основная идея – выразительная геометрия простых форм, отсутствие излишеств и чистота восприятия – реализована с помощью натуральных материалов и мягкой, естественной палитры. Обилие природных деревянных фактур отсылает к скандинавской стилистике и историческому прошлому здания, а тактильный текстиль делает интерьер теплым и обитаемым.
Комплектация объекта
Строительные и отделочные материалы и изделия
Двери, поставщик Union
Финишная отделка стен, краска Little Greene
Микроцемент в санузлах, поставщик GoldShell
Инженерная доска, поставщик Finex
Керамогранит, поставщик Arch-Skin
Свет декоративный &Tradition, Muuto, Audo Copenhagen
Свет технический, поставщик Centrsvet
Аксессуары Audo Copenhagen, Normann Copenhagen, Vitra, Woud, Ferm Living
Сантехника Villeroy & Boch, Globo; смесители Omnires
Мебель
Прихожая пуф Ligne Roset
Гостиная диваны, оттоманка, приставной черный столик Ligne Roset, столик &Tradition
Столовая обеденные стулья Muuto
Спальня кровать, на заказ по чертежам дизайнеров – изготовление Woodfans; стул Fritz Hansen
Детская приставной столик Normann Copenhagen, стулья Muuto
Поставка мебели и света L’Appartement
Дом для трех поколений семьи
Светлая квартира для студентов О профессии «ландшафтный архитектор», образовании и специфике частных и общественных ландшафтных проектов говорим с Иваном Бугаевым…
































Равновесие, цельность и гармония как результат работы архитектора…
Ландшафтный архитектор. Инженер. Проектировщик. Логик.
«Мода в интерьере — это зеркало нашего быта»...
Храм в городе
Три кита современного стиля 
11
22
33
44
55
66
77
88
99
1010 