Бюро Le Atelier реализовало экспериментальный проект, дом как тотальное произведение искусства. Его радикальные интерьеры – ответ на нетривиальный запрос заказчицы, которая увидела в предыдущих проектах архитекторов проектах арт-направленность и поставила задачу создать piece of art, современное пространство тишины. Ради этого она и приобрела готовый трехэтажный дом площадью 420 кв. м на Рублево-Успенском шоссе.
Его пол, стены, потолок – все из бетона, в бетонную коробку вставлены выразительные деревянные окна, из которых открывается вид на дикий сад. «Этот совершенный в своей лаконичности образ вдохновил нас ничего не менять, оставить все как есть», - рассказывают архитекторы бюро.
Над проектом работали: Сергей Колчин, Анна Овчинникова, Марья Бахрамеева, Надежда Торшина, Наталья Сенюгина, Глеб Куликовский, Никита Лесников.
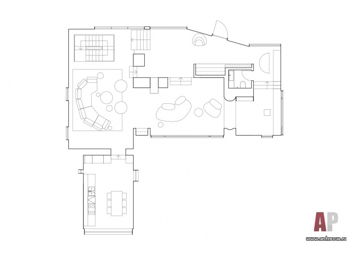
Пространство дома организовано на трех уровнях: одном подземном и двух надземных. Внизу находится развлекательная зона с кинозалом, массажной комнатой и зоной отдыха. Первый этаж занимают парадные общественные пространства со сквозной планировкой и природными видами за панорамными окнами.
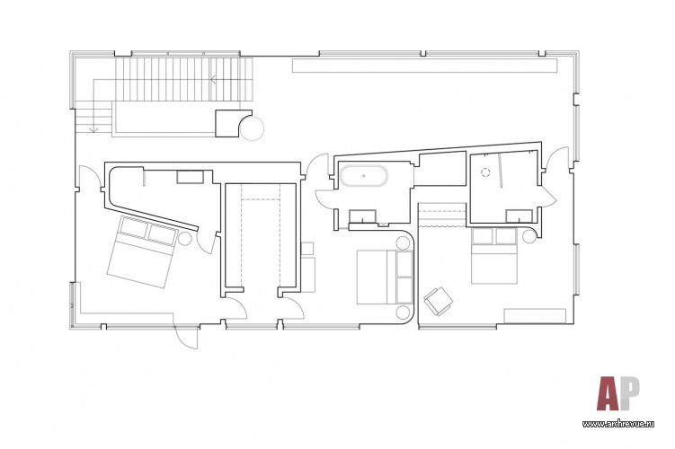
Верхний уровень – приватная территория с общей галереей и тремя спальнями, каждая со своей ванной комнатой. Все они имеют нестандартную конфигурацию и текучие, округлые формы. Уровни соединяет авангардная лестница, одновременно и гигантская скульптура, и сложная инженерная конструкция. Она висит на перекрытии и едва касается пола. К объему дома примыкают открытые террасы, они полностью стирают рань между интерьером и экстерьером.
Полностью бетонный дом с деревянными окнами, природными формами и арт-объектами – такова основная идея проекта. «Нам было важно сохранить ощущение пустоты, недоделанности, незаконченности», - рассказывают архитекторы. Хотя в доме был проведен серьезный ремонт: качество исходного бетона не соответствовало, его заменили современные штукатурки и микроцемент со сходной фактурой; в объем была внедрена инновационная инженерия, притом так филигранно, что сами устройства не видны глазу.
Особая гордость – скульптурная лестница, напоминающая крыло самолета. С ней рифмуется зигзагообразный камин из листового черного металла, зубчатое бетонное подстолье рабочего стола. В интерьере вообще много простых геометрических форм и абстракций. Волнообразные изгибы бетонной стены на нижнем уровне, слуховые окна и вентиляционные отверстия, керамическая плитка «с затяжками», разработанная архитекторами специально под проект, природных форм мебель… Каждая зона выглядит как инсталляция в музее современного искусства, цельная и самодостаточная.
Комплектация объекта
Строительство, лестница, компания SK Elite
Строительные и отделочные материалы и изделия
Пол, микроцемент, декоративные штукатурки, поставщик «Стенология»
Свет декоративный Olga Engel Design, Marset, Fabbian, Davide Groppi, Flos
Технический свет Xal
Декор, поставщик Mad et Len
Искусство, Galerie Armel Soyer, «Галерея Марины Гисич»
Ковры, поставщик The Rug Company
Сантехника Cisal, Gessi
Мебель
Прихожая кресло Edra, столик Mogg
Гостиная столики, табуреты Mogg, диваны, столик-скамья Olga Engel Design, диван Edra
Кухня Valcucine
Столовая стол Moroso, стулья Edra
Спальня кровать Mogg, кресло Edra
Кинозал диваны Desalto, столики FontanaArte
Холл мебель Kar Studio
Деревянный дом с террасой и открытой жаровней
Эпатажная квартира московских дизайнеров Поиски нового офиса привели владельцев архитектурного бюро «Крупный план» к неожиданному, но очень значимому шагу – приобретению особняка - объекта культурного наследия XIX века...













































Созидание как эволюция: офис бюро «Крупный план»
Равновесие, цельность и гармония как результат работы архитектора…
Ландшафтный архитектор. Инженер. Проектировщик. Логик.
«Мода в интерьере — это зеркало нашего быта»...
Храм в городе 
11
22
33
44
55
66
77
88
99
1010 