Заказчик SE design buro (дизайнеры Снежана Цуцаева и Евгения Дубровская) приобрел эту квартиру едва ли не только ради одного лишь вида на дом-мастерскую Константина Мельникова. И для него, и для дизайнеров она стала чистым экспериментом, вдохновленным знаменитым памятником архитектуры.
Квартира площадью 70 кв. м расположена в одном из корпусов клубного дома Artisan. Молодому человеку она понравилась своей локацией (тихие Арбатские переулки), размером и видом из окна спальни на шедевр конструктивизма. Именно памятник архитектуры 1920-х и вдохновил дизайнеров на проект: с чистой архитектурной формой, геометрическими объемами, тотальным белым цветом, контрастирующим со строгой и ритмичной отделкой дверей, оконных рам, бара. В итоге получился интерьер вне времени: эргономичный, с элементами сканди и ретро и эстетикой русского авангарда.
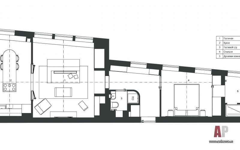
Квартира имеет форму неправильной трапеции, сильно вытянутой по фасаду. Такой исходник, да еще и небольшой площади увеличивает риск получить интерьер замкнутый и тесный. План от застройщика заказчику совсем не подошел, и дизайнеры разработали проект в традициях классической школы, с центральной анфиладой, которая объединяет все помещения: от гостиной до санузла в спальне.
Осевое построение позволило максимально раскрыть пространство, впустить воздух, свет (плюсом стало большое количество окон, пусть и по одной стене) и создать идеальное жилье для активной жизни в центре города.
От входа квартира делится на 2 части: правая часть – приватная с одной спальней и просторной ванной комнатой, левая часть – парадная с гостиной и кухней-столовой.
Прихожая в квартире небольшая, изогнутая стена мягко приглашает пройти вправо в парадные помещения, незаметно минуя гостевой санузел. Гостиную и кухню разделяет широкий портал винного цвета. Он задает тон парадности пространства, а двери, оформленные со стеклом, добавляют простора и только условно отделяют кухню от гостиной.
Портал из прихожей в гостиную был совсем невысокий и увеличить его не было возможности, так как стена несущая. Тут авторы проекта использовали архитектурный прием, который «добавил высоты»: выстроили систему хранения в цвет стен по обеим сторонам портала, обрамив ею низкий проем.
Декоративное наполнение квартиры – реверанс в сторону архитектуры дома-мастерской Константина Мельникова и принципов проектирования жилых пространств русскими архитекторами-конструктивистами 1920-х годов. Чистые линии, простые формы, белый монохром, обилие встроенных элементов и минимум мебели с максимумом функционала
лежат в основе дизайна квартиры.
Кухня с островом, лаконичный двусторонний диван, функциональные низкие подоконники, кухня и остров сделаны специально под проект. «Наша гордость и любовь — это шкаф-бар с фасадами из массива дуба с мелким ритмом квадратов, внутри выкрашенный в нежно-лимонный цвет. Дверки складываются по принципу раскладушки, можно открыть отдельно верхние или нижние створки. И в этом тоже есть смысл – так как кухня небольшая, даже при большом застолье, баром пользоваться удобно», - отмечают авторы проекта.
Все предметы в интерьере оптимальны для маленьких квартир: имеют несколько функций, компактные размеры, обтекаемые формы (например, раковины), чтобы не задевать при движении. Важную роль здесь имеют детали – винтажные люстры, предметный декор в стилистике авангарда. И даже отделка оконных откосов керамической плиткой в мелкий квадрат не спроста: она перекликается с ритмом окон Дома Мельникова.
Комплектация объекта
Строительные и отделочные материалы и изделия
Изделия из дерева, двери, компания MV Production
Финишная отделка стен, краска Tikkurila
Инженерная доска, поставщик «Хороший пол»
Керамогранит CE.SI
Свет декоративный &Tradition, Louis Poulsen, Nemo, Michael Anastassiades, Danish Design, Pholc; винтаж
Свет встроенный StellaNova
Керамика WoodzenArt, Manner & Matter, Atelier Leto, Sand Vintage
Сантехника Tece, Blanco, полотенцесушитель Margaroli
Мебель
Прихожая пуф и зеркало на заказ, по эскизам дизайнеров
Гостиная стул Vitra, кресло Porro, столик Woud (коллекция Sentrum); ТВ-тумба, диван, журнальный столик, на заказ, по эскизам дизайнеров
Кухня-столовая барные стулья Fritz Hansen, барный табурет Magis, кухня и бар из массива дуба, на заказ, по эскизам дизайнеров
Спальня кровать, шпон дуба, на заказ, по эскизам дизайнеров; встроенные шкафы, на заказ, по эскизам дизайнера
Мебель для санузлов на заказ, по эскизам дизайнера, тумба и раковина из искусственного камня на заказ, по эскизам дизайнера
Встроенная и корпусная мебель из дерева, изделия из искусственного камня на заказ – изготовление MV Production
Мягкая мебель на заказ – изготовление Tseh Group
Оборудование
Оборудование кухни, встроенная техника Miele
Современное шале с брутальным декором
Двухэтажный пентхаус в современном стиле О профессии «ландшафтный архитектор», образовании и специфике частных и общественных ландшафтных проектов говорим с Иваном Бугаевым…




























Ландшафтный архитектор. Инженер. Проектировщик. Логик.
«Мода в интерьере — это зеркало нашего быта»...
Храм в городе
Три кита современного стиля
Проект: Аэропорт «Кавказ» 
11
22
33
44
55
66
77
88
99
1010 