Дизайнер Елена Маркина оформила дом в Сочив, наполнив его теплотой южного солнца и яркими красками лета. Заказчики – семейная пара средних лет – коренные москвичи, заядлые путешественники, очень позитивные и открытые миру люди – решили переехать жить в Сочи, построить дом с нуля, чтоб наслаждаться неспешной жизнью на Черноморском берегу. Они мечтали о жизнерадостном интерьере, где приятно принимать гостей и самим жить со вкусом.
Проект дома у них был готов, дизайнер подключилась на этапе завершения монолита. Внешних стен и перегородок не было, поэтому ей пришлось поработать не только над интерьером, но и над фасадом здания, удалось спроектировать роскошные панорамные окна и грамотно организовать внутреннее пространство. «Строительство велось без спешки, с удовольствием. Работами занимались местные компании, которых в процессе пришлось сменить и не раз…
На территории участка мы изначально построили и отделали гостевой дом, куда и переехала семья, так что времени у нас было достаточно, чтобы сделать все правильно. Позднее мы разработали также план ландшафта: так как участок находится на возвышении и имеет очень сильный уклон, мы спланировали многоуровневые террасы с подпорными стенками, на которых расположили разные зоны, благодаря чему участок площадью 15 соток стал выглядеть гораздо больше своих реальных размеров. Здесь есть и японский садик, и лесная зона, и сад, и мини-огород. Самым первым деревом, которое здесь посадили, стала олива, которой более 100 лет», - рассказывает дизайнер.
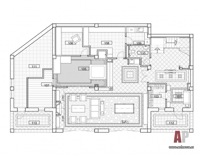
Дом находится на живописной возвышенности, рядом с заповедником. Из его окон открывается замечательный вид на уникальные природные пейзажи, при этом внутренняя жизнь дома скрыта от глаз. Здание площадью 720 кв. м включает четыре этажа. На первых двух этажах дизайнер разместила общественные помещения: внизу расположилась неформальная гостиная, зона отдыха с двумя большими панорамными окнами с раздвижными дверями и выходом к открытому бассейну.
При открытых дверях интерьер объединяется с уличным пространством. Здесь есть и мини-кухня, и большой обеденный стол, и диванная группа с камином. Рядом находится банный комплекс с джакузи. Мебель в диванной зоне специально выбиралась из коллекции outdoor, чтобы ее можно было при желании выносить к бассейну.
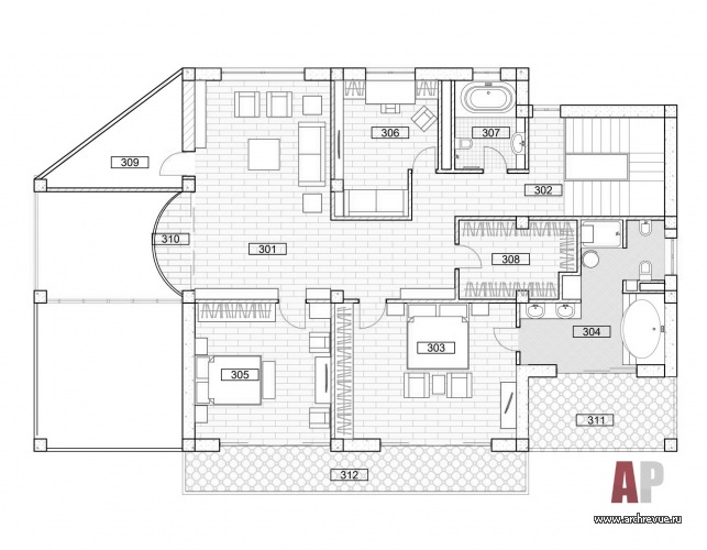
Второй этаж занимают парадные помещения – гостиная, небольшая столовая, кухня с островом. Из гостиной через раздвижные двери можно попасть в сад орхидей (увлечение хозяйки) и на просторную террасу. Также из общих помещений есть выход в зону патио с беседкой для барбекю, которая оформлена, как европейская улочка. Здесь же находится хозяйский кабинет, который может служить гостевой спальней.
Приватная зона с основными спальнями расположена на третьем этаже. Главная хозяйская спальня с большой гардеробной и просторным санузлом, спальня дочери и гостевая комната объединены холлом-библиотекой. Из спален и хозяйского санузла есть выходы на собственные террасы. Четвертый, мансардный, этаж – единое пространство для отдыха и досуга с небольшой гостевой спальней.
Интерьер дома – яркий микс из элементов современной классики, традиционного американского стиля, европейского ар-деко и колониального интерьера. Его отличительная особенность – необычная, яркая цветовая палитра. Дом изначально был задуман ярким и жизнерадостным. Каждая комната имеет свой цвет стен: холлы и лестница сделаны более нейтральными, комнаты, напротив, максимально яркими и насыщенными, со своим настроением.
Оттенки шафрана и бирюзы в зоне отдыха, глубокий сине-зеленый и оливково-охристый в гостиной, сложный сизо-голубой с винными акцентами в виде бытовой техники на кухне, пыльно- бирюзовый с пудровым нотами в спальне, глубокий синий с теплой охрой в спальне дочери… Все цвета прекрасно гармонируют друг с другом, а интерьер воспринимается цельным и радостным.
Центральными акцентами служат камины с открытыми топками: портал камина на первом этаже имитирует старинный, он выполнен в духе интерьеров старого шато, портал на втором изготовлен из мрамора и листовой меди и отсылает к эстетике ар-деко. В интерьере ее поддерживают парные комоды-бары на высоких ножках. Они изготовлены по чертежам дизайнера из шпона «птичий глаз», затонированного в сине-бирюзовый цвет.
Вообще в этом интерьере очень много нестандартной авторский мебели, с ней сочетаются винтажные предметы и искусство, созданное специально для этого дома. Например, панно «Журавли» в комнате отдыха, панно из 9 картин в прихожей, роспись в санузле, авторская керамика – все они делают это необычное, эклектичное пространство очень индивидуальным и живым.
Комплектация объекта
Строительные и отделочные материалы и изделия
Финишная отделка стен, краска, Benjamin Moore
Лепной декор, поставщики «Европласт» и Orac Decor
Паркетная доска, Kahrs
Плитка Tagina
Панели из искусственного камня, компания «Амазони»
Дверная и мебельная фурнитура, компания «Планета ручек»
Свет Feiss, Any Home, Visual Comfort & Co; винтаж, поставщик VivaVintage
Текстильный дизайн, «Студия Аллы Зайцевой»
Ковры, поставщик «Бутик Ковров»
Сантехника Villeroy & Boch, Nicolazzi
Мебель
Прихожая банкетка Rooma Design & Furniture
Гостиная буфеты, на заказ, по индивидуальному проекту; столики Any Home, комод Rooma Design & Furniture, диваны Roy Bosh, шкаф, металлические стеллажи по индивидуальному проекту – изготовление Wooden Kors
Столовая стол Cazarina Interiors, стулья Rooma Design & Furniture
Кухня кухонная мебель Arva
Лестничный холл кресла и столик, винтаж
Спальня кровать Roy Bosh, тумбочки, консоль, пуф, кресло Rooma Design & Furniture; шкаф по индивидуальному проекту
Спальня дочери столики That's Living
Зона СПА столики, поставщик VivaVintage
Мебель для ванных комнат, на заказ, по индивидуальному проекту
Кабинет, на заказ
Корпусная и встроенная мебель из дерева на заказ – изготовление «Не просто мебель»
Поставка винтажной мебели – Repeat story
Оборудование
Радиаторы Arbonia
Электроустановочные изделия Merten
Оборудование кухни встроенная техника Ilive, Liebherr, Smeg; мелкая бытовая техника KitchenAid
Современная квартира с панорамным видом на Сити
Панорамная квартира с актуальным дизайном Поиски нового офиса привели владельцев архитектурного бюро «Крупный план» к неожиданному, но очень значимому шагу – приобретению особняка - объекта культурного наследия XIX века...

































Созидание как эволюция: офис бюро «Крупный план»
Равновесие, цельность и гармония как результат работы архитектора…
Ландшафтный архитектор. Инженер. Проектировщик. Логик.
«Мода в интерьере — это зеркало нашего быта»...
Храм в городе 
11
22
33
44
55
66
77
88
99
1010 
«За время строительства мы поменяли 3 бригады подрядчиков. Как оказалось, в этом регионе не так легко найти хороших строителей, но, тем не менее, мы добились нужного качества. Для утверждения все цветов стен и отделок необходимо было прилетать из Москвы, чтобы посмотреть на выбранные оттенки именно в тех помещениях, для которых они предназначались, так как яркое южное солнце часто корректировало цвета. Иногда и заказчица прилетала на встречи в Москву для подбора каких-то предметов. Многие вопросы удавалось решать дистанционно, поэтому в целом расстояния не были помехой в работе».