Архитектор Рустэм Уразметов, руководитель UR Bureau, любит экспериментировать с цветом и формой и создавать минималистские интерьеры на стыке прагматичности и искусства. Обычно он использует один цвет, но при работе над проектом квартиры в ЖК «Небо» пошел дальше и создал многоцветный яркий градиент. Квартира разработана для молодой семьи с двумя детьми. Она расположена на 40 этаже и большими окнами обращена на город.
Это преимущество было подчеркнуто в дизайне: почти все окна задействованы как видовые точки, а фон сделан максимально нейтральным. Белое пространство пронзает цветовой градиент, который превращает функциональную московскую квартиру в пространство компьютерной игры, футуристическую киберреальность.
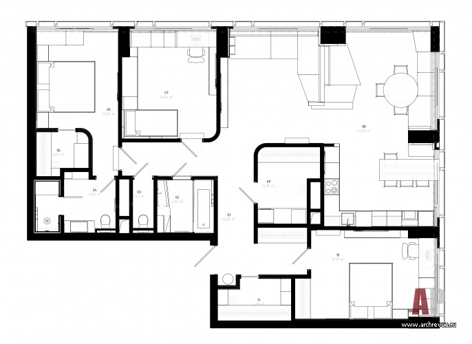
Изначально квартира площадью 133 кв. м представляла собой единое пространство с практически свободной планировкой. Ее однозначные преимущества – угловое расположение и семь высоких окон, выходящих на две стороны дома. Это давала много возможностей для грамотного планирования. Архитекторы долго разрабатывали варианты организации пространства, пока не нашли идеально подходящий потребностям заказчиков.
Центром квартиры стала яркая зона кухни-гостиной со столовой группой, куда можно попасть через небольшой коридор из прихожей. Компактные ниши, спроектированные для систем хранения, усложнили геометрию холла и позволили немного увеличить метраж ванной комнаты.
Центральное место в гостиной занимает большой диван сложной формы, он ориентирован на две стороны: зону ТВ и обеденную группу. Диван связал пространство, придал ему интересную динамичную форму и позволил смоделировать различные жизненные сценарии. В кухонной части находится большой барный остров с тремя барными стульями и мягкими встроенными диванами.
К общей гостиной с одной стороны примыкает мастер-блок (со спальней родителей, гардеробной и санузлом) и одна из детских, с другой – вторая детская. В буферной зоне, в скругленном объеме размещена постирочная, при входе спроектирована большая гардеробная для верхней одежды, три санузла выстроены в единую линию.
Интерьер квартиры выполнен в современном лаконичном стиле, его яркая доминанта – цветовой градиент: непрерывная линия зеленых, бирюзовых, синих и фиолетовых оттенков. Звонкие, неоновые цвета плавным потоком вливаются в помещения и объединяют их. Растяжка по цвету присутствует в оформлении мягкой мебели, фасадах встроенных шкафов и кухонного гарнитура, композитных стеновых панелях и декоративной окраске стен.
Она усложняет объем, дает глубину. «Композитные панели мы использовали в помещениях с повышенной влажностью и в отделке экранов радиаторов. Фасады корпусной мебели выполнили из МДФ с ультрафиолетовой печатью и лаком. Изначально мы планировали использовать панели на всех стенах, где есть градиент, но в процессе реализации решили в жилых помещениях нанести градиент художественной краской, а графичный рисунок – роботизированной печатью», - рассказывает автор проекта.
Активный цветовой рисунок поддерживает геометрия пространства: обтекаемых форм мебель, скругленные стены, плавные линии потолков и декор наливных полов. Геометрический паттерн отсылает к работам художников-супрематистов, в частности к знаменитой тройке К. Малевича «круг-квадрат-крест».
Комплектация объекта
Строительные и отделочные материалы и изделия
Двери, поставщик Union
Финишная отделка стен, краска, Benjamin Moore
Композитные панели, Grossbond
Керамогранит, поставщики Kerama Marazzi и Arch-Skin
Свет, поставщик Centrsvet
Светодиодное освещение, поставщик Arlight
Рулонные шторы с электроприводом, поставщик Amigo Group
Сантехника Duravit, смесители Paffoni, инсталляции Geberit, сантехнические аксессуары Wasserkraft
Мебель
Столовая обеденный стол BoConcept; стулья, поставщик BD Barcelona Design
Мягкая мебель, мягкие стеновые панели, поставщик Jamni
Изделия из металла, угловое зеркало, полки, компания Motoff Welds
Оборудование
Электроустановочные изделия Schneider electric
Оборудование кухни Neff
Элегантная квартира на Остоженке
Квартира в стиле интерьеров Манхеттена О профессии «ландшафтный архитектор», образовании и специфике частных и общественных ландшафтных проектов говорим с Иваном Бугаевым…


























Ландшафтный архитектор. Инженер. Проектировщик. Логик.
«Мода в интерьере — это зеркало нашего быта»...
Храм в городе
Три кита современного стиля
Проект: Аэропорт «Кавказ» 
11
22
33
44
55
66
77
88
99
1010 