Закрыть галерею
Изображение 24 из 24

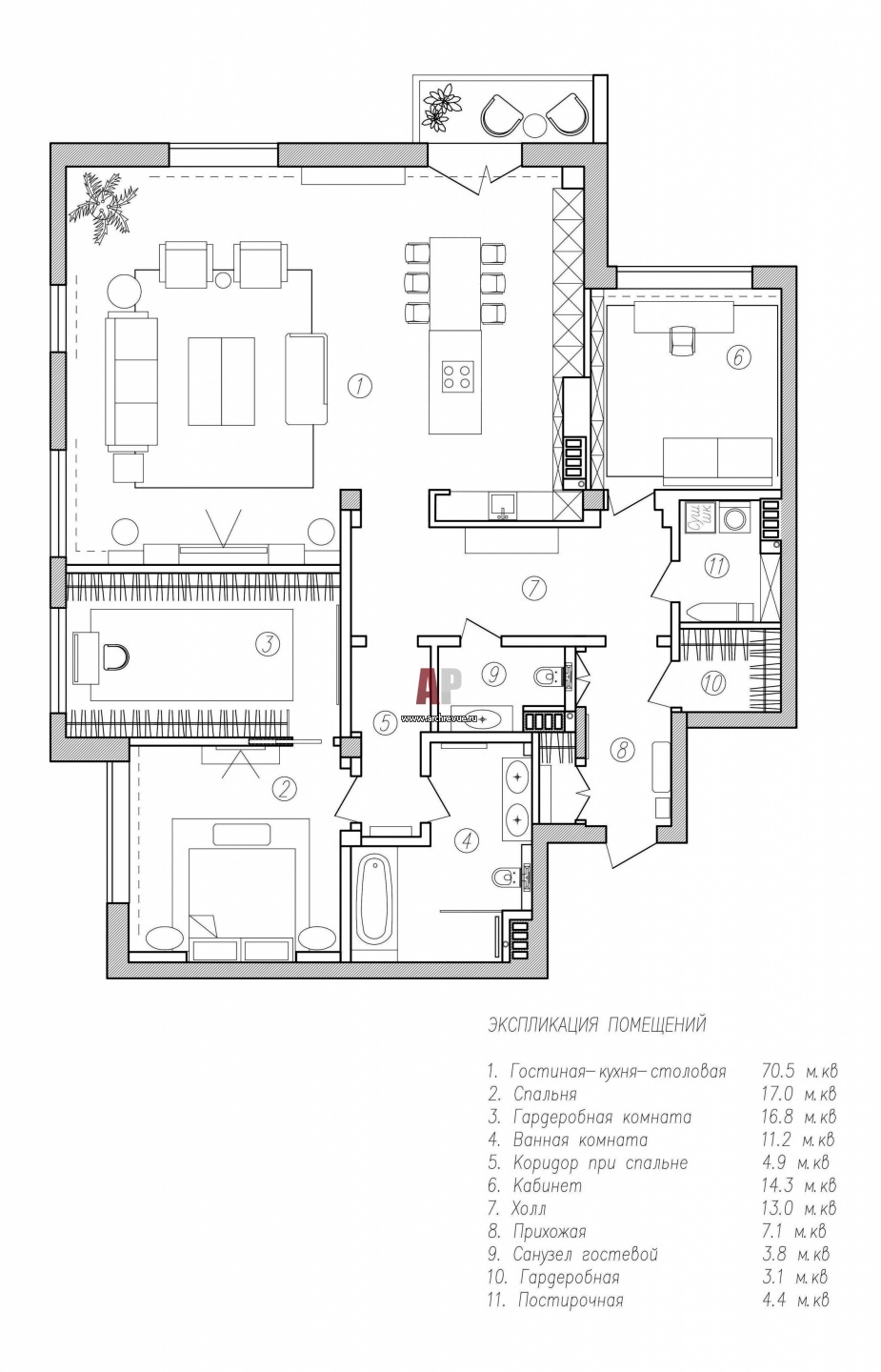
План трехкомнатной квартиры в новом жилом комплексе с видом на Смольный собор в Санкт-Петербурге. Общая площадь – 180 кв. м

Планировка 3-х комнатной видовой квартиры в центре Санкт-Петербурга. 

Проект: Комфортная трехкомнатная квартира в стиле timeless interior
Автор проекта: Першукова Анна, Гришанова Анна
Соавтор(ы): Наталья Елисеева
Объект: Квартира с видом на Смольный собор в Санкт-Петербурге
Общая площадь: 180 кв.м.