Для семьи с двумя детьми дизайнер Оксана Сальберг-Вачнадзе оформила квартиру площадью 350 кв. м, расположенную в реконструированном фабричном дореволюционном здании на Якиманской набережной. У заказчиков было развернутое техническое задание и четкое понимание стилистики интерьера: современное монохромное пространство с яркими акцентами и активными фактурами. Застройщиком был предусмотрен настоящий дровяной камин, который следовало сделать украшением парадной зоны.
Площадь квартиры позволяла подойти к проектированию городской квартиры как к загородному жилью и помимо общих и приватных помещений организовать зимний сад, тренажерный зал, пять санузлов, две гардеробные комнаты, сделать в спальнях комфортные рабочие места. В итоге получилась удобная для семейного проживания квартира с дизайном в духе элегантного минимализма.
«Этап проектирования мы закончили до пандемии, но начало стройки пришлось как раз на длинный прошлогодний локдаун. И, хотя до начала работ, мы не подозревали, что скоро дом станет спасительный якорем для всех, мы решили его сделать максимально комфортным и функциональным. И не прогадали», - отмечает автор проекта.
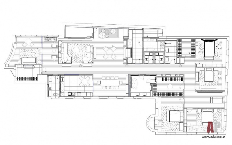
Дизайнеру досталось открытое вытянутое пространство с окнами по одной длинной стороне и в торцах, с радиусной стеной общего лестничного холла, полукруглым эркером и рядом тонких конструктивных колонн по центру. Квартира была довольно темной, следовало сделать логичное зонирование, объединить общие помещения и уйти от коридорной системы.
«С планировки и началось наше знакомство с заказчиками, - вспоминает автор проекта. – Мы участвовали в тендере на проектирование, и наш вариант был выбран безоговорочно. Заказчикам очень понравилась логика нашей планировки (разделение на общую и приватную части), а также то, что мы предложили сделать гостевой санузел у входа, да еще и с окном! Другие дизайнеры почему-то проигнорировали такое очевидное решение. На месте темной нише в гостиной мы предложили организовать зимний сад с зеркальной стеной, что заказчики восприняли с огромным энтузиазмом. И, конечно, как и мечтал глава семьи, разместили мужскую спальню в помещении с видом на Москву-реку и памятник Петру I. Специально увеличили глубину подоконника, чтобы можно было на нем сидеть и любоваться видами». Чтобы замаскировать радиусную стену в библиотеке, дизайнер придумала интересный стеллаж, который повторяет ее форму, а, чтобы отделить гостиную, - систему стеклянных перегородок.
«Заказчики лишь попросили нанести на прозрачные полотна рисунок (тонкие линии), чтобы в темноте передвигаться по квартире было безопасно», - отмечает дизайнер.
Согласно проекту, в квартире создана большая гостиная-столовая-кухня, библиотека с функцией гостевой комнаты, две спальни для взрослых, две детские спальни, четыре санузла, холл с большим зеркалом и балетным станком, большие гардеробные и хозблок. Полностью уйти от коридора не удалось, но авторы проекта постарались сделать его максимально широким, включить в состав гостиной.
Заказчики хотели интерьер в спокойных, серых тонах, но с яркими акцентами, природными материалами и активной геометрией. Большое пространство было решено объединить с помощью пола: был выбран максимально широкий формат доски (260 мм), который задал правильный масштаб. А общую зону выделить белыми стеновыми панелями с серым рустом. «Мы хотели уйти от холодного и жесткого минимализма 2000-х годов, но в то же время не перегрузить интерьер.
Хотя пространство большое и можно было применить много «фишек», но важно было использовать лаконичные, крупные решения. Мы сделали ставку на натуральный камень с красивой, живой текстурой», - рассказывает Оксана Сальберг-Вачнадзе. Так, камин облицован гранитом «Аляска», притом над порталом удалось смонтировать целую плиту, без швов весом более 300 кг. Сам портал сделан на заказ из латуни и патинирован вручную. Акцентом прихожей и мастер-ванной стали слэбы мрамора. Из-за пандемии поиск мрамора Calacatta Macchia Vecchia для декора санузла занял достаточно много времени, но в результате был найден тот самый, необыкновенной красоты слэб.
Сочетание разных материалов (натуральный камень, дерево, керамогранит) в сходных серо-бежевых оттенках формирует облик всех помещений. И лишь в детских спальнях строгость монохрома разбавляют розовые и оливково-зеленые цвета. Реализовать сложный авторский интерьер позволили эксклюзивные столярные изделия, встроенная и корпусная мебель, разработанные под проект и изготовленные на российских производствах.
Комплектация объекта
Строительные и отделочные материалы и изделия
Изделия из дерева, компания «АФ Ника»
Изделия из стекла, компания «Борус»
Изделия из натурального камня, компания Stoneroom
Текстильный дизайн, мягкие стеновые панели, шторы, компания «Форма Т»
Финишная отделка стен, краска Benjamin Moore
Инженерная доска, поставщик Finex
Натуральный камень мрамор Calacatta Macchia Vecchia, Calacatta Borghini, гранит
Плитка 41zero42
Свет декоративный Oluce, Vibia, Baker, Cameron Design
Свет технический Leds C4, поставщик Light&Design
Ковры, поставщики Dovlet House, Kover Store
Постельное белье, покрывала, декоративные подушки, поставщик Atelier Tati
Декор керамика Haj.x.Gan, вазы Ligne Roset, поставщик GK Concept; скульптура Yellow Line
Сантехника Duravit, ванна Antonio Lupi, смесители Fantini, поставщик Konzept
Мебель
Холл консоль Meridiani, пуф Cattelan Italia, встроенный шкаф, на заказ – изготовление «АФ Ника»
Гостиная диванная группа Minotti, столики Baxter, консоль Meridiani, стеллаж Cattelan Italia, кресла Flexform; подвесная тумба, стол, на заказ – изготовление «АФ Ника»
Библиотека стулья Meridiani, стол Poliform, диван DiTre Italia; стеллаж, на заказ – изготовление «АФ Ника»
Кухня кухонная мебель Leicht и Hacker Kitchen, поставщик Buhanov Group, стол для завтраков Minotti, стулья Bonaldo
Столовая обеденный стол Gubi, стулья Bonaldo, тумбы Cattelan Italia
Женская спальня кровать Minotti, прикроватная тумбочка Alivar, кресло B&B Italia, подвесная тумба, стол, на заказ – изготовление «АФ Ника»
Мужская спальня кровать Alivar, тумба прикроватная Meridiani, кресло B&B Italia, мебельная композиция, подвесная полка, на заказ – изготовление «АФ Ника»
Гардеробная MisuraEmme
Спальня сына кровать Bonaldo, прикроватные тумбы MisuraEmme; письменный стол, на заказ – изготовление «Стиль и дизайн»
Спальня дочери кровать Bonaldo, прикроватные тумбы Bonaldo, банкетка Meridiani; письменный стол, на заказ – изготовление «Стиль и дизайн»
Мебель для санузлов Duravit, Antonio Lupi, тумба из искусственного камня, на заказ – изготовление «АФ Ника»
Мебель – поставщик Krassky
Оборудование
Аудиотехника, колонки Bang & Olufsen
Оборудование кухни, встроенная техника Kuppersbusch
Семейный дом в стиле американской классики
Консольный дом в Серебряном Бору О профессии «ландшафтный архитектор», образовании и специфике частных и общественных ландшафтных проектов говорим с Иваном Бугаевым…







































Равновесие, цельность и гармония как результат работы архитектора…
Ландшафтный архитектор. Инженер. Проектировщик. Логик.
«Мода в интерьере — это зеркало нашего быта»...
Храм в городе
Три кита современного стиля 
11
22
33
44
55
66
77
88
99
1010 