Дизайнеры Анна Першукова и Анна Гришанова оформили дом для ценителей добротной английской классики, расположенный в коттеджном поселке «Ламбери» под Санкт-Петербургом. Двухэтажный дом площадью 425 кв. м построен по индивидуальному проекту в традиционном английском стиле, общем для всех построек поселка. Фасады особняка из красного кирпича с белокаменным декором отсылают к камерным викторианским усадьбам и переносят в атмосферу Туманного Альбиона.
На участке возле дома находятся зона барбекю, СПА-группа с гидромассажной ванной и традиционный английский сад с образцовым газоном и живыми изгородями между участками. Заказчики – семья со взрослыми детьми – хотели, чтобы внешний облик полностью соответствовал содержанию, поэтому поставили перед дизайнерами задачу создать интерьер с историей, полный культурных аллюзий и аутентичных предметов, которые словно инсценируют историю семьи. В итоге получился колоритный особняк с элементами традиционной классики, приметами колониального стиля, антиквариатом и необыкновенно подкупающим ощущением неспешного течения жизни.
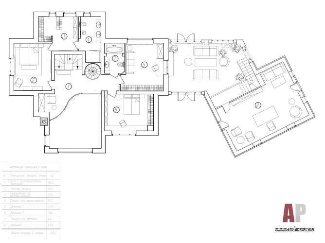
Когда дизайнеры подключились к проекту, коттедж был уже построен, им следовало превратить бетонный объем с панорамными арочными окнами, вторым светом и мансардой в удобное, функциональное и эстетически выверенное пространство для семейной жизни. На первом этаже они разместили место сбора всей семьи – парадную общую зону и более камерные помещения для отдыха.
Парадная часть обыграна как сквозное пространство, включающее двусветную гостиную, каминную и ТВ группу, кухню и столовую. Они группируются вокруг винтовой лестницы с ограждением из ажурного металла. В противоположном крыле находятся зимний сад с живыми растениями и домашний СПА-комплекс с хаммамом и сауной. Внизу также расположены гардеробные, мастерская с лоджией, технические помещения и предусмотренный застройщиком гараж на две машины.
Второй этаж занимают приватные помещения: хозяйская спальня со своей ванной комнатой и гардеробной, две гостевые комнаты, кабинет и галерея с открытой библиотекой.
Английская концепция поселка предопределила архитектуру, планировку и интерьер дома. «Мы вдохновлялись английскими поместьями с их насыщенной темной палитрой, сложной викторианской орнаментикой и плотным декором», - отмечают дизайнеры. Но, чтобы пространство не получилось слишком тяжеловесным, они искусно разбавляют английскую классику приметами колониального стиля (хозяева любят путешествовать), современной английской и американской мебелью, индивидуальными столярными изделиями с облегченным дизайном, точно подобранными винтажными и антикварными предметами.
Тонированное дерево, темный камень (в декоре портала камина) и традиционный бордовый текстиль они оттеняют светлыми заливками: теплой пастельной окраской стен, молочной керамической плиткой полов, белоснежной лепниной. Ощущению воздушного объема парадной части способствует ажурная винтовая лестница… Приватные помещения оформлены исходя из личных пожеланий хозяев, но, несмотря на разницу в цветах и нюансах, везде в основу положены классические принципы – симметрия, сбалансированность и эстетика.
Комплектация объекта
Строительные и отделочные материалы и изделия
Изделия из дерева, двери, компания Doorus
Изделия из металла, ограждение лестницы, компания «Тавр»
Камин, изготовление «Мастерская Эдуарда Асанова», мрамор Emperador Dark, чугунная топка, поставщик «Домотехника»
Текстильный дизайн, «Ателье-студия Ирины Никитиной»
Лепной декор из гипса и полиуретана Rodecor, поставщик Piterra
Обои Morris & Co, Thibaut
Финишная отделка стен, краски Little Greene
Паркет, поставщик Viva Parket
Плитка TopCer
Клинкерный кирпич, поставщик «Славдом»
Керамогранит, поставщик «ИКСтайл»
Свет Visual Comfort & Co
Постельное белье, поставщик Togas
Книги, поставщик «Коллекция»
Сантехника Simas, Gaia Mobili, поставщик «ИКСтайл»
Мебель
Холл, антиквариат
Гостиная, столовая, антиквариат, на заказ
Кухня, на заказ
Зимний сад мягкая мебель, журнальный столик Gloster, поставщик Veranda
Холл второго этажа, библиотека, на заказ
Спальня кровать Rooma Design & Furniture, комод и кресло Fabian Smith
Гостевые спальни кровати Rooma Design & Furniture
Мебель на заказ – изготовление Doorus
Поставка мебели – «Английские интерьеры», Fabian Smith
Оборудование
Радиаторы и конвекторы Zehnder
Домашняя музыкальная система, поставка и инсталляция «Триумф Аудио»
Семейный дом с арт-объектами в Подмосковье
Дворец водных видов спорта «Лужники» О профессии «ландшафтный архитектор», образовании и специфике частных и общественных ландшафтных проектов говорим с Иваном Бугаевым…



























Ландшафтный архитектор. Инженер. Проектировщик. Логик.
«Мода в интерьере — это зеркало нашего быта»...
Храм в городе
Три кита современного стиля
Проект: Аэропорт «Кавказ» 
11
22
33
44
55
66
77
88
99
1010 