Дизайнеры Rubleva Design объединили три однокомнатные квартиры в одну и создали комфортную квартиру площадью 140 кв. м для молодой семьи с маленьким ребенком и перспективой роста. Основная сложность при объединении квартир заключалась в тщательной и скрупулезной работе с пространством и связанными с ней долгими согласования архитектурных вмешательств: квартиры были разделены несущими стенами, проемами и разными по уровню окнами.
Однако благодаря линейному расположению квартир вдоль главного фасада, у дизайнеров получилось удачно зонировать общественные и приватные пространства и создать функциональный интерьер для молодой семьи.
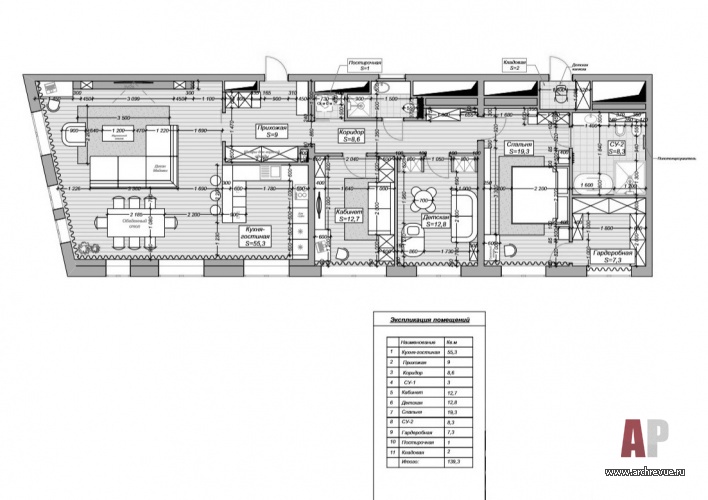
Квартира расположена в современной новостройке. Объединение трех небольших однушек в одно пространство позволило четко обозначить общественную и приватную территории – то, о чем мечтали хозяева. Гостиную, столовую и кухню дизайнеры сгруппировали в одной части квартиры, а кабинет, детскую, спальню, санузлы и гардеробную – в другой. Разные по назначению зоны связывает сквозной коридор с динамичным оформлением и встроенной подсветкой.
Кабинет спроектирован так, что его можно оперативно преобразовать в еще одну детскую. В темной части квартиры организовано два санузла: гостевой с декоративной галькой под раковиной и хозяйский с отдельностоящей ванной, стеклянной душевой и умывальной зоной. А также постирочная, встроенные системы хранения и гардеробная с многофункциональной системой хранения вещей и банных принадлежностей.
Интерьер оформлен в современной респектабельной стилистике с элементами классики. Он выглядит воздушным и элегантным благодаря нежной пастельной палитре в оттенках голубого, розового, светло-бежевого и светло-серого. В оформлении использованы качественные натуральные материалы: камень и широкоформатный керамогранит с фактурой мрамора, дерево, декоративная штукатурка с бархатной текстурой…
Акцентами служат изделия из латуни, светильники из массивного стекла и авторская белоснежная керамика. В гостиной внимание привлекает панно из керамогранита, имитирующего мрамор с латунным профилем и вставками из бронзированного зеркала; в хозяйской спальне – мягкие текстильные буазери, в кабинете – реечные панели из тонированного дуба. Они красной нитью проходят через весь интерьер из прихожей до спален и вспомогательных помещений, связывая пространство в единое целое. Необычайно эффектно выглядят межкомнатные двери: во-первых, благодаря фальш-фрамугам они зрительно увеличены до потолка, а во-вторых – рельефная поверхность деревянных полотен вносит в лаконичный интерьер дополнительную декоративность.
Комплектация объекта
Строительные и отделочные материалы и изделия
Изделия из дерева, компания The Derevo
Межкомнатные двери, поставщик ItalON
Инженерная доска, поставщик Finex
Керамогранит Porcelanosa
Искусственный камень столешница и стены Dekton, коллекция Entzo
Свет Bella Figura (модель Bond Street Round Chandelier), Lee Broom, Sagarti
Ковры, поставщики Ansy Carpet Company и Art de Vivre
Текстиль, поставщик Enere
Постельное белье, поставщик Atelier Tati
Аксессуары и декор, поставщики Woon Stores и DesingBoom
Вазы и блюда Attribute
Сантехника Noken
Мебель
Гостиная диван Estetica, журнальные столики Cazarina Interiors
Столовая обеденный стол Cattelan Italia
Кухня Giulia Novars
Спальня кровать Minotti
Мебель на заказ – изготовление компания The Derevo
Оборудование
Бытовая техника Miele
Квартира с элементами французской классики и авангарда
Современный пентхаус в Сочи Поиски нового офиса привели владельцев архитектурного бюро «Крупный план» к неожиданному, но очень значимому шагу – приобретению особняка - объекта культурного наследия XIX века...

























Созидание как эволюция: офис бюро «Крупный план»
Равновесие, цельность и гармония как результат работы архитектора…
Ландшафтный архитектор. Инженер. Проектировщик. Логик.
«Мода в интерьере — это зеркало нашего быта»...
Храм в городе 
11
22
33
44
55
66
77
88
99
1010 