Для молодой светской девушки дизайнеры студии Global Design Solutions создали остроумный интерьер с культурными аллюзиями. Вдохновением им послужила сама личность заказчицы, ее профессия и образ жизни. Молодая девушка работает в сфере искусства и, хотя и специализируется на классике и антиквариате, также всей душой любит авангард и современное искусство. Несколько месяцев в году она живет в Париже и едва ли не все сводное время проводит в музеях и галереях.
Чтобы в московской квартире заказчица чувствовала себя в своей стихии, дизайнеры предложили оформить интерьер в парижском стиле и соединить французскую классику, супрематизм и русский авангард, создав легкий и яркий интерьер с мощным бекграундом.
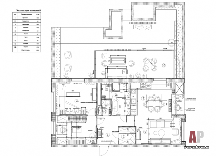
Квартира площадью 95 кв. м расположена в современной высотке премиум-класса - ЖК City Park на Красной Пресне. Особенность квартиры – увеличенные в размерах окна и роскошная открытая терраса с видом на Москву. Чтобы подчеркнуть интересную исходную архитектуру и разместить все необходимые функции (спальню, гостиную-салон, кабинет, два санузла и гардеробную), дизайнеры полностью изменили предложенный застройщиком план.
Основной конек дизайнеров – комфорт и эргономика, поэтому планировка максимально продумана и подчинена функции. Вытянутая в плане квартира разделена на два блока: справа от входа находится общая гостиная, кухня, столовая. К ней примыкает небольшой кабинет, организованный на балконе. Слева – спальня и изолированная гардеробная, площадью 16 кв. м, с панорамным окном, высокими встроенными шкафами, островом и туалетным столиком. У дизайнеров была возможность сделать выход на открытую террасу из спальни, но они не стали перегораживать несущими конструкциями роскошный вид на Москву-Сити, и разместили выход в гостиной. Особого мастерства потребовала планировка маленькой ванной комнаты, где хозяйка хотела видеть отдельно стоящую ванну: это дизайнерам удалось благодаря декораторским приемам и точному планированию.
Интерьер выглядит легким, светлым и свежим. Настроение в нем создает прихотливый лепной декор, которым украшены гипсовые карнизы, переходящие в потолок, и настенные молдинги. Углы у карнизов закругленные: так они смотрятся мягче. Из гипса с примесью бетона выполнены плинтусы и портал камина… Лепной декор получился нежный и изысканный, отправной точкой для послужили исторические образцы французских интерьеров.
Но поданы они в авангардной форме: например, в гостиной ажурная белая стена частично «выхвачена» черной краской, прямой рубленый рисунок фрагмента отсылает к работам Пикассо и Мондриана. В спальне – масштабное гипсовое панно рифмуется с абсолютно черным гладким потолком. Стилистика современного парижского интерьера реализуется также в смелом миксе из затейливых люстр и открытом монохромном техническом свете, белых филенчатых и строгих латунных фасадах кухни, в использовании зеркал с расшивкой и черной стеклянной перегородки с фрамугой, какими до сих пор славят квартиры в престижных округах Парижа. Яркие акценты: мебель обтекаемых форм, супрематические подушки, абстрактная живопись добавляют интерьеру французского шарма.
Комплектация объекта
Строительные и отделочные материалы и изделия
Финишная отделка стен, краска Sherwin-Williams
Инженерная доска, поставщик Finex
Керамогранит Rex, мозаика Bisazza, поставщик «Тоскана Дизайн»
Декоративный свет Serip, Fine Art Lamps
Архитектурный свет, поставщик Centrsvet
Сантехника Villeroy & Boch, поставщик «Макслевел»
Мебель
Прихожая консоль Eichholtz
Гостиная диван Rugiano (модель Pierre), кресло Rugiano (модель Opera), журнальные столики Cattelan Italia (модель Peyote), тумба под ТВ Pianca (модель Tosca)
Столовая обеденный стол Cattelan Italia, стулья Meridiani (модель Odette Uno)
Кабинет рабочий стол Sovet Italia, кресло B&B Italia (модель Caratos Maxalto)
Гардеробная шкафы на заказ; кресло Baxter, кресло Minotti (модель Low)
Оборудование
Электроустановочные изделия Schneider electric, коллекция Unica
Радиаторы Arbonia
Оборудование кухни Miele
Небольшой дом в лесу
Семейная квартира с нежной палитрой Великое наследие и возрождение Храмового зодчества в России – поговорим об этом с архитектором Дмитрием Пшеничниковым, основателем архитектурного бюро «Дмитрий Пшеничников и Партнеры»
























Равновесие, цельность и гармония как результат работы архитектора…
Ландшафтный архитектор. Инженер. Проектировщик. Логик.
«Мода в интерьере — это зеркало нашего быта»...
Храм в городе
Три кита современного стиля 
11
22
33
44
55
66
77
88
99
1010 