К дизайнеру Марине Подъячевой заказчики, молодая семейная пара, пришли по «сарафанному радио». Они только что стали родителями, поэтому им был нужен проверенный специалист, которому можно полностью доверить все работы по оформлению интерьера. Вникать в вопросы стройки и ремонта они не хотели, так что дизайнер построила процесс так, чтобы не включать заказчика в те вопросы, которые можно решить самостоятельно.
«С заказчиками мы обсудили только эргономику и планировочное решение. Предложенная планировка им очень понравилась, а визуализацию они утвердили с первого раза», - рассказывает автор проекта. Само пространство оказалось очень удачным и вдохновляющим. Квартира площадью 112 кв. м находится в новом доме «Олимпийская Деревня Новогорск» и имеет роскошное оранжерейное остекление в гостиной. Именно эту особенность дизайнер и предложила обыграть в проекте, сделать интерьер продолжением экстерьера, добавить пространству природной красоты.
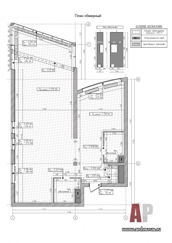
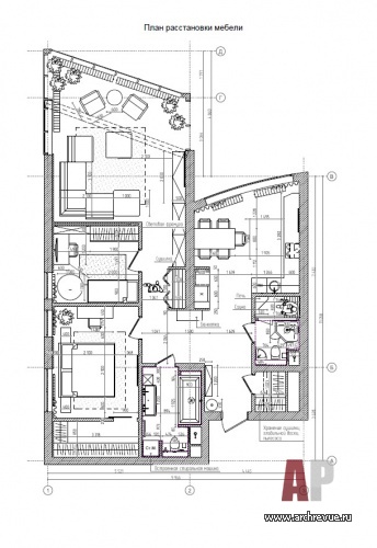
Квартира имеет сложный план с острым углом фасада и радиусным остеклением. Гостиная занимает самое эффектное место – с оранжерейными окнами и видом на лес. Неправильную геометрию дизайнер скорректировала с помощью расстановки мебели и линейного оформления стен. Кухня-гостиная изолированные с эркерным окном. Хозяйская спальня с выходом в гардеробную находится в глубине квартиры, к ней примыкает детская.
Два санузла и вспомогательные помещения расположены в темной части квартиры. Одним из пожеланий заказчика стала сауна, которую архитектор вписала в пространство гостевого санузла, а также наличие кладовой при входе, которая одновременно служит гардеробной для верхней одежды.
Интерьер выполнен в современном, минималистском ключе с акцентом на природные цвета и фактуры. Фон практически монохромный, благодаря чему границы помещений визуально растворяются и на первый план выходит большой светлый объем. Стены оформлены декоративной штукатуркой с натуральным эффектом или нейтральной краской, на полу – инженерная доска из выбеленного дуба, в отделке использовано дерево и керамогранит с природными, живыми текстурами и ненавязчивой палитрой.
Яркие открытые цвета используются только в текстиле: зеленые стулья в столовой, оранжевая кровать в хозяйской спальне… Мощным акцентом служит и декоративное двухметровое панно, написанное специально для этого интерьера в красках природы за окном. Важное значение в интерьере играет панорамные остекление, оно делает квартиру похожей на зимней сад или оранжерею. Окна изготовлены из металлопрофиля и имеют красивый графичный рисунок. Чтобы не перекрывать вид и сохранить ощущение воздушности, дизайнер предложила не использовать портьеры, только легкие солнцезащитные шторы-плиссе. Благодаря такому решению со сменой природного сезона меняется и интерьер, наполняется новыми красками, живет в ритме с окружающей средой.
Комплектация объекта
Строительные и отделочные материалы и изделия
Изделия из дерева, компания WoodMaker
Текстильный дизайн, компания T-ART textile
Двери, поставщик «Академия дверей»
Финишная отделка стен, штукатурка, краска Derufa
Пол, инженерная доска, поставщик «Олимп Паркета»
Плитка и керамогранит Porcelanosa, 41zero42, Equipe Ceramicas, Kerama Marazzi
Свет, поставщик «Город Света»
Растения, кашпо, поставщик Treez Collection
Ковры, поставщик Art de Vivre и Kover.ru
Декор, поставщики HomeART и Woon Stores
Пледы, подушки, поставщик Empire Design
Постельное белье, поставщик Amalia Home Collection
Керамика, Ceramum
Картины, под заказ, Artlab Interior
Сантехника раковина Duravit, ванна Jacob Delafon, душевой комплект Lemark, смесители RGW, унитазы Vitra, душевая стойка Boheme, инсталляции Geberit поставщик «Сантехника Онлайн»
Мебель
Копусная и мягкая мебель, на заказ – изготовление компания WoodMaker; HomeART, Yamaguchi, IKEA
Оборудование
Оборудование кухни Neff
Фотограф: Борис Бочкарев
Стилист: Елена Карасаева
Архитектура успеха. Дворец гимнастики Ирины Винер-Усмановой
Мансардная квартира на Полянке Поиски нового офиса привели владельцев архитектурного бюро «Крупный план» к неожиданному, но очень значимому шагу – приобретению особняка - объекта культурного наследия XIX века...





















Созидание как эволюция: офис бюро «Крупный план»
Равновесие, цельность и гармония как результат работы архитектора…
Ландшафтный архитектор. Инженер. Проектировщик. Логик.
«Мода в интерьере — это зеркало нашего быта»...
Храм в городе 
11
22
33
44
55
66
77
88
99
1010 