Для семьи с двумя детьми архитектор Сергей Ларичев спроектировал рациональную квартиру в мансардном этаже реконструированного дома на Полянке, построенного архитектором Г. Гельрихом в XIX веке и превращенного в современный клубный жилой комплекс. Пространство досталось непростое – сложная геометрия кровли с высокими точками и скошенными углами требовала тщательного функционального планирования и филигранной точности исполнения строительных работ, индивидуальных изделий и мебели.
«Наклонный потолок, мансардные окна, террасы – все это красиво и интересно смотрится в интерьере, но разные высоты, а главное множество сложных узлов и примыканий представляли серьезный недостаток», – отмечает автор проекта. Поэтому работа над квартирой началась с утепления внутренних стен, остекления лоджий, усиления узлов примыкания. Мансардные деревянные окна остались от застройщика, их только покрасили по RAL в контрастный темный цвет.
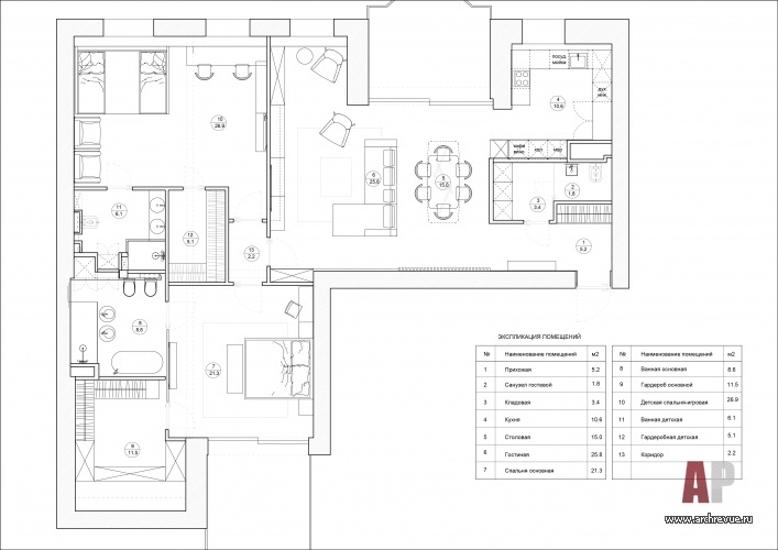
Основная идея планировки – функциональность и практичность. Квартира площадью 153 кв. м сдавалась с условной планировкой, с перегородками в один блок. Застройщиком был сформирован полный набор помещений: совмещенная со столовой гостиная, изолированная кухня, спальни со своими гардеробными и ванными комнатами, гостевой санузел с постирочной и две большие лоджии – одна при спальне, вторая при гостиной.
«Мы не смогли существенно изменить исходник, поскольку были привязаны к расположению окон, входной группы и мокрых зон, но максимально оптимизировали план», - отмечает автор проекта. В частности, сделали удобную рабочую зону со встроенной техникой на компактной кухне. Две детские по 10 кв. м объединили в одну, где придумали отдельное спальное место в виде домика на подиуме, игровую зону и зону для приготовления уроков. В хозяйском санузле на 9,5 кв. м смогли разместить отдельно стоящую ванну, душевую, две раковины, унитаз, биде и шкафы для хранения, а в проходную постирочную вписать индивидуально разработанную систему сушки одежды.
Заказчики – современные, динамичные люди, они ценят комфорт и качество во всем. В бюро Сергея Ларичева пришли осознанно, выбрав его из десятка других специалистов, им импонировали его современные, эргономичные и практичные интерьеры. Из особых пожеланий было использование в интерьере лимонного дерева – редкого материала с красивой текстурой и теплым цветом. В поддержку к нему архитектор взял тонированный дуб (для контраста) и широкоформатный керамогранит под мрамор.
Деревянные панели придают строгому монохромному интерьеру уют, а фактура камня подчеркивает чистую современную архитектуру. Мебель подбиралась также предельно лаконичная и функциональная: обеденный стол-трансформер, спальня-«домик» с двумя спальными местами в детской, кровать с кожаным изголовье в спальне.
Особого внимания потребовала кухня: небольшая площадь, скошенный потолок, мансардное окно – все это требовало сложных чертежей, разработки систем открывания, узлов примыкания. Итальянские производители не могли сделать то, что архитекторам было нужно, тогда они обратились в российскую мастерскую и получили максимально функциональную и вместительную кухню и дешевле итальянских аналогов. Из технологичных решений в квартире использованы щелевые решетки вентиляции – достаточно новый продукт на рынке, а также смарт-стекло с переменной прозрачностью, отделяющие ванную комнату с гардеробной от спальни хозяев. От пульта при включенном внутри свете стекло матируется и обеспечивает приватность.
Комплектация объекта
Строительные и отделочные материалы и изделия
Изделия из дерева, компания Vitaly Furniture
Мансардные окна VELUX
Перегородка из смарт-стекла и зеркала, поставщик IQ Glass
Паркетная доска, поставщик Arch-Skin
Крупноформатный керамогранит, Arch-Skin
Свет Doxis, Flos, поставщик «Аксиома»
Ковры, поставщик Design Carpets
Текстиль, поставщик Enere
Постельное белье, Parpa
Декор вазы Calligaris
Искусство, «Галерея Smart»
Сантехника Antonio Lupi, Bossini
Мебель
Прихожая банкетка Calligaris
Гостиная диван, кресла, на заказ
Кухня, на заказ
Детская кровати, домик, на заказ; стулья MOOOI, лошадка-качалка Kartell, кресло Walter Knoll
Спальня кровать, шкафы, на заказ; банкетки Poltrona Frau
Кабинет, гардеробная, на заказ
Терраса кресла Poltrona Frau
Встроенная и корпусная мебель на заказ – изготовление Vitaly Furniture
Мягкая мебель на заказ – изготовление Furman – официальный представитель в Москве, компания Performa
Оборудование
Оборудование кухни встроенная техника Gaggenau, мелкая бытовая техника Bork
Фотограф: Сергей Красюк
Стилист: Настя Березина
Квартира с зимним садом в Подмосковье
Спокойная квартира с элементами ар-деко О профессии «ландшафтный архитектор», образовании и специфике частных и общественных ландшафтных проектов говорим с Иваном Бугаевым…

































Ландшафтный архитектор. Инженер. Проектировщик. Логик.
«Мода в интерьере — это зеркало нашего быта»...
Храм в городе
Три кита современного стиля
Проект: Аэропорт «Кавказ» 
11
22
33
44
55
66
77
88
99
1010 