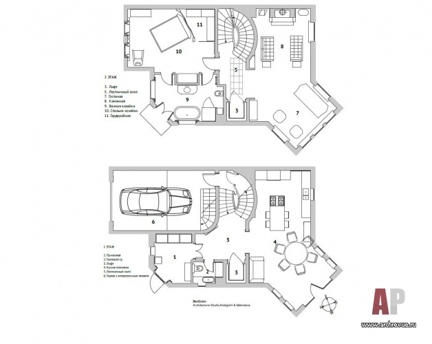
Дизайнеры Анна Анельгольм и Светлана Матвеева оформили дом в поселке «Довиль» и передали в его интерьере атмосферу престижного европейского курорта. «Нам хотелось создать ощущение безмятежности и покоя, добавить солнечный колорит и запах морского бриза – то, за что так ценится отдых на побережье», - отмечают дизайнеры. В распоряжение им достался четырехэтажный компактный дуплекс площадью 330 кв. м с архитектурой в духе традиционных фламандских построек: разноуровневой крышей, имитацией фахверка и богатым внешним декором.
Дом был добротно построен, и дизайнеры лишь слегка его доработали: пересобрали стропильные балки и колонны для оптимизации пространства мансардного этажа, с помощью каменного портала изменили облик входной группы, благоустроили участок – вместе с дендрологом сформировали эффектные живые композиции с учетом периода цветения растений.
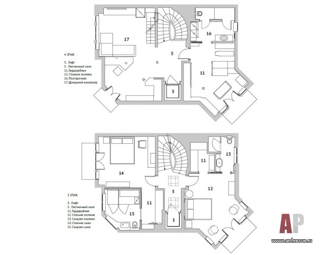
Дом имеет многоуровневую планировку, пространство развивается по вертикали: с высотой усиливается кулуарное настроение. На первом этаже расположены гараж, прихожая и кухня со столовой. Столовая имеет отдельный выход на участок, в укромный уголок придомовой территории. Гостиная с каминной зоной находится на втором этаже. Здесь же спроектирована женская половина со спальней и личными помещениями хозяйки. Третий этаж получился мужским, его занимают апартаменты хозяина и сына.
На мансарде обустроен чил-аут – неформальное место отдыха для самых близких. Все четыре этажа объединяет монолитная спиральная лестница и лифт. Лестница была изначально задумана застройщиком, но воплощена не самым лучшим образом, отлита с ошибками, выглядела тяжеловесно. Пришлось конструкцию многократно рихтовать, чтобы добиться большей пластичности и красоты изгибов. «Над лестницей работало пять команд: одна изготавливала ступени из черного кварцита, другая – бортик из искусственного камня, третья – ограждение из гнутого крашеного металла, и еще две отвечали за поручень и декоративные финиши. И ни у кого из них не было права на ошибку, любая неточность сводила на нет труд всей команды», - рассказывают дизайнеры.
Интерьер дома получился сложным, подробным, многоплановым. Заказчики – люди с широким кругозором, интеллектуалы и коллекционеры, поэтому дизайнеры решили сыграть на контрасте разных текстур, орнаментов и форм, а также элегантной нюансной палитре. В интерьере много традиционных элементов: двери с филенками и фрамугами, лепные карнизы и высокий рельефный плинтус, деревянные панели-буазери с тонкой резьбой, натуральный камень и паркет…
В гостиной внимание привлекает камин из итальянского травертина: массивный, основательный с широкой топкой – реверанс в сторону классических замковых каминов, куда легко могли пробраться трубочисты. «С камином было непросто. Всем предлагаемым на рынке топкам не хватало размаха, а печники отказывались выкладывать большой камин из-за несоответствия размеров дымохода и неправильной тяги. Тогда мы решили действовать декоративными методами: утопили основание камина в пирог пола, украсив подножье чугунными плитами, выложили топку из кирпича, зрительно увеличив относительно небольшое топочное окно, и очень скрупулезно проработали геометрию каменной облицовки с минимальными стыками», - отмечают дизайнеры. Еще одним вызовом стала вытяжка на кухне.
Профессиональная газовая плита, которая очень понравилась хозяйке, требовала вытяжку с большой мощностью и правильно организованной тягой. Чтобы серьезная техническая конструкция не выглядела слишком громоздко, а напротив – легко и невесомо, дизайнеры придумали изящный стеклянный колпак. Российские мастера не смогли изготовить стекла такого размера и формы, и дизайнеры нашли рижскую компанию, которая создала ритмичную стеклянную композицию, ставшую достойной парой к люстре Паолы Навоне.
Комплектация объекта
Строительные и отделочные материалы и изделия
Изделия дерева, панели буазери встроенная мебель, Acorn Lab
Витражные двери, компания Attribute
Лепной декор из гипса, поставщик «Петергоф»
Финишная отделка стен, краска Benjamin Moore (цвет Brick House Tan)
Лестница ступени из искусственного камня, компания «Фирмон»
Декоративный колпак со встроенной вытяжкой из стекла ручного литья и латунного каркаса, компания AM Studio
Натуральный камень, портал камина, травертин, компания «Стрелец-Камины Петербурга»
Цементная плитка, поставщик «Грета Вульф»
Свет декоративный FontanaArte, Visual Comfort & Co, Family Hall; винтаж, поставщик Repeat story
Встроенный свет, поставщик Centrsvet
Текстиль, подушки, поставщик Loffilab
Ковры, поставщики Design Carpets и Rug Republic
Постельное белье, поставщик Amalia Home Collection
Аксессуары, поставщики DesingBoom, BD Barcelona Design, Interio 22, Repeat story
Сантехника Devon & Devon, душевые Hueppe, сауна Jacuzzi (модель Sasha-Mi), поставщик «Кредит Керамика»
Мебель
Прихожая комод и зеркало Roche Bobois
Столовая обеденный стол Salda, стулья Cattelan Italia
Кухня кухонная мебель, буфет Castagna Cucine, барные стулья Cattelan Italia (модель Pepe)
Гостиная диван и кресло Moroso, столики Roche Bobois
Каминная софа и кушетка Wittmann, витрина и сервант Roche Bobois, столик GK Concept; встроенный стеллаж, на заказ
Спальня хозяина кровать Gervasoni, прикроватный столик Wittmann; винтажные кресла, журнальный столик и часы, поставщик Repeat story
Спальня хозяйки комод Roche Bobois, кровать и кресло Maxalto
Спальня сына кровать, рабочий столик Molteni&C
Домашний кинотеатр, библиотека, барная стойка изготовлены на заказ, барный стул MOOOI (модель Moster)
Мебель для ванных комната, на заказ
Мебель на заказ – изготовление Acorn Lab
Поставка мебели – «Частная коллекция»
Оборудование
Электроустановочные изделия Lutron
Встроенная система пылеудаления Allaway
Оборудование кухни Wolf Sub-Zero
Фотограф: Михаил Степанов
Стилист: Татьяна Гедике
Яркая квартира для семьи с двумя детьми
Светлая квартира с французским настроением Великое наследие и возрождение Храмового зодчества в России – поговорим об этом с архитектором Дмитрием Пшеничниковым, основателем архитектурного бюро «Дмитрий Пшеничников и Партнеры»





































Равновесие, цельность и гармония как результат работы архитектора…
Ландшафтный архитектор. Инженер. Проектировщик. Логик.
«Мода в интерьере — это зеркало нашего быта»...
Храм в городе
Три кита современного стиля 
11
22
33
44
55
66
77
88
99
1010 