Архитектор Юлия Кишкович спроектировала квартиру в ЖК «Садовые кварталы» для своей давней знакомой – большой любительницы винтажной мебели и очень творческой личности, коллекционирующей современную живопись и графику. Квартира архитектору досталась чрезвычайно удачная: 100 кв. м в бетоне, окна в пол, высокие потолки – мечта любого специалиста. «Качество изначального проектирования самого дома настолько удачное, что менять ничего не пришлось. Мы практически полностью вписались в пятна планировки застройщика, подчеркнули исходную архитектуру», - рассказывает автор проекта.
Каких-то строгих пожеланий у заказчицы не было, она доверяла вкусу и стилю архитектора. Из основного – нужно было разместить коллекцию работ, обязательно найти место для большого книжного шкафа из старой квартиры и повесить в ванной картину с девушкой в полосатом купальнике. Из этих деталей, по сути, и вырос этот легкий и тонкий интерьер.
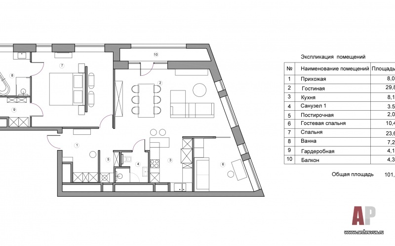
Планировка квартиры полностью соответствует образу жизни молодой и очень занятой заказчицы. Пространство разделено на две части: большую гостевую зону с открытой кухней в нише и присоединенным кабинетом (с функцией гостевой), а также частный блок со спальней, гардеробной и ванной комнатой. Хозяйственное помещение сделано открытым и решено в единой стилистике с гардеробом, в зоне гостиной предусмотрен гостевой санузел с душевой.
«Меня в планировке очень смущал полный обзор гостиной от входной двери, я стараюсь такого избегать, но клиентке это как раз нравилось, поэтому тут не стали выдумывать каких-то ограждающих элементов, зато в спальне как раз сделали легкую перегородку, отделившую входную часть от спального места», - отмечает архитектор. В итоге квартира получилось большой, открытой и очень светлой.
Интерьер создан по принципу традиционных французских квартир, где классическая архитектура и винтажная мебель соседствуют с функциональными решениями и современным искусством. Палитра интерьера светлая, воздушная: белые, пыльно-розовые, светло-коралловые и серые стены, натуральные полупрозрачные дубовые полы, пастельных оттенков керамическая плитка в санузлах. На этом фоне особенно весомо выглядит брутальная кухня из темного дерева и окисленного металла в обрамлении пестрого покрытия-террацо.
Мебель и светильники в проекте преимущественно французские, много эксклюзивных топовых и массовых брендов. Часть предметов изготовлена по индивидуальному дизайну, а другая переехала из старой квартиры заказчицы, как, например, роскошный книжный шкаф с классическим дизайном… Этот сплав винтажа и современных дизайнерских элементов работает на образ многопланового интерьера вне времени и создает непринужденную атмосферу.
Комплектация объекта
Строительные и отделочные материалы и изделия
Двери поставщик Union
Изделия из стекла, компания StekloMet
Изделия из металла, перегородки, компания Mauer Buro
Декоративная финишная отделка стен, краска, Little Greene
Обои на сдвижной двери, Omexco
Плитка-тераццо Mosaic del Sur, керамогранит 41zero42, мозаика Bisazza, плитка и мозаика Decoratori Bassanesi, поставщик «АРДО»
Свет декоративный Forestier, Nemo, Schneid Studio, Tom Dixon, Vistosi, Terzani, Il Pezzo Mancante, Utu Lamps, поставщик Light&Design
Технический свет Wever & Ducré, Centrsvet
Сантехника ванна BelBagno, унитазы ArtCeram, раковина Rexa Design, смесители Roca (by Armani)
Ковры, поставщик La Redoute
Аксессуары, вазы Zara Home и Lalique; зеркало Ex.t
Мебель
Прихожая лавка FDB Mobler
Гостиная диван винтаж, (дизайн Vladimir Kagan), комод Nissen & Gehl, винтаж; кресло LaForma
Столовая стол обеденный La Redoute, стулья обеденные LaForma
Кухня кухонная мебель Lithium, барные стулья Mattiazzi
Кабинет-гостевая диван Perrino, столик IKEA
Спальня тумбочки, макияжный стол, пуф La Redoute, комоды The Idea, табурет Zara Home
Гардеробная встроенные шкафы Mr.Doors
Мебель для санузлов Arbi, на заказ
Поставка мебели – Abitamo Interior
Оборудование
Оборудование кухни холодильник Smeg, встроенная техника Electrolux Group
Фотограф: Александр Володин
Традиционный загородный дом с бассейном
Яркая квартира для семьи с двумя детьми О профессии «ландшафтный архитектор», образовании и специфике частных и общественных ландшафтных проектов говорим с Иваном Бугаевым…



























Созидание как эволюция: офис бюро «Крупный план»
Равновесие, цельность и гармония как результат работы архитектора…
Ландшафтный архитектор. Инженер. Проектировщик. Логик.
«Мода в интерьере — это зеркало нашего быта»...
Храм в городе 
11
22
33
44
55
66
77
88
99
1010 
Проектирование шло несколько месяцев, но со стройкой мы попали на пандемию и карантин, поэтому все немного затянулось, встали как строительные работы, так и поставки мебели и светильников. Были и другие сложности: например, перевозчики потеряли нашу кровать, правда, потом нашли, но все понервничали… Так что сама стройка и обстановка заняла примерно полтора года со всеми остановками.
Само проектирование шло легко, мы с клиенткой довольно быстро нашли образ квартиры. Заказчица сама, несмотря на плотный рабочий график, довольно активно участвовала в проектировании, но при этом у нас не было каких-то особенных разногласий, большинство идей мы с ней очень быстро согласовывали. Даже какие-то сложности, а они всегда есть возникают при стройке подобной квартиры, принимались легко и конструктивно.