Архитектор-дизайнер Елена Паунич спроектировала интерьер загородной виллы в Дагомысе, оформила фасады и прилегающую территорию и придала современной архитектуре здания еще более выразительный вид. Двухэтажный дом общей площадью 700 кв. м расположен на склоне холма, архитектор подключилась к работе на стадии бетонного каркаса.
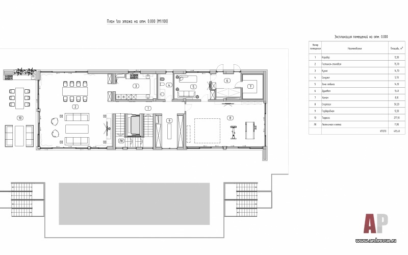
Исходная форма дома была по-минималистски проста и в то же время чрезвычайно сложна: большие перепады высот природного рельефа диктовали свои жесткие условия. Структура дома такова, что парковка находится на девять метров ниже первого этажа дома, в цокольной части под землей, а за жилыми этажами возвышается большая подпорная стена, поддерживающая верхний склон. Связующим стержнем является лифтовая шахта с лестницей, которая по мере подъема получает естественное освещение через панорамные окна с видом на море. Надо сказать, что в этом доме едва ли не все окна жилых помещений панорамные, и все обращены на водную гладь. При работе над проектом авторы затронули архитектуру и внешнюю отделку дома. Фасад оформили композитными панелями на металлической подсистеме: такой вариант стал оптимальным при жестких временных рамках и бюджете. «Заказчик хотел закончить дом как можно быстрее, поскольку к моменту, как мы зашли на объект, он строился уже несколько лет», - отмечает Елена Паунич. Особенность архитектуры – большая плоскость остекления, для максимального комфорта было использовано термоизоляционное стекло SUNGLASS с серым фотофильтром. Кроме того, все панорамные окна на первом этаже можно раздвинуть и объединить улицу и пространство внутри дома, убрать границу между природой и жилой средой – а именно в этом и заключается главная задача современной архитектуры.
Планировка двухэтажного дома подчинена расположению моря и движению солнца. Первый этаж занимают общественные помещения: на восточной стороне, где всходит солнце, архитектор спроектировала большой тренажерный зал со СПА-зоной, хаммамом и душевой, а на западной – большую общую гостиную со столовой и зоной барбекю на террасе, откуда так приятно любоваться закатом.
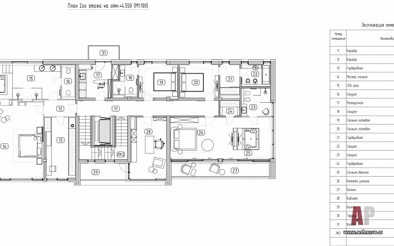
Большинство спален на втором этаже обращены на юг и имеют фронтальный вид на море, санузлы и вспомогательные помещения ориентированы на север и выстроены вдоль подпорной стены. Центральное место в объеме второго этажа занимает кабинет хозяина: он имеет увеличенную высоту и огромное панорамное окно. Здесь хозяин наслаждается одиночеством или принимает гостей. Терраса и открытый бассейн расположены вдоль главного фасада, они подчеркивают вытянутую архитектуру здания.
Заказчик – любитель северного колорита и умеренно брутальных фактур. Большую часть времени он проживает в Карелии, поэтому в доме на южном побережье хотел воссоздать привычную атмосферу. Поэтому в оформлении использован бетон цвета пасмурного неба и дерево в темных, густых оттенках крайнего Севера.
Несмотря на большой метраж и разную функциональную нагрузку интерьер дома получился необычайно цельным. Дерево, преимущественно шпон ореха, необработанный бетон или финишная отделка микроцементом, натуральный камень дымчатого цвета, черный металл и стекло – вот основные материалы, которые визуально объединяют пространство. Одним из пожеланий заказчика были газовые камины в гостиной и мастер-спальне. Так появился большой двухметровый камин напротив диванной группы, который видно даже с террасы через большие панорамные окна. А также туннельный камин между спальней и ванной комнатой: через стекла и огонь очага оба помещения прекрасно просматриваются. Мужской характер интерьера подчеркивают элементы лофта, которые наиболее отчетливо просматриваются в помещениях цокольного этажа.
Комплектация объекта
Строительные и отделочные материалы и изделия
Изделия из дерева, стеновые панели из шпона ореха, встроенная мебель, компания «Греков&Кот»
Двери Invisible, потолочные и стеновые панели, поставщик «Софья»
Текстильный дизайн, компания KS-studio
Напольная плитка Colorker
Паркет, поставщик «Олимп Паркета»
Свет Serip, Arte Lamp, Lussole, поставщик Zasvet; технический свет, поставщик Centrsvet
Сантехника Jacuzzi, Laufen, инсталляции Geberit
Мебель
Гостиная диваны, кожаные кресла Flexform, журнальный столик и стулья у обеденного стола выполнены по индивидуальному проекту
Спальня хозяев кровать IL Loft, кресло Caracole
Кабинет письменный стол, системы хранения изготовлены на заказ; рабочее кресло Caracole
Терраса мебель Atmosphera
Поставщик мебели - That's Living
Мебель на заказ – изготовление «Греков&Кот»
Оборудование
Оборудование кухни Smeg, мелкая бытовая техника KitchenAid
Фотограф: Михаил Чекалов
Стилист: Зарина Калинина
Респектабельная квартира с террасой
Легкая классическая квартира в Санкт-Петербурге Поиски нового офиса привели владельцев архитектурного бюро «Крупный план» к неожиданному, но очень значимому шагу – приобретению особняка - объекта культурного наследия XIX века...












































Созидание как эволюция: офис бюро «Крупный план»
Равновесие, цельность и гармония как результат работы архитектора…
Ландшафтный архитектор. Инженер. Проектировщик. Логик.
«Мода в интерьере — это зеркало нашего быта»...
Храм в городе 
11
22
33
44
55
66
77
88
99
1010 