Над проектом этого четырехэтажного лофта, расположенного в комплексе апартаментов Manhattan House на Верхней Масловке, архитекторы бюро INRE суммарно работали около десяти лет. Сначала заказчик купил двухэтажную квартиру на последнем этаже реконструированного завода, где организовал неординарную студию. А через несколько лет, когда в семье родились дочери, а здание было достроено, еще два этажа, включая мансардный, который решил превратить в baby-лофт.
Детский блок имеет отдельный вход, а с родительскими апартаментами он соединяется винтовой лестницей, расположенной в кабинете. Над интерьерами всех четырех этажей работала команда INRE, ей удалось не только выдержать непростой объект в едином стиле, но и прекрасно отразить в нем личность заказчика и его взгляды на комфортное современное жилье. В итоге получился оригинальный и очень личностный проект с нетривиальной планировкой и дизайнерскими решениями.
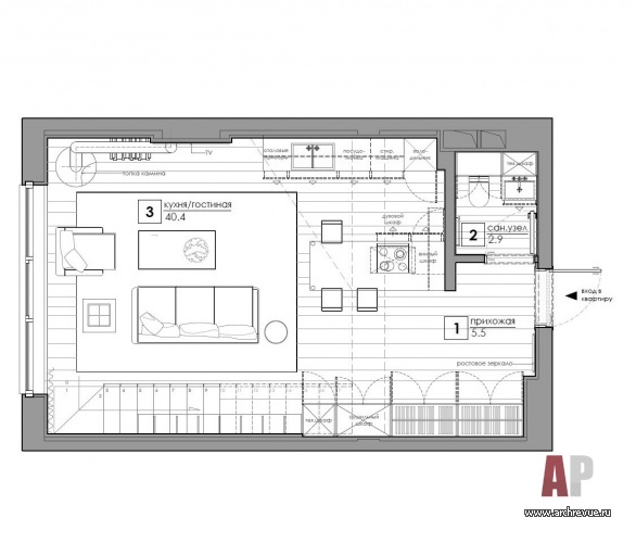
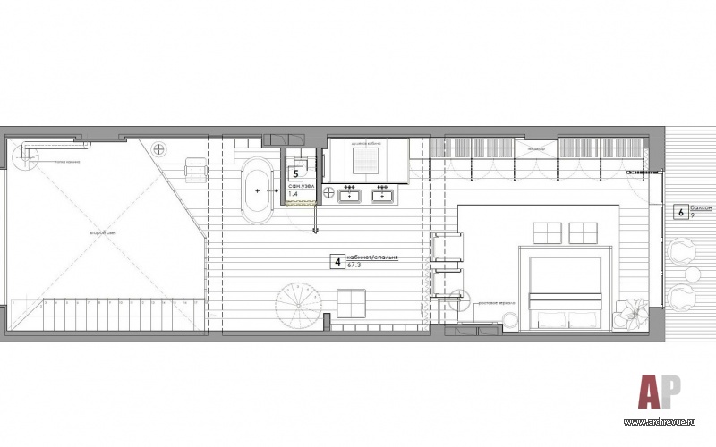
Многоуровневое пространство имеет открытую планировку. На первом этаже квартиры расположены кухня и большая гостиная со вторым светом – единое пространство с условным зонированием. В общий объем вписана лестница, ведущая на второй этаж – родительскую территорию с мастер-спальней и кабинетом. Две эти зоны разделяет душевая кабина с потолочным душем, являющаяся акцентом интерьера.
Отдельно стоящая ванна расположена так, чтобы из нее через большое витражное стекло хорошо видны городские панорамы. С любой точки обоих этажей хорошо просматриваются окна второго освещения, поэтому лофт получился просторным и атмосферным. Детский лофт представляет собой двухэтажное пространство со вторым светом. На первом уровне расположена большая игровая комната с камином и собственной кухней, на втором – две детские спальни и санузел с душевой.
Само здание выполнено в стиле американского классицизма – тяжелые входные двери подъездов, окна большого размера, лифт со стрелкой, указывающей номер этажа… Строгий ритм, брутализм и эстетика живых материалов, авангардные детали – все эти свойственные архитектуре элементы легли в основу интерьера квартиры. В оформлении общего и родительского этажей ставка сделана на фактурные брутальные материалы премиального качества: ригельный кирпич нестандартной ручной формовки датского производителя, инженерную доску из массива дуба с элементами хэнд-скрейпинга.
«Из дерева вручную выбираются бороздки, и оно становится рифленым, тактильным, по нему приятно ходить. Использовали доску разной ширины (от 140 до 300 мм) и длины (до 5 м), хорошо ведущую себя даже в мокрых зонах (на кухне, в ванной, в прихожей)», - отмечают авторы проекта. В облицовке стен и потолка частично использована амбарная доска из разобранных в Канаде старинных амбаров. Яркий акцент интерьера – оригинальные шкафы с вертикальными фасадами, которые напоминают уложенные друг на друга выдвижные ящики. Они были изготовлены на заказ и многослойно окрашены для создания винтажного эффекта. Сначала механическим способом были сделаны трещины, затем на поверхность наносилось порядка 14 слоев различных лакокрасочных покрытий. С эффектными материалами сочетается харизматичная мебель Baxter и Timothy Oulton, а также эпатажная красная отдельно стоящая ванна. Состаренное дерево и открытый кирпич – главные мотивы и двух детский этажей. Но в противовес родительскому блоку их палитра светлая, пастельная умиротворяющая.
Комплектация объекта
Строительные и отделочные материалы и изделия
Изделия из металла, лестницы, зеркала с ржавчиной, компания Axolotl msk
Стены, ригельный кирпич Kolumba, производитель Petersen Tegl
Пол, инженерная доска, Bonum Wood и Bassano Parquet
Натуральный камень, мрамор Negro Marquina
Керамическая плитка The Winchester Tile Company
Свет декоративный Catellani & Smith, Oluce, Flos, Visual Comfort & Co
Встроенные светильники Kreon
Камин Invicta (модель Pharos)
Ковры, поставщик Dovlet House
Постельное белье, поставщик Lissoy
Декор, аксессуары, Arteriors, Timothy Oulton, Ptmd Collection
Сантехника ванна Devon & Devon, раковины Antonio Lupi, смесители Dornbracht и Axor
Мебель
Гостиная кресло, стол Baxter
Кухонная мебель Cesar
Главная спальня кровать на заказ, по эскизам архитекторов – изготовление Axolotl msk; прикроватные тумбы Baxter, кресло DiTre Italia, маленький столик Zeus Noto
Кабинет кресло рабочее Timothy Oulton
Детские, на заказ
Оборудование
Акустические системы Sonance Silhouette
Система «умный дом» на базе KNX
Панели управления «умным домом» Berker, серия TS Sensor
Электроустановочные изделия Meljac
Внутрипольные конвекторы Moehlenhoff
Система очистки и умягчения воды BWT
Оборудование кухни, встроенная техника Miele, холодильник Smeg
Фотограф: Сергей Красюк
Многоуровневый дом, встроенный в холм
Респектабельная квартира с террасой О профессии «ландшафтный архитектор», образовании и специфике частных и общественных ландшафтных проектов говорим с Иваном Бугаевым…
























Ландшафтный архитектор. Инженер. Проектировщик. Логик.
«Мода в интерьере — это зеркало нашего быта»...
Храм в городе
Три кита современного стиля
Проект: Аэропорт «Кавказ» 
11
22
33
44
55
66
77
88
99
1010 