Перед дизайнерами Duostudio была поставлена амбициозная задача – для коллекционера современного искусства оформить квартиру, в которой можно было бы встречаться с коллегами, чтобы обсудить новую покупку или обменяться работами, а также насладиться одиночеством среди работ российских художников первого уровня: Ильи Кабакова, Юрия Лейдермана, Алины Глазун, Сергея Волкова и других мастеров. Нужно было создать концептуальное, но максимально нейтральное, пространство, которое бы выгодно подчеркивало современное искусство, но ни в коей мере не спорило бы с ним.
Апартаменты площадью 106 кв. м расположены на 61-м этаже башни Neva в Сити. Дизайнерам они достались в отделке white box. «Мы практически полностью изменили существующие конструкции под индивидуальные предпочтения заказчика, использовали другие материалы, - отмечают авторы проекта. – Проектирование заняло ровно 2 месяца. Строительные работы продолжались 9 месяцев».
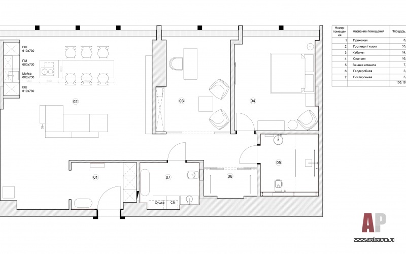
Техническое задание включало создание комфортного пространства для приема гостей, проведения мероприятий и временного проживания заказчика. Поэтому исходный объем дизайнеры разделили на общую зону для общения (площадью 53 кв. м) и приватный блок, включающий спальню, кабинет и хозяйскую ванную комнату. При перепланировке они в целом сохранили исходную геометрию зонирования, изменив лишь детали и назначение некоторых помещений.
Так, вместо второй спальни они спроектировали кабинет открытого типа с раздвижными деревянными перегородками, а вместо гостевого санузла – постирочную.
«Задача была визуально отделить общественное пространство гостиной и частные зоны. Поэтому мы сделали прихожую и гостиную-кухню светлыми, напоминающими современную галерею, а все остальными помещения оформили в темный цвет. Начало коридора выкрасили в белый цвет, а его конец – в черный. Цвет служит своего рода ориентиром для гостей, обозначающим приватную зону», - рассказывают дизайнеры.
Интерьер квартиры – идеальный фон для современного искусства: минималистский, монохромный, с четким внутренним ритмом и, благодаря ничем не декорированным панорамным окнам, великолепным освещением. При его оформлении авторы проекта сделали ставку на минималистский дизайн, монументальные формы, строгие геометричные объемы и отсутствие декора. Предметы обстановки существуют как арт-объекты.
В общей гостиной это композиция из лаконичной кухни с черным фасадом и стола из цельного камня. Стол и напольное покрытие под ним выполнено из одного и того же мраморного слэба с активным рисунком. Такой прием позволил реализовать прямоугольную каменную форму в четырех плоскостях, выделить обеденную зону и объединить гостей за столом. В спальне декоративным акцентом служат строгие деревянные панели, в кабинете – раздвижные перегородки с ритмичной раскладкой, а в санузле – эффектное каменное панно-«бабочка» во всю стену. Но главное в этом интерьере – работы актуальных художников, экспозиция, которая будет постоянно меняться и наполнять пространство новыми смыслами.
Комплектация объекта
Строительные и отделочные материалы и изделия
Раздвижные перегородки, поставщик Deli
Межкомнатные двери, поставщик Union
Финишная отделка стен, краска Little Greene
Пол, инженерная доска, поставщик Finex
Плитка Porcelanosa
Свет, поставщики Glode, «МДМ-Лайт», BoConcept, Flos, Centrsvet
Сантехника раковина Montebianco (модель Pisa); смеситель и душевой комплект Warmer (модель Black Line Cube)
Мебель
Гостиная диван Boca Room (модель Navi), обеденные стулья, BoConcept, стол из искусственного камня сделан на заказ по чертежам авторов проекта
Кухня «ЗОВ»
Кабинет рабочий стол и стул BoConcept, кресла Cosmorelax
Спальня кровать, тумба, стеновые панели сделаны на заказ по эскизам автора проекта
Оборудование
Электроустановочные изделия Berker, серия Q.3
Фотограф: Сергей Красюк
Французская квартира с искусством на Остоженке
Многоуровневый дом, встроенный в холм О профессии «ландшафтный архитектор», образовании и специфике частных и общественных ландшафтных проектов говорим с Иваном Бугаевым…





















Созидание как эволюция: офис бюро «Крупный план»
Равновесие, цельность и гармония как результат работы архитектора…
Ландшафтный архитектор. Инженер. Проектировщик. Логик.
«Мода в интерьере — это зеркало нашего быта»...
Храм в городе 
11
22
33
44
55
66
77
88
99
1010 