Специалисты бюро Marion Studio спроектировали квартиру в ЖК Depre для большой семьи, которая по функционалу и атмосфере напоминает загородный дом. В качестве основной линии они выбрали американскую классику с характерным для нее традиционным дизайном, комфортными текстурами, светлой натуральной палитрой. В интерьере нет ничего кричащего, броского, только удобство, приятные тактильные ощущения, спокойствие и умиротворение. Как раз то, о чем мечтали заказчики.
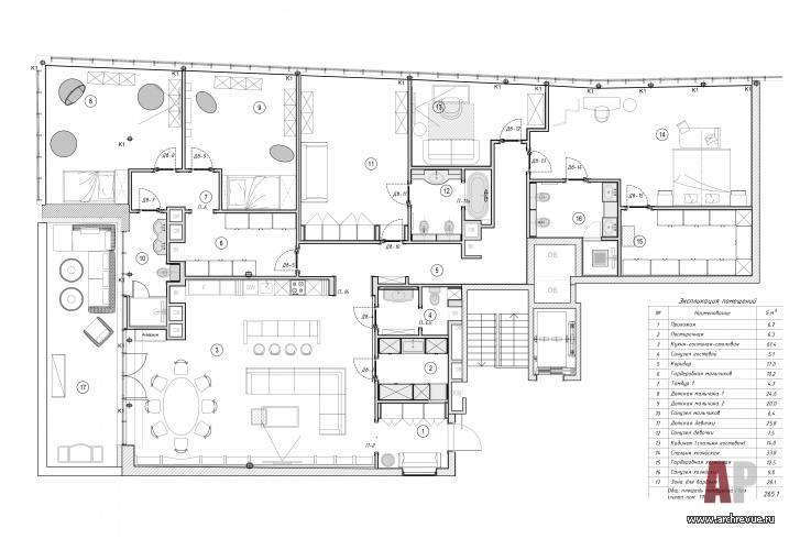
Квартира площадью 265 кв. м рассчитана на проживание большой семьи – родителей, двух старших сыновей-школьников и маленькой дочери. Исходный объем авторы проекта разделили на две части: общую зону для семейного досуга и выстроенные в линию приватные помещения. Открытое парадное пространство включает гостиную, столовую и кухню и имеет выход на террасу.
«И, хотя площадь общей зоны и составляет более 60 кв. м, нам пришлось изрядно потрудиться, чтобы гармонично разместить большой угловой диван, обеденный стол на шестерых и кухонную группу с большим функционалом. Кроме того, квартира расположена на последнем этаже под плоской кровлей с опиранием на балки, и ситуацию осложняли невысокие потолки, спроектированные застройщиком, которые не добавляли красоты парадному помещению», - отмечает дизайнер Маргарита Мельникова. Все жилые помещения размещены по другую сторону от общей зоны, вдоль фасада: при каждой спальне сделана своя ванная комната. А главная спальня и детская зона мальчиков имеет свои гардеробные. В комнате девочки и в прихожей предусмотрены вместительные встроенные системы хранения.
Заказчики очень любят зеленый цвет, поэтому в интерьере так много его оттенков. Помимо прочего свежие природные оттенки ассоциируются с загородной жизнью, работают на создание атмосферы семейной резиденции в центре города. С оттенками зеленого прекрасно гармонирует бежево-коричневая палитра, она утепляет интерьер, делает его светлым и солнечным.
В оформлении дизайнеры использовали материалы с приятной текстурой: текстильные обои, натуральные ткани, много натурального дерева, в том числе деревянные полы… Интерьер получился тактильным, теплым, гостеприимным. Завершенность ему добавляют картины, ткани насыщенных оттенков, винтажные вазы и другие аксессуары. Квартира оснащена современными инженерными системами, с помощью «умного дома» можно управлять независимой охранной сигнализацией, видеонаблюдением, приточно-вытяжной вентиляцией, кондиционированием и увлажнением, акустикой и освещением. Интегрировать их в пространство с невысокими потолками было непростой задачей, выходом стало использование потолочных кессоннов, за которыми спрятана вся техническая начинка.
Комплектация объекта
Строительные и отделочные материалы и изделия
Изделия из дерева, панели-буазери, двери, компания «Мебель-Интерьер-Сервис»
Изделия из зеркал, компания «Папа Карло»
Дверная и мебельная фурнитура Salice Paolo, поставщик EMPORIO.ru
Обои Colefax & Fowler, Ralph Lauren, Phillip Jeffries
Плитка Self Style, Ceramiche Grazia, Original Style
Свет Corbett Lighting, Generation Lighting, Robert Abbey, Visual Comfort & Co, Eichholtz
Сантехника Devon & Devon, Villeroy & Boch
Искусство, MustART, Carre d'artistes
Мебель
Гостиная диван Century Furniture, журнальный столик Theodore Alexander; библиотека, на заказ, по эскизам авторов проекта
Столовая обеденный стол, стулья Century Furniture
Кухня кухонная мебель Albero Arte, барные стулья Vanguard Furniture
Кабинет рабочий стол Gnoato Fratelli, стул Bernhardt
Спальня кровать и банкетка Gnoato Fratelli, туалетный столик DOM Edizioni, кресло JNL
Встроенная мебель на заказ – изготовление «Мебель-Интерьер-Сервис»
Оборудование
Оборудование кухни, встроенная техника Miele
Фотограф: Сергей Красюк
Стилист: Дарья Соболева
Классическая резиденция в Юрмале
Французская квартира с искусством на Остоженке О профессии «ландшафтный архитектор», образовании и специфике частных и общественных ландшафтных проектов говорим с Иваном Бугаевым…
































Созидание как эволюция: офис бюро «Крупный план»
Равновесие, цельность и гармония как результат работы архитектора…
Ландшафтный архитектор. Инженер. Проектировщик. Логик.
«Мода в интерьере — это зеркало нашего быта»...
Храм в городе 
11
22
33
44
55
66
77
88
99
1010 