Этот необычный дом, в котором соединились элементы традиционного шале, индустриального лофта и мотивы русских сказок, дизайнер Ирина Шевченко оформила для очень близких ей людей. Семейная пара с двумя детьми любит и умеет отдыхать: принимать гостей, устраивать мероприятия, веселиться в русских традициях. Чтобы быть ближе к природе, они решили построить дом на Новой Риге у реки из бетона и дерева в духе брутальных нордических альпийских построек, но с русским характером.
Сложную архитектуру дома определил рельеф участка, расположенного на берегу реки и имеющего уклон около 4 метров. «Я подключилась к проекту на стадии возведения стен второго этажа, в наследство от предыдущей команды архитекторов нам досталась коробка с внутренними перегородками и большим количеством окон, не совсем эргономичная уже утвержденная планировка и масса инженерных проблем». Переделывать за другими всегда сложнее и кропотливее, поэтому работа началась с филигранной перекройки: сноса крадущих воздух стен, расширения проемов и более рационального освоения пространства. Например, при расчистке цокольного этажа были обнаружены несколько замурованных в бетон объемов, за счет которых Ирине удалось в 3 раза увеличить площадь СПА-зоны!
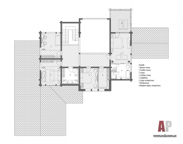
Перепланировка позволила дизайнеру уйти от мелкой нарезки, сделать большие открытые объемы и выстроить эффектные видовые перспективы. Пространство первого этажа организовано вокруг двухсветной гостиной-столовой площадью 125 кв. м. Несмотря на внушительную площадь помещение не выглядит скучным и монотонным за счет грамотного зонирования с использованием разбивки по горизонтали и вертикали, а также разных визуальных фактур и активного цвета.
Помимо общей зоны на первом этаже находятся две гостевые спальни и технические помещения. Второй этаж занимают хозяйские помещения, а в цоколе спроектирован тренажерный зал и полноценный домашний СПА-комплекс с хаммамом, комнатой отдыха и бассейном. За счет перепада высот рельефа бассейн получился видовым, с панорамными окнами и выходом на открытую террасу.
Заказчики мечтали о загородной резиденции для отдыха и общения с друзьями и хотели яркий, воздушный и очень тактильный интерьер с непринужденной сельской атмосферой. Им нравились заброшенные тосканские фермы, альпийские шале и лофты в стиле бохо: креативные, брутальные и фактурные. В итоге проект сложился из множества впечатлений и ассоциаций, больше всего он напоминает лоскутное одеяло или искусно сделанный печворк, где каждый элемент не случаен.
Крупные яркие принты, грубые фактуры амбарных досок, бетона, листов горячекатанного металла сочетаются здесь с почти не тронутым декором открытым брусом, струганной доской, стеклянными лофтовыми перегородками, пестрыми диванами. И этот контраст будоражит воображение и переносит из серых будней в мир, полный скрытых смыслов и образов.
Комплектация объекта
Строительные и отделочные материалы и изделия
Декоративная финишная отделка стен, «Студия Марата Ка»
Отделка стен, масло для дерева Osmo
Лестница, компания «5 Лестниц»
Двери, поставщик DoorsBrothers
Лофт-перегородка, поставщик Fun house store
Амбарная доска, поставщик Greyboard
Облицовочный кирпич ручной формовки Klinkerwerke Muhr
Обои Factura Wallpaper, WonderWall
Чугунные плиты ХIХ века, поставщик «Мастерские Братьев немцеВ»
Плитка Natucer, Peronda, 41zero42, Equipe Ceramicas, Mutina
Керамогранит, поставщик Italon
Камин топка Palazzetti
Свет Eichholtz, Loft Designe, Kare Design
Текстиль, поставщики «Икеа», Zara Home, Home Story
Декор, «Икеа», Zara Home, Loft Designe
Зеркала, бра, поставщик Kare Design
Сантехника чугунная ванна и смеситель Recor
Тарелки, «Мастерская Даминовой Флёры»
Мебель
Гостиная диван «8 марта», столики «Артефакт»
Столовая стулья, кресла Loft Designe
Кухня Caprigo, стулья Loft Designe
Главная спальня мебель, Loft Designe
Гостевая спальня кровать «Икеа», столик Zara Home
Детская кровать «Икеа», столик, пуфик Zara Home
Мебель для ванных комнат Caprigo и Loft Designe
Оборудование
Электрофурнитура Salvador и Bironi
Фотограф: Антон Лихтарович
Семейная квартира на Мосфильмовской
Одноэтажный дом на берегу реки Ахтубы Поиски нового офиса привели владельцев архитектурного бюро «Крупный план» к неожиданному, но очень значимому шагу – приобретению особняка - объекта культурного наследия XIX века...









































Созидание как эволюция: офис бюро «Крупный план»
Равновесие, цельность и гармония как результат работы архитектора…
Ландшафтный архитектор. Инженер. Проектировщик. Логик.
«Мода в интерьере — это зеркало нашего быта»...
Храм в городе 
11
22
33
44
55
66
77
88
99
1010 
Несмотря на всю мультифактурность этот дом очень цельный. В нем 6 спален (4 для членов семьи и 2 гостевые), и они никогда не пустуют. Здесь очень любят и умеют встречать гостей и веселиться в русских традициях. Все помещения активно и ежедневно используются обитателями дома, включая бассейн, тренажерный зал и хаммам. Мы даже шутим, что строили шале с русским характером в духе сказок Пушкина посреди холодного серого морока, а по функционалу получился небольшой детокс-отель. Но я знаю, что жизнь современного успешного человека полна ежедневного стресса и очень интенсивна. Возвращаясь домой, он должен за достаточно короткий срок переключиться и отдохнуть. Поэтому все мои интерьеры нацелены на то, чтобы дома человек ощущал себя очень далеко от работы, где-то на спа-weekendе.