Заказчики дизайнера Елены Туйсузян купили типовой многоуровневый дом на берегу Черного моря. Его архитектура в целом всех устраивала: роскошное панорамное остекление, центральный двухсветный объем с почти восьмиметровыми потолками, крупная нарезка помещений. Даже фасад в современном стиле, отделанный просто и лаконично, не особенно нуждался в изменениях Его лишь освежили и дополнили стеклянными ограждениями…
Внутри дизайнер внесла несколько небольших, но важных корректировок: изменила форму лестницы, превратив ее в парящую конструкцию на металлокаркасе с тонкими металлическими струнами, увеличила жилую площадь за счет присоединения балконов и лоджий и сделала акцент на столовую группу с витражным остеклением. Стилистически заказчики тяготели к современному интерьеру с мягкими текстурами и приятными взгляду формами. Дизайнер спроектировала респектабельный интерьер с парадными перспективами, изящными деталями, отсылающими к эпохе ар-деко, и потрясающим солнечным настроением.
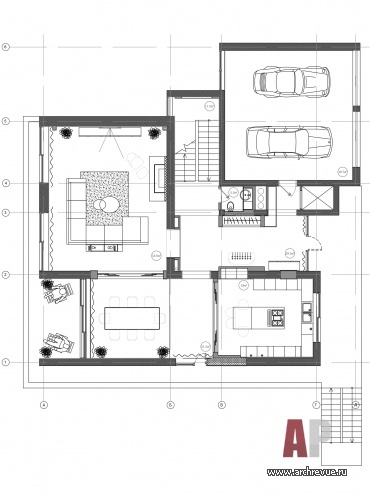
Пространство дома площадью 750 кв. м организовано на четырех уровнях. Главное помещение и «сердце» дома – двухсветная столовая с огромным витражным окном и морским пейзажем, расположенная на первом этаже. К ней примыкают гостиная с выходом на террасу, кухня и лестничный холл. В соседнем крыле располагается гараж и хозяйственные помещения. Стеклянные перегородки визуально объединяют парадные зоны, обеспечивают хороший обзор от входной группы до гостиной.
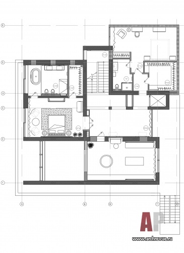
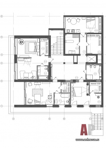
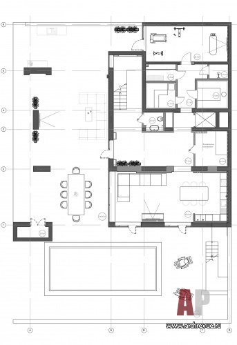
На минус первом этаже дизайнер спроектировала гостевую комнату с гардеробной, а также две детские комнаты со своими игровыми и рабочими зонами, комнату няни и постирочную. Хозяйские помещения (спальня с ванной комнатой и гардеробной с внутренним балконом) разместились на втором этаже. Здесь же удалось обустроить еще одну гостевую спальню со своей ванной, для чего к жилой площади присоединили балкон с видом на морские дали. Весь минус второй этаж отдан под зону отдыха (сауну, хаммам, тренажерный зал и кухню-столовую), так как оттуда есть возможность выхода на террасу и к открытому бассейну. «Особых сложностей в планировочном решении не было, архитектура здания сама диктовала свои условия, которые нас вполне устраивали, - отмечает автор проекта. – Огромным преимуществом коттеджа было наличие в каждом помещении витражных окон. Одно из них (в гостевой спальне) даже пришлось закрыть. Расстановка мебели также была очевидна: место обеденного стола – в зале со вторым светом, диванной группы – напортив парных панорамных витражей, а ванной в главном санузле – только возле большого окна!»
«Нашей задачей было спроектировать для заказчиков настоящий Дом мечты», - говорит дизайнер о выборе концепции интерьера. Поэтому в оформлении ставка сделана на материалы с теплыми и благородными текстурами. На полу уложена паркетная доска из светлого дуба, ее модули имеют необычную форму в виде многогранников, которые складываются в оригинальный цветочный орнамент.
Восьмиметровая стена в столовой оформлена зеркальным панно, набранном из прямоугольных секций разного размера и вида, смонтированных на металлическом каркасе. «Нам хотелось облегчить монолитную поверхность стены и добиться разных бликов от витражного окна, поэтому мы взяли черные, бронзовые и обычные зеркала и сделали их доминантой двусветного пространства», - отмечает автор проекта. В остальных помещениях также присутствуют сдержанный шик и изысканная респектабельность. Особенно важную роль играют потолочные светильники: они масштабируют пространство, добавляют цвета и усложняют лаконичные по наполнению интерьеры. А в случае столовой – роскошная люстра из оранжевого стекла еще и создает невероятной красоты блики, отражаясь в зеркальном панно.
Комплектация объекта
Строительные и отделочные материалы и изделия
Декоративное оформление стен, краска Sherwin-Williams; обои Yana Svetlova Wallcoverings
Лепной декор Orac Decor; гипсовое цветочное панно GkerStudio
Стеклянные перегородки, Rimadesio
Свет Serip, Lasvit, Il Pezzo Mancante, Garda Decor, Karman, Decorative Crafts
Ковры, поставщик Dovlet House
Зеркала Garda Decor
Сантехника ванна Falper, раковины Milldue, инсталляции Geberit
Мебель
Гостиная диван Longhi, кресла Minotti, журнальный столик Bamax, тумба под ТВ Frato
Столовая обеденный стол Casamilano, стулья Malerba
Кухня Castagna Cucine, барные стулья Brabbu
Спальня кровать Living Divani, прикроватные тумбочки, столик Baxter, кресла Minotti
Детские кровати CorteZARI
Гардеробная комната туалетный столик Baxter; шкафы и пуфик изготовлены на заказ
Мебель для ванных комнат Milldue
Оборудование
Оборудование кухни Miele
Фотограф: Михаил Чекалов
Стилист: София Калбазова
Фактурная квартира с террасой на крыше
Светлый дом с рациональной архитектурой Великое наследие и возрождение Храмового зодчества в России – поговорим об этом с архитектором Дмитрием Пшеничниковым, основателем архитектурного бюро «Дмитрий Пшеничников и Партнеры»






































Ландшафтный архитектор. Инженер. Проектировщик. Логик.
«Мода в интерьере — это зеркало нашего быта»...
Храм в городе
Три кита современного стиля
Проект: Аэропорт «Кавказ» 
11
22
33
44
55
66
77
88
99
1010 
Самым сложным этапом в работе над проектом было изготовление лестницы, так как она «замыкает» все этажи, а струны-перила идут насквозь от самого нижнего этажа до верха. Каждую ступень пронзают три струны, они переходят на ступень другого марша, и так по всем этажам. Технологически сначала собирался металлокаркас, а после шла облицовка деревом