Для архитектора Никиты Капитурова, руководителя мастерской Snegiri Architects очень важен вопрос интеграции здания в окружающую среду, поэтому все его проекты выступают ее гармоничным продолжением. Это небольшой дом в Ленинградской области среди вековых елей – тому наглядное подтверждение. Давний заказчик Никиты обратился с пожеланием построить небольшой гостевой дом, в котором он мог бы останавливаться, приезжая в гости к дочери и внуку.
Участок был превосходны: рядом с рекой, в лесу. Чтобы сохранить связь природы и интерьера, архитектор спроектировал небольшой павильон с ленточным остеклением и дощатой террасой по периметру и бережно интегрировал его в природный ландшафт. Центральный объем, в котором расположена гостиная, застеклен с обоих фасадов и открывает вид на лес, а сквозь террасу буквально прорастают ели…
Дом построен по каркасной технологии с использованием фиброцементных панелей, имитирующих текстуру камня, а также безрамного ленточного остекления. Такой вариант позволил уложиться в рекордно быстрые сроки: на проектирование, стройку и создание интерьера ушло всего шесть месяцев.
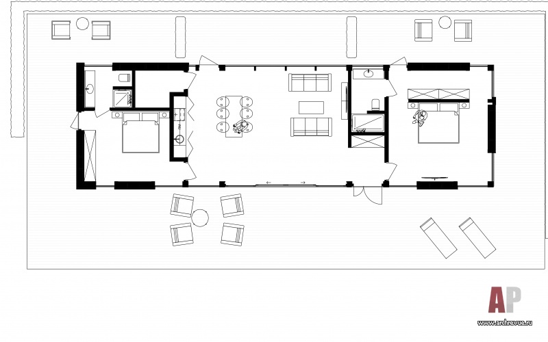
Планировка дома площадью 100 кв. простая и понятная. Постройка имеет форму вытянутого прямоугольника, а в основе организации внутреннего пространства лежит принцип симметрии. Центральный объем занимает просторная гостиная-кухня-столовая. С обоих фасадов он застеклен панорамными окнами. В теплое время года окна полностью открываются, и интерьер сливается с экстерьером.
С обеих сторон к общей гостиной примыкают спальни – хозяйская и гостевая. У каждой из них есть свой выход на территорию и отдельная приватная зона с гардеробной и санузлом внутри.
Интерьер служит прямым продолжением архитектуры дома. Стеклянные стены, плиты с фактурой серого камня на полу и потолках, много натурального дерева – такова декоративная основа пространства, задача которого раствориться в окружающем пейзаже. Интересное решение использовано в оформлении кухонной зоны: все полки и встроенная техника скрыты за монолитным деревянным фасадом.
В него же встроены двери-невидимки, ведущие в спальню и техническое помещение. Фартук и столешница кухни облицованы черным камнем, который перекликается с темными вертикальными балками конструкции дома и добавляют интерьеру строгости. Жесткую геометрию подчеркивают также подвесные светильники-шины. Практически вся мебель, а также стеновые панели и двери были выполнены индивидуально для этого проекта. Декоративными акцентами служит красный текстиль в обивке мягкой мебели гостиной и оформлении кроватей.
Комплектация объекта
Строительные и отделочные материалы и изделия
Облицовка кровля и фасада, фиброцементные панели Equitone (фасад – Linea; торцы и свесы кровли – Tectiva)
Террасная доска и деревянный каркас здания в отделке маслом Leinos Naturfarben
Финишное оформление стен в интерьере, краска Little Greene
Керамогранит Keraben (коллекция In time)
Дверные ручки Linea Cali (коллекция Corner)
Свет Artemide (модель Tizio), Marset, Aromas del Campo, SWG
Аксессуары, декор, поставщик Kare Design
Постельное белье и пледы, Calvin Klein
Сантехника раковины ArtCeram, смесители Franke
Мебель
Гостиная диваны Bonaldo, столик-пробка Champagne France
Столовая стол и стулья Unika Møblär
Кухня, на заказ
Спальня тумба Osobika, стулья Unika Møblär
Гостевая спальня, на заказ
Санузлы, тумбы из искусственного камня Corian, производитель DuPont
Оборудование
Радиаторы Arbonia
Фото: Александра Курлыгина
Интеллигентная квартира на Патриарших прудах
Квартира в стиле natural contemporary О профессии «ландшафтный архитектор», образовании и специфике частных и общественных ландшафтных проектов говорим с Иваном Бугаевым…
























Созидание как эволюция: офис бюро «Крупный план»
Равновесие, цельность и гармония как результат работы архитектора…
Ландшафтный архитектор. Инженер. Проектировщик. Логик.
«Мода в интерьере — это зеркало нашего быта»...
Храм в городе 
11
22
33
44
55
66
77
88
99
1010 