История этого проекта длилась семь лет, год из них заняло проектирование, а шесть – строительство. Зато теперь архитектор Александра Федорова называет этот дом на побережье Азовского моря одним из своих самых любимых проектов, в котором ни разу не хотелось ничего изменить. Семейная пара выбрала участок площадью около гектара на берегу лимана вблизи Таганрога и обратилась в бюро с желанием купить готовый проект виллы.
Но архитектор предложила им спроектировать свой собственный дом. Участок находится на живописном склоне, в советское время здесь была турбаза, и часть инфраструктуры хорошо сохранилась. Большие деревья, террасы и лестницы, ведущие к воде, и отсутствие соседей поблизости давали возможность максимально открыть виды из окон, сделать дом практически стеклянным.
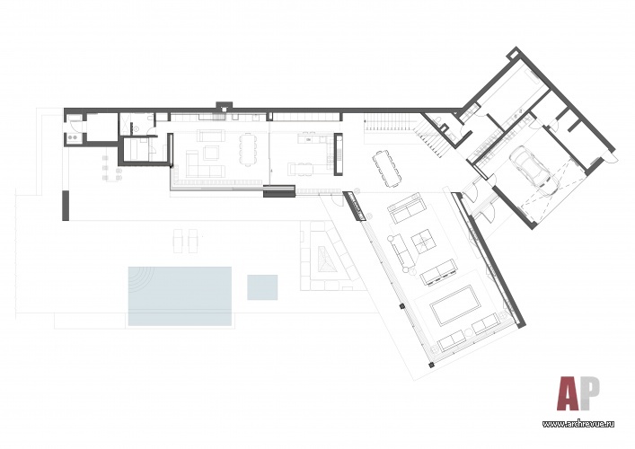
Дом имеет выразительную, подчеркнуто минималистскую архитектуру, он набран из трех объемов, повернутых относительно друг друга в пространстве. Активную, динамичную геометрию подчеркивают контрастные материалы: темный и светлый керамогранит и натуральный известняк, акцентное дерево. Благодаря Г-образной форме постройки приватная жизнь скрыта от посторонних глаз, почти все помещения обращены на воду, а терраса и бассейн весь день купаются в лучах солнца. Таким образом дом максимально ориентирован на природу и позволяет вести уеденный образ жизни.
Пространство дома площадью 800 кв. м организовано на трех уровнях. Главный вход находится между двух нижних объемов, под навесом второго этажа. На первом этаже расположены все общественные помещения: по сути, это open space, где входная группа, лестничный холл с парящей лестницей, гостиная с бильярдом, столовая с камином и кухня перетекают друг в друга.
Есть выход на террасу с панорамным остеклением: если раздвинуть стеклянные стены (витражи полностью отъезжают), крытая терраса становится частью улицы. Второй этаж занимает меньшую площадь, в нем спроектированы приватные помещения: хозяйская спальня, две гостевые, где останавливаются взрослые дети заказчиков, а также спортзал и домашний кинотеатр. Из-за того, что дом вписан в склон, на втором этаже также сделана большая открытая терраса с видом на воду, где удобно принимать солнечные ванны. В цокольной части находятся все технические помещения, в том числе эллинг. Все удобно, практично и максимально отражает образ жизни хозяев.
В своих проектах архитектор Александра Федорова всегда стремится соблюдать единство оформления интерьера и фасадов. Здесь так же материалы с фасада перетекают внутрь: светлый известняк на полу, крупноформатный керамогранит с фактурой черного металла, деревянные панели, акцентный мрамор – вот, пожалуй, и весь набор выразительных средств, который формирует лаконичный и самодостаточный интерьер.
Центральный элемент интерьера, безусловно, лестница – парящая над полом конструкция, напоминающая перевернутую перголу, - выполнена из металла и облицована темным деревом. Мебель выбрана проверенных брендов, с нейтральным дизайном, оптимальная для комфортных минималистских интерьеров. Красота природного пейзажа играет ключевую роль в интерьере, и ничто не отвлекает от ее созерцания.
Комплектация объекта
Строительные и отделочные материалы и изделия
Декоративная финишная отделка стен, краски, Benjamin Moore
Двери Bluinterni
Керамогранит Kerlite, Laminam
Свет Vistosi, Panzeri, Pianca, Globo, Delta Light, Lindsey Adelman Studio, Vibia, Okha, Bocci
Сантехника Antonio Lupi, Duravit, Alessandro Isola, Villeroy & Boch; аксессуары Emco; смесители, душевые лейки Gessi
Мебель
Корпусная и мягкая мебель Minotti, Poliform, B&B Italia, Walter Knoll, Baxter, Cattelan Italia, Poltrona Frau, Gallotti & Radice
Мебель индивидуального изготовления
Кухня Eggersmann
Оборудование
Система «умный дом» GIRA
Оборудование кухни, техника Liebherr, Miele
Фотограф: Илья Иванов
Орфография и пунктуация авторов сохранена
Превосходно! Есть образ, есть гармония, есть ощущение близости большой воды.
Шале на Клязьме
Загородный дом в стиле эко-шик Великое наследие и возрождение Храмового зодчества в России – поговорим об этом с архитектором Дмитрием Пшеничниковым, основателем архитектурного бюро «Дмитрий Пшеничников и Партнеры»






































Ландшафтный архитектор. Инженер. Проектировщик. Логик.
«Мода в интерьере — это зеркало нашего быта»...
Храм в городе
Три кита современного стиля
Проект: Аэропорт «Кавказ» 
11
22
33
44
55
66
77
88
99
1010 