На создание этого интерьера дизайнеров Кирилла и Анну Дунаевых («Бюро № 11») вдохновил пейзаж за окном. Квартира площадью 160 кв. м расположена на первом этаже нового жилого дома с современной архитектурой в Новосибирске. Ее панорамные окна выходят в лес, отчего создается ощущение, будто находишься в собственном доме или в удаленном от цивилизации эко-отеле.
Идею впустить природу внутрь и создать атмосферу неспешной загородной жизни заказчики поддержали с огромным энтузиазмом. Молодая пара с двумя детьми ведут активный образ жизни, любят спорт, путешествия и хотели получить интерьер, в котором много света, воздуха и простора. Из материалов им также были близки натуральные, «честные» фактуры, особенно дерево и камень: лаконичные, тактильные, с живописным природным рисунком.
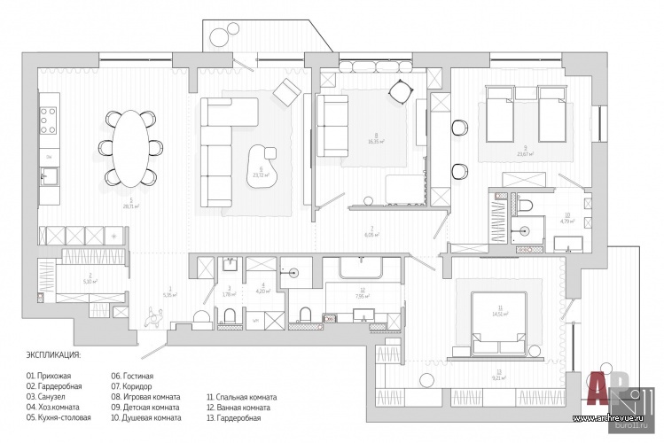
Исходная планировка квартиры была на редкость удачной: правильная геометрия, минимальное количество несущих конструкций, несколько грамотно расположенных мокрых зон, потолки высотой 3,3 метра и роскошные окна в пол. Прежде всего дизайнеры разделили объем на две части: приватную и общественную.
В приватной спроектировали мастер-спальню со встроенной гардеробной и своей ванной комнатой, общую для двоих сыновей спальню и детскую игровую. В общественной зоне они объединили кухню с гостиной и получили огромное светлое пространство с панорамными окнами и выходом на террасу. Притом, чтобы пространство выглядело более целостным, дизайнеры воспользовались осевой композицией и разместили рабочую поверхность кухни, столовую и диванную группу на одной линии. При входе они выделили мини-постирочную с гостевым санузлом, а также гардеробную для верхней одежды. В итоге получилось все так, как и хотели заказчики: свободные, не загроможденные пространства, много воздуха, света и прекрасные природные перспективы, воспринимающиеся как продолжение интерьера.
Интерьер выглядит как часть природного пейзажа. Светлое дерево, фактура камня, натуральная слюда и обои, имитирующие кору деревьев – вот основные детали этого лаконичного интерьера. Цветовая палитра также выбрана максимально комфортная: серые, бежевые и коричневые оттенки с изумрудными и брусничными акцентами.
Очень интересно оформлена кухня. Чтобы не загромождать пространство, дизайнеры решили отказаться от навесных кухонных шкафов и вместо них сделать каменное панно с активным рисунком мрамора Calacatta – своего рода увеличенный в размерах кухонный фартук. Для большего эффекта по периметру конструкция подсвечена светодиодной лентой. В спальне внимание привлекает проходная гардеробная с макияжным столиком. Входы в них организованы по обе стороны от кровати, а шкафы для хранения спрятаны за изголовьем, облицованным серыми лакированными панелями.
Комплектация объекта
Строительные и отделочные материалы и изделия
Обои Thibaut
Керамогранит Sant Agostino
Свет Bontempi (модель Pandora), Artemide (модели Dioscuri wall, La petite, Tolomeo table)
Ковры, поставщик «Мир ковров»
Аксессуары, поставщики BD Barcelona Design, H&M Home
Сантехника Cristina Rubinetterie, приставной столик Duravit
Мебель
Гостиная диван Alf DaFre (модель California), журнальные столики Cattelan Italia (модель Atollo) и Vitra (модель Leather side tables), кресло Natuzzi (модель Viaggio)
Столовая стол Bontempi (модель Podium), стулья Alf DaFre (модель Karol)
Кухня – изготовление фабрика «Камеа»
Спальня кровать Alf DaFre, прикроватные столики Alf DaFre (модель Hobby), Calligaris (модель Atollo), пуф Vitra (модель Visiona Stool)
Детская комната кровати Cilek (модель Trio)
Детская игровая медведь напольный Vitra (модель Resting bear) кресло Bonaldo (модель Lock)
Фотограф: Сергей Красюк
Декоратор: Дарья Соболева
Светлая квартира в скандинавском стиле
Элегантная квартира для большой семьи О профессии «ландшафтный архитектор», образовании и специфике частных и общественных ландшафтных проектов говорим с Иваном Бугаевым…




























Ландшафтный архитектор. Инженер. Проектировщик. Логик.
«Мода в интерьере — это зеркало нашего быта»...
Храм в городе
Три кита современного стиля
Проект: Аэропорт «Кавказ» 
11
22
33
44
55
66
77
88
99
1010 