Жилой дом на склоне холма задумывался архитектором Дмитрием Петровом как арт-галерея с предметами современного искусства. Двухэтажная белоснежная постройка из бетона, металла и стекла напоминает абстрактный скульптурный объект, появившийся среди типовой малоэтажной загородной застройки. Ее архитектура и внутренне наполнение способствуют созерцанию и медитативному восприятию действительности, а арт-объекты наполняют пространство эмоциями.
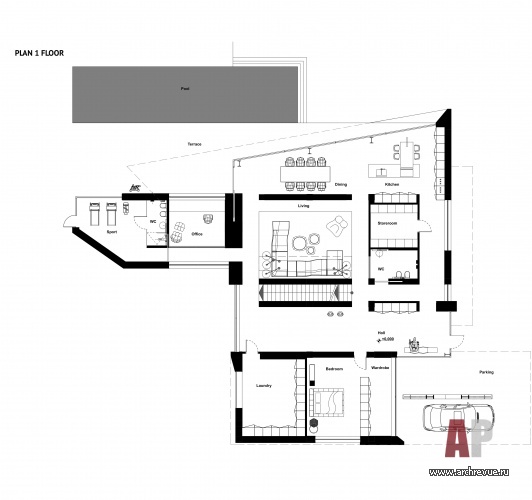
Дом площадью 780 кв. м. имеет три уровня: два надземных и один подземный этаж. Пространство дома организовано по принципу галереи с открытыми объемами и плавно перетекающими зонами. В подземном уровне находятся помещения для досуга и отдыха (домашний кинотеатр, спортивный зал), а также большая гардеробная. Смысловое ядро первого этажа – камерная гостиная со вторым светом над диванной группой, куда попадает естественный свет со стеклянной крыши.
К ней примыкает кухня-столовая с панорамным видом на бассейн и участок. Второй этаж – тихая зона, где расположены спальни и библиотека со световым фонарем. Три уровня соединяет одномаршевая лестница, зажатая между двумя стенами, стеклянный фонарь над ней создает ощущение дроги к свету.
Интерьер дома выполнен в современном минималистском стиле. В его оформлении использованы те же материалы, что и на фасаде: бетон, стекло, металл, камень и дерево. Благодаря единству отделки концептуальное пространство выглядит цельным, крупные формы и большие цветовые заливки масштабируют пространство, создают правильное ощущение объема.
Но все же главные герои этого интерьера – арт-объекты работы современных художников, они придают частному дому сходство с музеем и наполняют его скрытыми смыслами.
Комплектация объекта
Строительные и отделочные материалы и изделия
Остекление, панорамные витражи, окна, Reynaers
Отделка фасада штукатурка Stomix (STO)
Внутренняя отделка стен, краска Stomix (STO, Satin mat)
Двери, Rimadesio
Раздвижные перегородки, Poliform
Паркет, поставщик Bolefloor
Свет Davide Groppi, Vibia
Ковры, Limited Edition
Сантехника Agape
Мебель
Гостиная диван B&B Italia (модель Bend), пуфы-столики B&B Italia (модель Fat–Fat), кресло B&B Italia (модель UP), деревянный столик Poliform (модель Dama)
Кухня Poliform (модель Twelve)
Кабинет письменный стол Rimadesio, кресло B&B Italia (модель Husk)
Спальня кровать B&B Italia
Спальня гостевая кровать, прикроватный столик B&B Italia
Фотограф: Олег Бажура
Орфография и пунктуация авторов сохранена
Такой роскошный дом и такая плохая съемка. Очень жаль. Такие дома встречаются не часто у нас.
Красивый дом, автор явно очарован тенденциями современной мировой архитектуры. И фасад - так просто для кино и фото. Жаль,что не видно, как дом посажен на участок. Это было бы важно для понимания "про среду", о которой беспрестанно говорят архитекторы....Наверно это ПК имел в виду про съемку, я, правда, добавлю, что в интерьере тоже нет пространства совсем. Наверно фотограф специализируется на предметной съемке, а здесь нужгна и интересна пространственная. Это же архитектура- интерьер, то есть работа с пространством, а не предметом....В гостиной, например, одни диваны. Хорошие, это да, но не в них же суть этой гостиной....
Двухэтажная семейная квартира в Нижнем Новгороде
Квартира в графитовой палитре для холостяка О профессии «ландшафтный архитектор», образовании и специфике частных и общественных ландшафтных проектов говорим с Иваном Бугаевым…






























Равновесие, цельность и гармония как результат работы архитектора…
Ландшафтный архитектор. Инженер. Проектировщик. Логик.
«Мода в интерьере — это зеркало нашего быта»...
Храм в городе
Три кита современного стиля 
11
22
33
44
55
66
77
88
99
1010 