Для семейной пары с ребенком дизайнер Мария Губина оформила монохромную квартиру с отсылкой к минимализму и скандинавским интерьерам. Заказчики хотели простой и лаконичный интерьер, но необычный и не скучный. Несмотря на то, что квартира находится в Подмосковье, они попросили не акцентировать внимание на природном окружении и минимально использовать дерево с натуральной фактурой, а сделать ставку на мебели с эмалевыми или лаковыми финишами.
В итоге получился интерьер с ровными гладкими поверхностями, минимумом деталей и сдержанной палитрой в оттенках серого цвета.
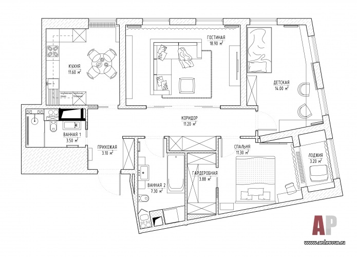
Квартира площадью 91 кв. м расположена в новом жилом комплексе в Сколково. Изначально она имела форму трапеции, поэтому дизайнеру пришлось серьезно поработать над планировкой, чтобы сделать пространство гармоничным. Придать помещениям правильную геометрию помогли встроенные шкафы и гардеробная, с их помощью дизайнер замаскировала острые углы.
Чтобы разместить на небольшой площади спальню, детскую, две ванные комнаты, изолированную кухню и просторную гостиную, она не стала присоединять центральный коридор к общей зоне, оставив транзитный проход, который разделят объем на общую и приватную части. Проходную часть квартиры от гостиной удалось отделить при помощи стеклянных перегородок: обычно они открыты, но при желании раздвижные конструкции можно закрыть, задвинуть шторы и полностью изолировать гостиную от коридора.
Чтобы не загромождать пространство, дизайнер применила ряд декоративных решений: использовала встроенные шкафы с лаконичным оформлением, а также сделала двери в гостевую ванную и на кухню откатными.
Интерьер получился цельным, выдержанным, без лишних деталей, с логично связанными между собой жилыми помещениями. В нем, по сути, отсутствуют доминантные предметы, что создает эффект комфортного, фонового пространства. Его образ строится на сочетании разных оттенков серого: от почти белого до темного антрацита. Некоторые элементы для контраста сделаны черными: в частности, рамы стеклянных перегородок, которые создают строгий графичный рисунок.
На стенах – однотонная краска, полотна дверей и фасады встроенной мебели – гладкие, пол выложен крупноформатным керамогранитом… Обилие стекла и зеркал расширяет пространство, корректирует изначально неправильную геометрию и добавляет в интерьер света.
Самая большая сложность была с проектированием и монтажом стеклянных перегородок. «Нам обязательно нужно было встроить профиль в подвесной потолок, который опускался на 5 см, так как внутри проходили трассы электрики. Строители пару дней потратили, чтобы найти такой способ монтажа закладной, который позволил бы нам полностью скрыть ее за подвесным потолком. Если бы мы сделали стеклянные полотна короче и уже, то потерялось бы ощущение воздуха и простора в квартире, - отмечает дизайнер. – Непросто шла работа и со встроенными изделиями. Некоторые столярные мастерские избегают шкафы и стеллажи под потолок, всегда оставляют зазор в 10-12 см или предлагают сделать декоративный карниз, доборную планку или антресоль. В этом проекте ни о каких зазорах или доборах даже речи идти не могло. Стеллаж в гостиной столяры собирали прямо на полу, поднимали его одновременно пять человек! Но зато получилось идеальное примыкание узлов и плоскостей и мощный архитектурный эффект».
Комплектация объекта
Строительные и отделочные материалы и изделия
Входная дверь, поставщик BARS
Стеклянные перегородки, межкомнатные двери, поставщик Dorian
Декоративная отделка стен, краска Little Greene
Пол, паркетная доска, дуб, Kahrs, поставщик «Керамотека»
Керамогранит, поставщик Atlas Concorde
Сантехника Jacob Delafon, Hatria, SSWW, Roca; ванна Kaldewei; смесители Webert (коллекция Elio)
Ковры, поставщик Carpet Decor
Искусство, «Галерея Smart» и фотоработы Ольги Мелекесцевой
Мебель
Прихожая шкаф и полка с зеркалом, на заказ, по эскизам дизайнера
Гостиная диван и кресло Sits; стеллаж, на заказ, по эскизам дизайнера
Кухня, поставщик «Анонс»
Спальня кровать, поставщик «Дом Стен»; кресло Sits; полки, на заказ
Встроенная мебель на заказ – изготовление «Столярная мастерская Александра Яковлева»
Оборудование
Электроустановочные изделия Jung
Радиаторы Arbonia
Оборудование кухни, встроенная техника Bosch
Фотограф: Ольга Мелекесцева
Стилист: Светлана Хахаева
Вилла с павлинами
Квартира с брутальным декором в Санкт-Петербурге Поиски нового офиса привели владельцев архитектурного бюро «Крупный план» к неожиданному, но очень значимому шагу – приобретению особняка - объекта культурного наследия XIX века...




















Созидание как эволюция: офис бюро «Крупный план»
Равновесие, цельность и гармония как результат работы архитектора…
Ландшафтный архитектор. Инженер. Проектировщик. Логик.
«Мода в интерьере — это зеркало нашего быта»...
Храм в городе 
11
22
33
44
55
66
77
88
99
1010 